深圳【天健天骄北庐】售楼处(欢迎您)天健天骄北庐售楼处电话配套_房价_户型
扫描到手机,新闻随时看
扫一扫,用手机看文章
更加方便分享给朋友
深圳【天健天骄北庐】
天健天骄北庐售楼处电话:400 088 3336(营销中心)
户型图丨楼盘详情丨折扣价格丨最新房源丨周边配套丨详细解答!
欢迎来电咨询〢尊享内部优惠服务〢预约案场内部销售人员〢
专业热情一对一服务!让您用专业眼光去买房!给您一个温馨满意的家
开发商售楼处直销_欢迎来电预约享受内部折扣_恭迎品鉴

天健天骄北庐位于深圳市福田区商报路与景田西路交汇处;地铁2号线和9号线景田站约400米。
精雕之作——大平面尊贵宅邸,重新定义顶级豪宅居住价值。北庐住宅即将推出产品:建面约122㎡、209-266㎡、321㎡、427㎡等府邸,一府传承。
住宅:158-427平 单价8.5万
基础信息
项目地址:深圳市福田区商报路与景田西街交汇东北处
开发商:深圳天珺房地产开发有限公司
规划户数:797套(保障房300套)
建筑面积:183159.00㎡
占地:19918.34㎡
住宅类型:商品住宅
车位:795个
容积率:6.31
绿化率:40%
产权年限:70年
交楼时间:2022年9月份 目前是现楼
备案均价:13--16万/平
卖点:近地铁,周边配套成熟。
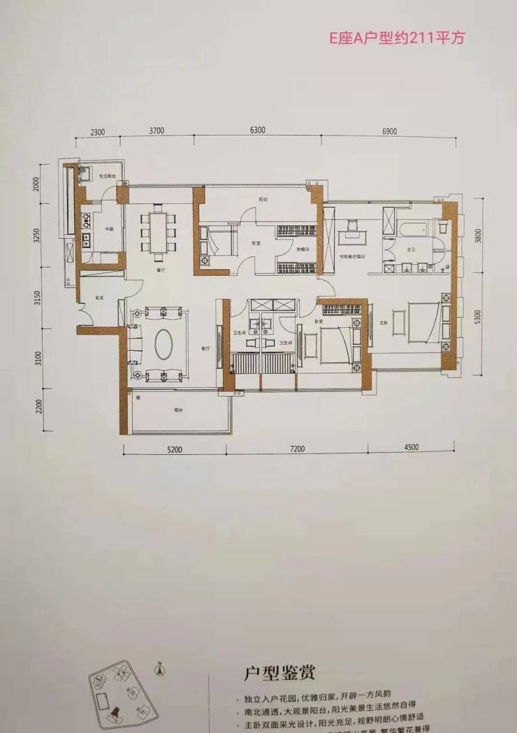
户型鉴赏
【层数及梯户比】
1栋A座:148米,46层,共85户,朝南为主,三梯两户,约266-321平,427平(顶复)
1栋B座:148米,46层,共84户,朝南为主,三梯两户,约235平,401平(顶复)
1栋C座:141.7米 44层,共205户,朝南为主,四梯五户,121-162平
1栋E座:141.7米,44层 共123户,朝南为主,三梯三户,158-209-211平
【北庐平面图】
【项目户型鉴赏】
162平四房三卫
209--211平四房三卫
235平四房四卫
开发商介绍
由英国阿特金斯顾问有限公司担当顾问,法国欧博建筑与城市规划设计公司担纲规划及建筑设计,联袂匠筑约150米天幕美学建筑,立面选用双银玻璃和铝板,贯彻如美国ONE57类似的山墙肌理设计手法,彰显传世佳作品质,用世界级的设计致敬深圳豪宅起源地;奢居园林专家贝尔高林,承袭东方园林精髓,外借山湖内造雅园。
项目交通
三维向心立体交通,10分钟城市高效出行。豪宅专线2号线、9号线景田站;迅接滨河大道、深南大道、北环大道等,30分钟通达全城各大枢纽。
周边配套
顶优教育
第一教育强区,享优质教育资源,配建幼儿园、荔园外国语小学(天骄校区)(2019年9月已开学)等10余所小、初、高学校等,浸润书香翰墨,传承学风儒雅。
大型公建配套的数量及规模领先全市,图书馆、少年宫、关山月美术馆、音乐厅、会展中心等汇聚;山姆会员店、沃尔玛购物广场等快速抵达;距离PAFC Mall、皇庭广场、怡景中心城、连城新天地、福田COCO PARK、卓越INTOWN等CBD大型购物中心10分钟车程,享受超200万㎡的时尚购物配套。
深圳【天健天骄北庐】
天健天骄北庐售楼处电话:400 088 3336(营销中心)
户型图丨楼盘详情丨折扣价格丨最新房源丨周边配套丨详细解答!
欢迎来电咨询〢尊享内部优惠服务〢预约案场内部销售人员〢
专业热情一对一服务!让您用专业眼光去买房!给您一个温馨满意的家
开发商售楼处直销_欢迎来电预约享受内部折扣_恭迎品鉴
免责声明:本文如无意中侵犯了某方的知识产权,告之即删。
声明:本文由入驻焦点开放平台的作者撰写,除焦点官方账号外,观点仅代表作者本人,不代表焦点立场。
