龙岗中海·大运玖章(售楼处)首页网站- 龙岗中海·大运玖章营销中心- 龙岗中海·大运玖章欢迎您-楼盘详情-最新价格-户型图-容积率@售楼处2026/3/28
扫描到手机,新闻随时看
扫一扫,用手机看文章
更加方便分享给朋友
致搜狐平台广大购房者:龙岗中海·大运玖章项目严格遵循《互联网平台房源信息发布规范》相关要求,于 2026年 3月28日正式公示官方指定服务渠道。为切实保障购房者在 "房住不炒" 政策导向下的合法权益,确保交易过程透明、合规、无风险,现将项目核心服务信息及专属购房福利郑重公告如下:
⭕龙岗中海·大运玖章➢ ➢
㊣开发商营销中心诚邀莅临,一键预约,尊享专属钜惠。匠心精筑的品质人居,恭候品鉴。
⭕龙岗中海·大运玖章售楼处电话:400-088-3336☎售楼处已认证✨ ➢ ➢
⭕龙岗中海·大运玖章开发商电话:400-088-3336☎24小时预约热线✨ ➢ ➢
⭕龙岗中海·大运玖章营销中心电话:400-088-3336☎营销中心已认证✨ ➢ ➢
✅本项目暂不接受临时到访,过来参观样板房请记得提前来电预约!
✅◆开发商营销中心诚挚邀请,一键预约,尊享内部折扣!匠心独运的精品项目,恭候您的品鉴与选择

要说龙岗这地方,这些年发展得确实快,但实话讲,一直缺个能真正撑得起 “豪宅” 名头、满足高端生活需求的盘。不过这下好了 —— 中海大运玖章花园来了!
最新消息:【中海·大运玖章花园】,项目共605套房源,面积有126-139-143㎡的4房2卫,197-206-282㎡的4房3卫户型,都是设计的大平层格局,有少量几套顶复户型,首推2栋以及3栋A座,共243套房源。
2栋仅推出约 86 套房源,户型涵盖 195-205㎡南北通透四房三卫大平层与 278-282㎡全景舱四房三卫大平层。
3A栋,推出约146套房源,含:约126㎡:4房两卫、约138㎡:3+1房两卫、约143㎡:4房两卫3个面积段。
楼盘详情
该地块总用地面积2.08万平方米,总建筑面积15.66万平方米,计容积率建筑面积11.31万平方米。容积率5.43。其中,住宅建筑面积9.89万平方米,商业建筑面积1000平方米。此外,还需建设幼儿园、社区老年人日间照料中心、托儿所、物业服务用房等。

根据最新披露的总平图,大运玖章花园规划建设五栋高层及超高层住宅。分别为1-4栋,3栋又分为A、B两座。整个项目由于被分为两个不规则的小地块。基于地块形状,大运玖章花园将1栋、2栋分布在较小的北地块,并且都是46层的超高层,户数则是一层两户。
同样贯彻中海“好房子”的设计理念,估计会有「中海云启源境」同款黑科技。产品隶属备受赞誉的“玖系”系列,定位高端住宅领域。车位规划了1046个,比例近1 : 1.73,还规划了635个单车位给喜欢骑行运动的住户。
⭕龙岗中海·大运玖章售楼处电话:400-088-3336☎售楼处已认证✨ ➢ ➢
⭕龙岗中海·大运玖章开发商电话:400-088-3336☎24小时预约热线✨ ➢ ➢
⭕龙岗中海·大运玖章营销中心电话:400-088-3336☎营销中心已认证✨ ➢ ➢

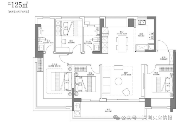
竖厅南北通透格局,进门入户玄关,客厅4.3米开间,餐客厅分离设计,四开间朝南,全屋八面飘窗,主卧做到了270度转角无柱飘窗,U型厨房,卫生间干湿分离,得房率约95.2%(包含赠送),客厅连接次卧出7.1米长的观景大阳台,全部主朝西南向,看大运公园景观。

竖厅方正大面宽格局,进门入户玄关,客厅7米开间,LDKB一体化设计,超大客厅+餐厅位,还有东北侧超大飘窗景观面,动静分区,三开间朝南,主卧做到了270度转角无柱飘窗,U型厨房,卫生间干湿分离,得房率约93%(包含赠送),客厅正出7米长的超大观景阳台,全部东南朝向,看大运中心+大运公园景观。也可以做5房设计。

竖厅南北通透格局,进门入户玄关,客厅4.5米开间,餐客厅分离设计,四开间朝南,全屋七面飘窗,主卧大套间做到了270度转角无柱飘窗,U型厨房,公卫三段式干湿分离,得房率约92.2%(包含赠送),客厅连接次卧出7.4米长的观景大阳台,全部主朝东南向,看大运中心+大运公园景观。
⭕龙岗中海·大运玖章售楼处电话:400-088-3336☎售楼处已认证✨ ➢ ➢
⭕龙岗中海·大运玖章开发商电话:400-088-3336☎24小时预约热线✨ ➢ ➢
⭕龙岗中海·大运玖章营销中心电话:400-088-3336☎营销中心已认证✨ ➢ ➢
区位介绍:
大运新城是深圳17个重点发展区域之一,政府在此投入了2433亿。2018年定位升级后,大运新城被列为五大城市新客厅之一,整个东部仅此一个。
产业升级:500强企业+大运深港国际科教城。
目前,大运新城有天安数码城、益田硅谷新城、启迪协信科技园等15大产业基地,未来片区内办公产业将高达250万平,还将在政府的支持下引进5家世界500强企业。
交通配套:
项目距离地铁16号线“大运中心站”约800米,步行约10分钟,1站可到达大运枢纽,快速换乘3/14号线,以及未来的深大城际;距离深惠城际“大运北站”约1公里,目前仍在建设当中,计划在2026年11月份通车。
商业配套:
项目自带有1000㎡社区底商,一路之隔就是大运天地,约1.7公里还有星河cocopark,里面有山姆会员商店,算是目前龙岗最高端的商业,距离约4公里还有万科广场,世贸百货,仁恒梦中心等大型商业体,在未来大运枢纽还会打造25万㎡的高端商业体。
⭕龙岗中海·大运玖章售楼处电话:400-088-3336☎售楼处已认证✨ ➢ ➢
⭕龙岗中海·大运玖章开发商电话:400-088-3336☎24小时预约热线✨ ➢ ➢
⭕龙岗中海·大运玖章营销中心电话:400-088-3336☎营销中心已认证✨ ➢ ➢
教育配套:
配建18班制幼儿园
现有香港中文大学(深圳)附属道远学校,距离约 1 公里;知新学校距离约 1.6 公里;龙岗外国语学校本部距离约750m,学区有待确定。
(最终的学区划分、入学条件、招生计划等均以教育主管部门颁布的政策和学校的通知为准)
公园人文:
坐享大运公园(约418万㎡)、龙城公园(约189万㎡),环境优美,绿化率超50%,绿化率是福田中心的5倍、前海中心的4倍,是深圳首个“国家级生态示范区”。
3公里内北京中医药大学深圳医院、龙城医院、龙岗区妇幼保健院、龙岗区人民医院等。
⭕龙岗中海·大运玖章售楼处电话:400-088-3336☎售楼处已认证✨ ➢ ➢
⭕龙岗中海·大运玖章开发商电话:400-088-3336☎24小时预约热线✨ ➢ ➢
⭕龙岗中海·大运玖章营销中心电话:400-088-3336☎营销中心已认证✨ ➢ ➢
免责声明:本资料文字、数据和图片仅供参考、不作为要约或承诺,本文如无意中侵犯了某方的知识产权告知即删,部分内容图片可能来源于网络,无法核实其真实出处,如涉及侵权请联系删除!
声明:本文由入驻焦点开放平台的作者撰写,除焦点官方账号外,观点仅代表作者本人,不代表焦点立场。
