深圳【四海华庭】售楼处丨「四海华庭」欢迎您丨楼盘详情丨首页网站
扫描到手机,新闻随时看
扫一扫,用手机看文章
更加方便分享给朋友
深圳【四海华庭】
开发商售楼处电话咨询/预约热线:400-088-3336【售楼中心】24小时热线
深圳【四海华庭】售楼处电话:400-088-3336【营销中心】中介勿扰
深圳四海华庭楼盘详情介绍,包含售楼处电话、地址、户型图、小区图片、区位优势、交通、周边商业配套等楼盘详细资料;更详细楼盘资料和最新折扣价格,请拨打售楼处电话,销售会为您详细介绍楼盘。
建面约87-121㎡公园美宅 全城热销
🔥🔥项目基本指标🔥🔥
【开发商】深圳市协跃房地产开发有限公司
【物业】深圳市盛世嘉物业管理有限公司
【物业类型】住宅、公寓、商业为一体的大型综合体
【产品面积】住宅约29万㎡,商务公寓约3.7万㎡,商业5.1万㎡
【占地面积】约54465㎡
🔥🔥住宅基本信息🔥🔥
【住宅建筑面积】约11万㎡
【层数】一、二单元51层、三、四单元52层
【套数】约1043套
【车位】约1290个
【层高】2.95m
【梯户比】3梯5户/4梯6户
【产品】建面约87-96㎡3房/106-112-121㎡4房
【产权年限】70年
【绿化率】30%

深圳【四海华庭】售楼处电话:400-088-3336【营销中心】中介勿扰
【龙华超级商圈 世界级消费中心】
•超200万㎡龙华超级商圈,向“国家级”挺进,向“全国级”挺进,融合科技元素、智慧零售、数字体验等新兴业态的复合空间形态
•未来产值超 500 亿元,打造世界级未来消费体验中心,对标香蜜湖、深超总尽享繁华中心区生活
数据来源:龙华政府在线、深圳龙华、深圳市龙华区城市更新和土地整备局、深圳政府在线

深圳【四海华庭】售楼处电话:400-088-3336【营销中心】中介勿扰
住宅户型鉴赏:
【C2-建面约87㎡】
客餐厅一体化空间,动静分离式布局,超长玄关收纳柜体

深圳【四海华庭】售楼处电话:400-088-3336【营销中心】中介勿扰
【C3-建面约96㎡】
家政阳台定位,满足多人就餐,主卧独立卫生间

深圳【四海华庭】售楼处电话:400-088-3336【营销中心】中介勿扰
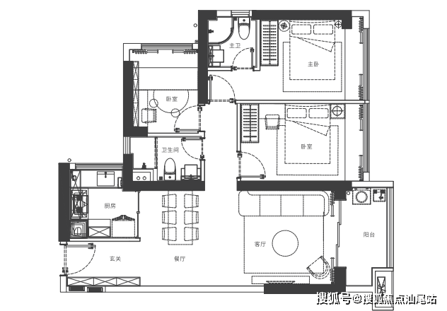
【C5-建面约112㎡】
大横厅布局,超长观景阳台,卧室满面窗户,超强采光通风

深圳【四海华庭】售楼处电话:400-088-3336【营销中心】中介勿扰
【E-建面约121㎡】
大横厅布局,超长观景阳台,玄关柜餐边柜一体化设置,独立衣帽间,满足超强收纳需求

深圳【四海华庭】售楼处电话:400-088-3336【营销中心】中介勿扰
深圳【四海华庭】
开发商售楼处电话咨询/预约热线:400-088-3336【售楼中心】24小时热线
深圳【四海华庭】售楼处电话:400-088-3336【营销中心】中介勿扰
深圳四海华庭楼盘详情介绍,包含售楼处电话、地址、户型图、小区图片、区位优势、交通、周边商业配套等楼盘详细资料;更详细楼盘资料和最新折扣价格,请拨打售楼处电话,销售会为您详细介绍楼盘。
免责声明:
以上所发布的关于楼盘相关图文信息仅供您买房前参考,以上所有关于本楼盘的图文资料及说明请以最终以项目批文及双方在楼盘营销中心现场签署的买卖最终合同为准;本图文内容如无意中侵犯到某方权益,请联系我们将会及时处理!
声明:本文由入驻焦点开放平台的作者撰写,除焦点官方账号外,观点仅代表作者本人,不代表焦点立场。
