拾悦城楠园售楼处(售楼中心)24小时电话 拾悦城楠园楼盘最新详情_户型_价格
扫描到手机,新闻随时看
扫一扫,用手机看文章
更加方便分享给朋友
拾悦城楠园售楼处电话:400-088-3336(售楼中心)
拾悦城楠园网上招商中心 | 欢迎来电咨询 | 请提前预约登记看房
【项目名称】拾悦城.楠园
【占地面积】约3.54万㎡
【建筑面积】约23.5万㎡
【推售产品】86-140㎡ 3-5房
【交付标准】简装交付
【交房时间】2025.12
【房产性质】70年
【总 户 数】可售2015套
【车 位 数】约2396个
【物业公司】万家好物业
【物 业 费】4.5
【容 积 率】约6.66
【绿 化 率】约40%
【梯 户 比】3T7、3T6、3T5
整个小区占地3.5万方,由7栋建筑合围而成,属于中大型小区
【拾悦城楠园西部纯居天花板】
【优教Top:宝中外(集团)学校旁 接送省心】
项目内建设有一所18班幼儿园,拾悦小学与壆岗岗厦片区九年一贯制学校(在建)新建工程皆纳入深圳市宝安中学外国语学校(集团)成员学校,近距离接送省心,强师资家长安心。
【稳健Top:今年买今年住】
纯商品房社区,项目已全面封顶,今年买今年住,所见即所得,无需漫长等待。

【中心Top:绝对中芯 虹吸西部利好】
占据大前海门户,雄踞西部沙井“正中芯”,虹吸区域政策利好。
【出行Top:11号线上 高速畅达全城】
紧邻11号线沙井站805米,5站到机场,7站通宝安中心(从马安山出发),快速通达前海湾、后海总部基地、深湾总部基地、福田中心。
【繁华Top:超48万㎡醇熟生活圈】
项目约3公里内超48万㎡商荟集群,未来周边还会进驻山姆会员店(建设中)、海岸城等,悦享一站式购物生活圈。

【生态Top:定岗湖畔 绝佳优渥景观】
西部少有湖居,临湖而居,晨起清风拂面,晚归美景相迎!定岗湖公园占地面积约9.5万㎡,2023年荣获“最受市民欢迎奖”,公园包括水域、湿地、亲水平台、音乐喷泉、廊桥、儿童活动场地、足球场等,为周边市民提供了多样的公共活动空间。
【纯粹Top:纯粹大城 全维社区 圈层纯净】
70万㎡纯居大城,围合式社区,圈层纯粹。
☘围合式建筑布局:7栋塔楼点式排布、楼间距舒适、景观视野优渥、安静纯粹。
☘1.4万平全龄段主题园林: 1.4万平米中央园林,以“全维社区共享生活体系”为概念,打造全龄段、多元化、动静分明的沉浸式归家生活。
☘主题儿童区:670平米森系主题儿童乐园
☘环氧步道:356米环形健康步道,即能运动又能与家人一起享受幸福甜蜜的闲暇时光
☘社区活动广场 :专属社区活动场地,满足全龄段业主活动需求
☘高品质公区:高品质入户大堂、停车场入户大堂,归家仪式与空间交融
☘社区会客厅:沉浸式社区会客厅,邻里关系更温馨
【舒居Top:赏景舒居 全能空间】
匠造建面约86-140㎡三至五房,通透布局,敞阔尺度,收藏三代幸福时光,为每一个家庭定制纯粹舒居生活范本。
小区主入口
【户型鉴赏】
约101㎡三房两厅两卫
✅Max级宽厅,奢阔大三房
✅客餐厅LDK一体化设计
✅1.8m进深大阳台
✅尊享主卧套房设计
约103㎡三房两厅两卫
✅三开间园景,全屋通透无敌采光
✅客餐厅LDK一体化设计
✅1.8m进深大阳台
✅奢享大三房,空间舒适
✅Promax大次卧满足孩子成长全周期需求
约86㎡三房两厅一卫
✅面向园心,全景视野享四季美景
✅餐客厅LDK一体化设计,欢聚时刻不受限
✅动静分区,互不干扰
✅三分离卫浴,从容有序
约94㎡三房两厅一卫
✅四开间全南向,全屋通透无敌采光
✅1.8m进深大阳台
✅奢享大三房,空间舒适
✅Promax大客餐厅 满足全家休闲娱乐
约100㎡三房两厅两卫
✅三开间南向,全屋通透无敌采光
✅客餐厅LDK一体化设计
✅1.8m进深大阳台
✅奢享大三房,空间舒适
✅Promax大次卧满足孩子成长全周期需求
约104㎡三房两厅两卫
✅开门见湖,赏一线湖景
✅三开间南向,全屋通透无敌采光
✅客餐厅LDK一体化设计
✅奢享大三房,空间舒适
✅Promax大次卧满足孩子成长全周期需求
约118㎡四房两厅两卫
✅一线湖景,定岗湖四季风光映入家中
✅6.3m宽大横厅,无过道设计更阔绰
✅大开间全明设计,通透采光布局
✅舒居四房,三代人各有私密空间
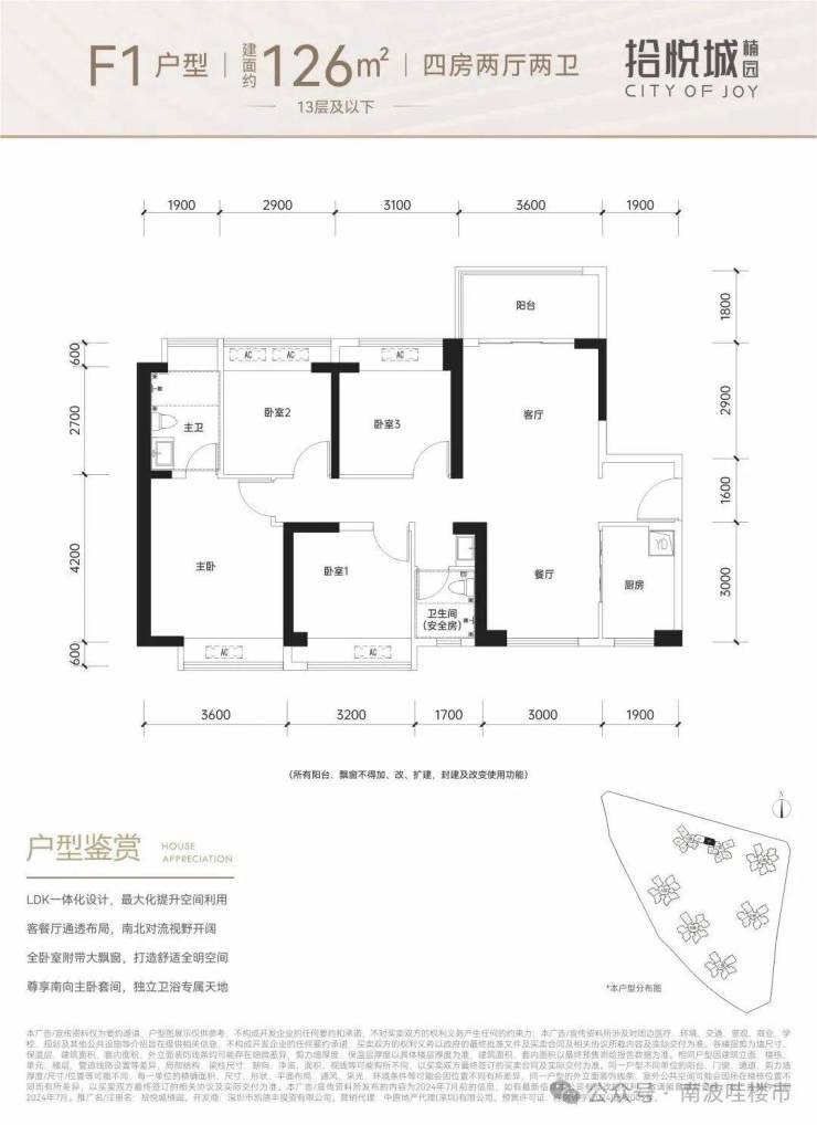
约120-126㎡四房两厅两卫
✅南北通透,采光通风俱佳
✅正对园林,享舒阔景观
✅南向主卧套间,独立卫浴空间
✅舒居四房,三代人各有私密空间
约140㎡五房两厅两卫
✅五房全景户型,C位楼王
✅南北通透,采光通风俱佳
✅同享园芯全景、定岗湖风光
✅尊崇南向主卧套间,独立卫浴
拾悦城楠园售楼处电话:400-088-3336(售楼中心)
拾悦城楠园网上招商中心 | 欢迎来电咨询 | 请提前预约登记看房
免责声明:
1.本文所发布内容,凡未注明“原创”等字样的均来源于网络善意转载,版权归原作者所有!
2.除本平台独家和原创,其他内容非本平台立场,不构成投资建议。
3.如千辛万苦未找到原作者或原始出处,请理解并联系我们。
4.文中部分图片源于网络。
5.发布此文出于传播消息之目的,如有侵权,联系删除。
声明:本文由入驻焦点开放平台的作者撰写,除焦点官方账号外,观点仅代表作者本人,不代表焦点立场。
