锦绣时代广场售楼处(售楼中心)24小时电话 锦绣时代广场楼盘最新详情_户型_价格
扫描到手机,新闻随时看
扫一扫,用手机看文章
更加方便分享给朋友
深圳【锦绣时代广场】
锦绣时代广场开发商网上售楼处电话:400-088-3336(营销中心)
网上售楼中心〢欢迎来电咨询〢专业一对一热情服务〢
给您专业的置业方案〢期待您成为我们的尊贵的业主⇈
✅ 锦绣时代广场·写字楼 ✅
👑 龙华芯·双地铁·实景现楼
‼️ 高区办公映献 盛世启售 ‼️
👏均价约2.5万/㎡ 即买即用
👉约78-1980㎡灵动办公空间
🔥🔥火热租售中🔥🔥
======================
🌇带阳台/飘窗配置 公区高配品质
🔥龙华核心商圈C位🔥速抢‼️
🚇约300米直达双地铁🚇22&25号线油松站,👉10分钟速达🛣️深圳北站枢纽
🌟9.4米云端大堂/中空Low-E玻璃幕墙,定义商务新高度
======项目基本指标======
🎖开发商:锦绣江南集团
🎖总建筑面积:约13万㎡
🎖总占地面积:约1.32万㎡
🎖总楼层:地上32层、地下3层
🎖标准层层高:4.5m
🎖电梯数量:5+1部日立品牌电梯
🎖车位数量:地下750个车位
【锦绣时代广场】 办公租售-VIP客户版
时代封面资产 定序城芯商务
龙华芯·双地铁·实景现楼
【项目基本信息】
总建筑面积:129479.9㎡
总占地面积:13174.88㎡
办公建筑面积:53887㎡
容积率:7.39
绿化率:30.01%
建筑高度:148m
总楼层:地上32层、地下3层
标准层设计高度:4.5m
面积段:偶数层78-156-274-289-396-1680
奇数层79-159-198-275-293-352-1380
使用率:63%
大堂:约9.4m挑高
标准层高:4.5米 部分挑高9 米
电梯:5+1部4m/s日立品牌电梯
停车位:地下三层停车场,共750个车位(月卡500、临停封顶60)
产权:40年(2020-2060)
交楼标准:毛坯
【租售面积】
约78-1980㎡现楼办公,户型方正可灵活布局
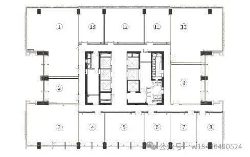
办公销售:22/24/26/28/30层平面图
办公销售:23/25/27/29层平面图
办公租赁:标准层平面图
【项目亮点介绍】
鼎配品质·实景现楼
1️⃣约9.4m挑空大堂
首层9.4米挑空大堂,以现代轻奢商务风格塑造高端、典雅的企业商务形象
2️⃣品牌日立电梯配置
5+1台日立品牌电梯,4m/s高效垂直通勤!满足大规模人流同行,助力企业高效办公
3️⃣高标玻璃幕墙配置
外立面采用LOW-E中空玻璃幕墙,双层有效隔音隔热
4️⃣三层地下车库配置
地下三层停车场,共750个车位,商务接待、员工通勤,均可无忧停车
【项目图集】
深圳【锦绣时代广场】
锦绣时代广场开发商网上售楼处电话:400-088-3336(营销中心)
网上售楼中心〢欢迎来电咨询〢专业一对一热情服务〢
给您专业的置业方案〢期待您成为我们的尊贵的业主⇈
免责声明:
以上所发布的关于楼盘相关图文信息仅供您买房前参考,以上所有关于本楼盘的图文资料及说明请以最终官方批文及双方在楼盘营销中心现场签署的买卖最终合同为准;本图文内容如无意中侵犯到某方权益,请联系我们将会及时处理。
声明:本文由入驻焦点开放平台的作者撰写,除焦点官方账号外,观点仅代表作者本人,不代表焦点立场。
