惠州星河丹堤房价_户型_地址_详情 |惠州星河丹堤售楼处(欢迎您)楼盘最新详情
扫描到手机,新闻随时看
扫一扫,用手机看文章
更加方便分享给朋友
惠州【惠州星河丹堤】
开发商售楼处电话咨询/预约热线:400-088-3336【售楼中心】24小时热线
惠州【惠州星河丹堤】售楼处电话:400-088-3336【营销中心】中介勿扰
惠州星河丹堤楼盘详情介绍,包含售楼处电话、地址、户型图、小区图片、区位优势、交通、周边商业配套等楼盘详细资料;更详细楼盘资料和最新折扣价格,请拨打售楼处电话,销售会为您详细介绍楼盘。
毛胚现房,一共5层(买三层送二层)
物业费:4.5
客厅挑高6.8米,地下室挑高6米
人车分流(送私家车库及双车位)
0.42容积率
使用率300%高赠送,地下室全采光设计
首套2成首付140万起
使用面积均超过700平
北(背)有靠山南有湖无敌好风水
- - - - - - - - - - - - - - - - - - - - - - -
最后面有很多实地拍摄
星河丹堤总图:

惠州【惠州星河丹堤】售楼处电话:400-088-3336【营销中心】中介勿扰
玖仰228套别墅总图:

惠州【惠州星河丹堤】售楼处电话:400-088-3336【营销中心】中介勿扰
别墅环境实拍图:

惠州【惠州星河丹堤】售楼处电话:400-088-3336【营销中心】中介勿扰
独家定制大门及门匾:

惠州【惠州星河丹堤】售楼处电话:400-088-3336【营销中心】中介勿扰
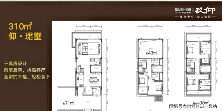
产品类型一:
310平临湖一排别墅,使用面积约840-900平,买三层享五层,地下室全采光设计

惠州【惠州星河丹堤】售楼处电话:400-088-3336【营销中心】中介勿扰
310平临湖视野:

惠州【惠州星河丹堤】售楼处电话:400-088-3336【营销中心】中介勿扰
产品类型二:
2⃣275 平临湖二排别墅,使用面积 约680 平,买三层享五层

惠州【惠州星河丹堤】售楼处电话:400-088-3336【营销中心】中介勿扰
275平视野:

惠州【惠州星河丹堤】售楼处电话:400-088-3336【营销中心】中介勿扰
285平边位前花园实拍:

配套篇:
家门口公立学校已开学:华南师范大学附属惠阳学校(小学~初中~高中)

惠州【惠州星河丹堤】售楼处电话:400-088-3336【营销中心】中介勿扰
星河CoCogardn已营业(包含电影院和永辉超市等)

惠州【惠州星河丹堤】售楼处电话:400-088-3336【营销中心】中介勿扰
社区配备体育公园(包含网球场,篮球场,足球场,羽毛球场,室内高尔夫健身房等等)

惠州【惠州星河丹堤】售楼处电话:400-088-3336【营销中心】中介勿扰
1.5公里到惠阳站(原名惠州南站)高铁站,28分钟到深圳北站,68分钟到香港西九龙站

惠州【惠州星河丹堤】售楼处电话:400-088-3336【营销中心】中介勿扰
社区带7万平丹悦湖和三公里环湖栈道,环境优美,社区高端。

惠州【惠州星河丹堤】售楼处电话:400-088-3336【营销中心】中介勿扰
人文大盘,惠湾唯一带社区图书馆的小区,针对业主免费开放。
惠州【惠州星河丹堤】
开发商售楼处电话咨询/预约热线:400-088-3336【售楼中心】24小时热线
惠州【惠州星河丹堤】售楼处电话:400-088-3336【营销中心】中介勿扰
惠州星河丹堤楼盘详情介绍,包含售楼处电话、地址、户型图、小区图片、区位优势、交通、周边商业配套等楼盘详细资料;更详细楼盘资料和最新折扣价格,请拨打售楼处电话,销售会为您详细介绍楼盘。
免责声明:
以上所发布的关于楼盘相关图文信息仅供您买房前参考,以上所有关于本楼盘的图文资料及说明请以最终以项目批文及双方在楼盘营销中心现场签署的买卖最终合同为准;本图文内容如无意中侵犯到某方权益,请联系我们将会及时处理!
声明:本文由入驻焦点开放平台的作者撰写,除焦点官方账号外,观点仅代表作者本人,不代表焦点立场。
