深圳深业世纪山谷售楼处电话 2025网站-楼盘详情-深圳售楼处24小时电话丨价格-户型-配套-楼盘详情
扫描到手机,新闻随时看
扫一扫,用手机看文章
更加方便分享给朋友
深圳【深业世纪山谷】楼盘最新详细信息,图文解析
售楼处热线:400-088-3336(售楼中心)
★★售楼中心——欢迎来电咨询〢——匠心钜制恭迎品鉴!
◆◆营销中心——欢迎来电咨询〢———匠心钜制恭迎品鉴!
温馨提示:看房请提前来电预约,谢谢您的配合!(中介勿扰)
【项目名称】深业世纪山谷
【开发商】深业沙河世纪山谷(深圳)投资有限公司
【项目地址】深圳市南山区新塘街
【占地面积】约4.2万㎡(一期17153.5㎡,二期24991.2㎡)
【建筑面积】约39万㎡(一期219933.6㎡,二期168652.16㎡)
【建筑类型】住宅、公寓
【物业公司】深业物业集团有限公司
【物业费】6.8元/㎡/月
【规划套数】共1627套(一期1036套,二期591套)
【产品面积段】建筑面积约240-280-380㎡的3-5房
【梯户比】8T3户(住宅)
【容积率】约6.63
【绿化率】约35%
【规划停车位】总2135个,车位比1:1.25
【产权年限】70年
售楼处热线:400-088-3336(售楼中心)
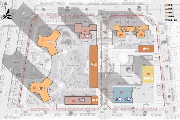
【深业世纪山谷】
整体分两期开发建设,其中:项目一期东地块包含1栋酒店+商务公寓、2栋包含一、二单元的住宅,其中,1栋A座42层,结构高度149.5米高;1栋B座28层92.5米高;2栋1单元41层,结构高度137.65米高;2栋2单元41层,结构高度137.65米高。
西地块包含2栋高约250米的超高层住宅,另有1栋约50层高的商务公寓,其中,3栋A座69层,结构高度243.55米高(装饰高度252米);3栋B座69层,结构高度243.55米高装饰高度252米)未来将成为南山最高的住宅建筑;3栋C座50层,结构高度172.10米高;3栋D座4层16.9米高,二期(3A楼)作为中国最高的装配式住宅建筑,2024年春节前夕该楼成功封顶;

该项目二期将规划2栋住宅建筑,地上69层地下3层,建筑高度超过247米,网传全是大户型住宅240-280-380㎡,最快将于今年9月开放样板房,大概率10-11月能入市
交通:
地铁:
近地铁1号线【白石洲站】,1站到达【高新园】,可换乘2/7/9/11四条轨道线路
距离地铁1号线白石洲站约500米 步行约7分钟、规划中的20号线【白石洲站】,规划中的29号线【白石洲北站】就在楼下。

陆路:
项目毗邻【沙河东路】,与深圳湾总部基地紧密相连。周边有【深南大道】、【滨海大道】、【北环大道】多条城市交通主轴,可直抵前海、宝中、福田、罗湖等深圳其他城市核心区。
紧邻【沙河东路】,自北向南串联起【京港澳高速】、【北环大道】、【深南大道】、【滨海大道】,纵向由【沙河西路】、【科苑路】共同构成四横三纵的一体快速路网。
区块价值:
【白石洲】——与产业区科技园隔了一个高尔夫的距离,未来配套会持续升级

商业:
一公里内有【益田假日广场】、【万象天地】、【京基百纳广场】,车程约十分钟即可到达【深圳湾睿印】、【欢乐海岸】、【深圳湾万象城】商业。
生态人文:
北看【塘朗山】、南望【深圳湾】、西临【大沙河生态长廊】、【高尔夫球场】,东瞰【华侨城绿地】,周边还有【大沙河公园】、【深圳湾公园】、【华侨城国家湿地公园】、【燕晗山郊野公园】等四大生态公园环绕。


教育:
项目未来会配建一个21班的幼儿园和南外教育集团的63班九年一贯制学校,可以跟住宅同步建成,现成的学校有【南外沙河小学】和【南外第二实验】
医疗:
【深圳沙河医院】660米、【深圳华侨城医院】 2.5公里
实景照片:

▲效果图:
户型图:约131㎡两房两厅两卫双阳台,户型方正 全明设计
约153㎡三房两厅两卫双阳台
约190㎡3+1房2厅2卫双阳台,户型做了南北通横厅设计
深圳【深业世纪山谷】楼盘最新详细信息,图文解析
售楼处热线:400-088-3336(售楼中心)
★★售楼中心——欢迎来电咨询〢——匠心钜制恭迎品鉴!
◆◆营销中心——欢迎来电咨询〢———匠心钜制恭迎品鉴!
温馨提示:看房请提前来电预约,谢谢您的配合!(中介勿扰)
【免责声明】
1、本文部分信息和图片来源其开发商推广内容,对项目周围交通、商业、文化教育、医疗以及其他市政条件的介绍,具体以政府规划及现场实际为准。
2、效果图是规划意向的概念设计展示,非最终规划方案,不作为开发商承诺,最终以向政府报批报建的方案为准。
3、本文所述内容和意见仅供参考,不构成市场交易依据和投资建议,买卖双方权利义务以双方签署的买卖合同为准。
声明:本文由入驻焦点开放平台的作者撰写,除焦点官方账号外,观点仅代表作者本人,不代表焦点立场。
