深圳湾1号写字楼招租电话【写字楼招租】 深圳湾1号楼盘出租信息丨深圳湾1号写字楼出租多少钱一平方 深圳湾壹号写字楼租赁热线(招商中心)
扫描到手机,新闻随时看
扫一扫,用手机看文章
更加方便分享给朋友
深圳湾1号写字楼招租电话:400-088-3336【写字楼招租】
深圳湾1号楼盘出租信息丨深圳湾1号写字楼出租多少钱一平方
深圳湾壹号写字楼租赁热线:400-088-3336(招商中心)
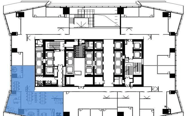
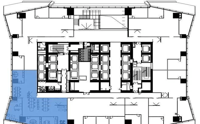
租赁单元:22层03/05单元,建筑面积:451.47平方米
实用率 :约52%,交付标准:精装修
可办公人数:约32人,办公室:4间
物 业:君瑞物业(鹏瑞集团旗下)
物管费:38元/㎡/月(含空调费)
空调供应时间:工作时间周一至周五08:00-19:00及周六09:00-13:00(公众假期全日不提供空调供应)

深圳湾1号写字楼招租电话:400-088-3336【写字楼招租】
写字楼总建面:6.5w ㎡
租赁楼层:4-29层
标准层:面积约2,600-2,800㎡
层 高:4.5m(标高),3.2m(净高)
停车位:479个、停车费:年卡 1200元/月

(平面示意图,实际布局以现场为准)
单元实景
入户门 ↓

办公室1 ↓

深圳湾1号写字楼招租电话:400-088-3336【写字楼招租】
办公室2 ↓

办公室3 ↓

办公区1 ↓

入户门 ↓

办公室4↓

深圳湾1号写字楼招租电话:400-088-3336【写字楼招租】
办公区3 ↓

四、景观实拍


五、商务中心
大会议室(60㎡)

小会议室(36㎡)

(公共资源,需提前预约)
六、写字楼配套

接驳巴士
后海地铁站~深圳湾1号T7
5-10分钟/班

员工餐厅
深圳团餐协会会长单位服务商
3楼2500㎡高标准配置
七、项目配套

莱佛士酒店 -- 百年尊贵传奇 五星商务礼遇

湾汇 -- 国际高端定制商业中心

深圳深圳湾1号写字楼招租电话:400-088-3336【写字楼招租】
深圳深圳湾壹号写字楼租赁热线:400-088-3336(招商中心)
深圳湾1号写字楼地址:深圳市南山区蛇口街道深圳湾社区中心路(深圳湾段)3088号。
免责声明:本文所有文章、图片、音频视频文件等资料版权归版权所有人所有,因非原创文章及图片等内容无法一一和版权者联系,如原作者或编辑认为作品不宜上网供大家浏览,请及时来电告之,我们将立即予以修改或删除。本文如无意中侵犯了某方的知识产权,告之即删。
声明:本文由入驻焦点开放平台的作者撰写,除焦点官方账号外,观点仅代表作者本人,不代表焦点立场。
