热搜焦点:鸿荣源珈誉玖玺售楼处电话→鸿荣源珈誉玖玺首页热搜24小时电话→最新房价→楼盘百科详情→营销中心最新发布@售楼处
扫描到手机,新闻随时看
扫一扫,用手机看文章
更加方便分享给朋友
🔵鸿荣源珈誉玖玺售楼处电话☎:400-088-3336售楼处已认证】⚡⚡
◾在售户型图丨项目介绍丨最新房源丨周边配套丨详细解答〢
◾开发商营销中心诚挚邀请,一键预约,尊享内部独家折扣!匠心独运的精品项目,恭候您的品鉴与选择。
🔵鸿荣源珈誉玖玺开发商电话☎:400-088-3336【开发商已认证】⚡⚡
🔵鸿荣源珈誉玖玺售楼中心电话☎:400-088-3336【售楼中心已认证】⚡⚡
🔵鸿荣源珈誉玖玺营销中心电话☎:400-088-3336营销中心已认证】⚡⚡
⚡本项目暂不接受临时到访,看房请提前预约,可尊享内部特惠!
⚡为您安排楼盘内场专业销售人员一对一接待服务,给您更贴心的看房体验!
4000883336
宝安沙井,鸿荣源珈誉玖玺10栋1单元刚刚取证!7月19日正式开盘,本次新推10栋1单元楼王单位,面积有84㎡的3房2卫,137㎡的4房2卫户型,其中137㎡户型可以改5房。价格方面:84㎡总价380-405万,137㎡711-750万。计划在2026年12月前带简装交房,赠送全屋海尔中央空调。
鸿荣源珈誉玖玺也是鸿荣源珈誉府3期住宅,是整个项目的收官之作,刚需3件套齐全,以后也会是整个沙井配套最成熟,人口最集中的区域。
目录
1、项目区位
2、项目介绍
3、项目户型
4、项目配套
5、项目总结
项目区位
鸿荣源珈誉府2区位于宝安沙井核心生活区,是一个集住宅、公共住房、总部办公、商务酒店、大型商业、学校等于一体的综合体大社区。项目总占地约31万㎡,总建面约248万㎡,旨在打造一个高品质的居住环境,同时提供丰富的生活配套设施。
项目介绍
鸿荣源珈誉府总建面约248万㎡,其中住宅面积70万㎡,商业面积30万㎡,分为8个地块进行开发,是鸿荣源集团全新开发的地标级综合体大盘,涵盖高端住宅、商业办公、星级酒店、优质教育、大型购物中心等业态。
开发商:深圳市鸿荣源控股(集团)有限公司
物业公司:深圳市鸿荣源物业服务有限公司
物业管理费:5.9元/㎡
总占地面积:约4.79万㎡
总建筑面积:约40.53万㎡
容积率:5.42
绿化率:40%
产权年限:2022.5-2092.5年(70年)
总户数:2479户
总栋数及楼高:10栋,31-44-45-46-47-48层。
梯户比:2梯2户/3梯5户/3梯7户
停车位:2795个
车位占比:1:1.127
交房时间:2026年12月
交付标准:精装修
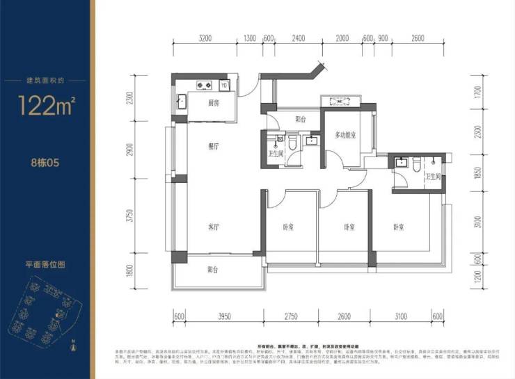
项目户型
平面图及户型图
项目配套
01
交通配套
鸿荣源珈誉玖玺家门口就是宝安大道及凤塘大道等交通主干道,11号地铁线“塘尾站”,距离约300米,4站到宝安机场,6站到宝中,7站到前海湾,8站到南山,11站到车公庙。鸿荣源珈誉玖玺家门口就是宝安大道及凤塘大道等交通主干道,
02
商业配套
鸿荣源珈誉府,自带50万㎡奥特莱斯商业,汇集了壹方+奥莱的商业模式,在项目北侧还有万丰海岸城近18万㎡的购物中心,这个片区以后也将会是整个沙井最高端最集中的商业购物中心。
03
教育配套
鸿荣源珈誉府旁边,所规划的2个教育用地,已经正式出了红头文件,为深圳外国语宝安学校(集团)南校区,分别为1所63班九年一贯制学校,1所为27班九年一贯制学校。
该校目前所划分的深圳外国语学校宝安学校,在2023年小一的录取积分是96.9分,初一的录取积分是92.5分,按照宝安区教育局公布的积分政策,只要是深圳户籍(其它区)+学区内商品房,就有100分,深圳宝安户籍+学区内商品房,就有105分。
04
医疗配套
附近就医还是挺方便的。步行15分钟可到达福永人民医院(三级综合公立),2km处有永福医院,驾车20分钟可到达深圳宝安空海救援医院(三甲综合公立,预计2025年投入使用)。
05
休闲配套
项目距离凤凰山森林公园约3.5km,周边还有万丰湖湿地公园、立新湖公园等绿色休闲配套。
🔵鸿荣源珈誉玖玺售楼处电话☎:400-088-3336售楼处已认证】⚡⚡
◾在售户型图丨项目介绍丨最新房源丨周边配套丨详细解答〢
◾开发商营销中心诚挚邀请,一键预约,尊享内部独家折扣!匠心独运的精品项目,恭候您的品鉴与选择。
🔵鸿荣源珈誉玖玺开发商电话☎:400-088-3336【开发商已认证】⚡⚡
🔵鸿荣源珈誉玖玺售楼中心电话☎:400-088-3336【售楼中心已认证】⚡⚡
🔵鸿荣源珈誉玖玺营销中心电话☎:400-088-3336营销中心已认证】⚡⚡
⚡本项目暂不接受临时到访,看房请提前预约,可尊享内部特惠!
⚡为您安排楼盘内场专业销售人员一对一接待服务,给您更贴心的看房体验!
免责声明:
本文网络转载,版权归原作者所有,本栏目所使用部分文字、图片来自互联网收集,主要用于供给大家学习、交流。我们尊重原创作者和单位,若本文侵犯了您的权益,请直接留言或电话联系我们,我们将立刻删除。
声明:本文由入驻焦点开放平台的作者撰写,除焦点官方账号外,观点仅代表作者本人,不代表焦点立场。
