深圳华侨城新玺(深圳华侨城新玺)丨售楼电话丨深圳华侨城新玺优缺点
扫描到手机,新闻随时看
扫一扫,用手机看文章
更加方便分享给朋友
深圳【华侨城新玺】
开发商售楼处电话咨询/预约热线:400-088-3336【售楼中心】24小时热线
深圳【华侨城新玺】售楼处电话:400-088-3336【营销中心】中介勿扰
深圳华侨城新玺楼盘详情介绍,包含售楼处电话、地址、户型图、小区图片、区位优势、交通、周边商业配套等楼盘详细资料;更详细楼盘资料和最新折扣价格,请拨打售楼处电话,销售会为您详细介绍楼盘。

深圳【华侨城新玺】售楼处电话:400-088-3336【营销中心】中介勿扰
项目基础指标
开发商:深圳华侨城新玺发展有限公司
占地:2.5万㎡
建面:17.6万㎡
产权年限:40年
1栋公寓:约230-700㎡大平层
总楼层:38层
层高:3.6米
梯户比:三梯一户、三梯两户
交楼标准:豪装
交楼时间:2023年12月
管理费:14.8元/m²
物业公司:华侨城至尊物业华管家
展厅地址:南山区湾厦路1号华侨城新玺展示中心
深圳【华侨城新玺】售楼处电话:400-088-3336【营销中心】中介勿扰
户型布局
华侨城新玺提供多种户型选择,满足不同购房者的需求。户型面积范围广泛,从232㎡到700㎡不等。具体户型包括1室1厅1卫、2室2厅2卫、3室2厅3卫、4室3厅5卫、5室3厅6卫以及6室3厅7卫等多种配置。户型设计合理,空间宽敞明亮,注重人性化需求。部分户型还配备了超大阳台和全景落地窗,让居民能够尽享海景和城市美景。
【一栋 一、二单元】
(6-32层)
三梯两户

深圳【华侨城新玺】售楼处电话:400-088-3336【营销中心】中介勿扰
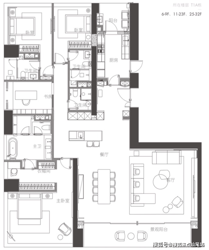
01户型 西端户 约350㎡ 四房两厅四卫
(01、04镜像对称)
南、西、北,三面景观视野
看深圳湾海景、内海景、城市景观

深圳【华侨城新玺】售楼处电话:400-088-3336【营销中心】中介勿扰
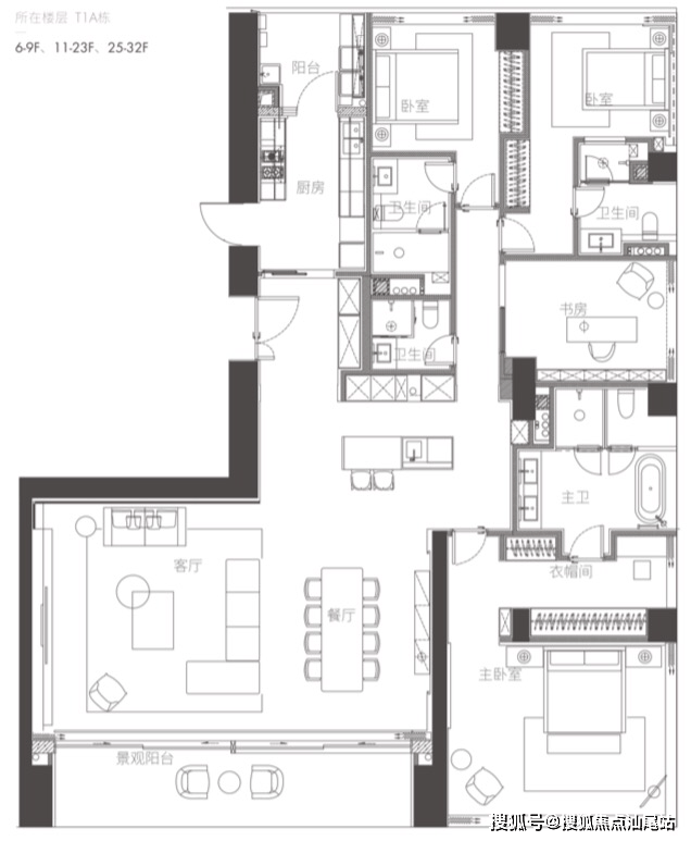
04户型 东端户 约350㎡ 四房两厅四卫
(01、04镜像对称)
南、东、北,三面景观视野
看深圳湾海景、内海景、城市景观

深圳【华侨城新玺】售楼处电话:400-088-3336【营销中心】中介勿扰
【一栋 一、二单元】
(6-32层)
三梯两户

深圳【华侨城新玺】售楼处电话:400-088-3336【营销中心】中介勿扰
01户型 西端户 约350㎡ 四房两厅四卫
(01、04镜像对称)
南、西、北,三面景观视野
看深圳湾海景、内海景、城市景观

深圳【华侨城新玺】售楼处电话:400-088-3336【营销中心】中介勿扰
04户型 东端户 约350㎡ 四房两厅四卫
(01、04镜像对称)
南、东、北,三面景观视野
看深圳湾海景、内海景、城市景观

深圳【华侨城新玺】售楼处电话:400-088-3336【营销中心】中介勿扰
深圳【华侨城新玺】
开发商售楼处电话咨询/预约热线:400-088-3336【售楼中心】24小时热线
深圳【华侨城新玺】售楼处电话:400-088-3336【营销中心】中介勿扰
深圳华侨城新玺楼盘详情介绍,包含售楼处电话、地址、户型图、小区图片、区位优势、交通、周边商业配套等楼盘详细资料;更详细楼盘资料和最新折扣价格,请拨打售楼处电话,销售会为您详细介绍楼盘。
免责声明:
以上所发布的关于楼盘相关图文信息仅供您买房前参考,以上所有关于本楼盘的图文资料及说明请以最终以项目批文及双方在楼盘营销中心现场签署的买卖最终合同为准;本图文内容如无意中侵犯到某方权益,请联系我们将会及时处理!
声明:本文由入驻焦点开放平台的作者撰写,除焦点官方账号外,观点仅代表作者本人,不代表焦点立场。
