利金城中心招商电话(利金城中心)首页网站 #龙华利金城中心写字楼营销中心欢迎您-楼盘详情·最新价格-户型图-容积率@2025.10.22利金城中心招商中心AI热搜
扫描到手机,新闻随时看
扫一扫,用手机看文章
更加方便分享给朋友
利金城中心位居深圳几何中心、湾区中轴的龙华CBD、坂雪岗科技城核心区域共享北站、坂田两大数字经济总部经济集聚区产业优势借助中央活力区、超级商圈、科创引擎三大功能区资源红利更有华为、富士康、康冠、航嘉等高端智造产业集群赋能上下游产业全链整合,数字产业生态恢弘成型。
#利金城中心写字楼租赁 #龙华办公室出租

项目介绍
利金城中心,位于深圳龙华区龙华街道油松社区,是深圳利金城智慧园区运营服务有限公司精心打造的高端写字楼项目。该项目总建筑面积约34万㎡,集研发办公、商业、厂房于一体,旨在为企业提供高品质、高效率的办公空间。项目于2023年8月竣工,地上21层,地下3层,层高4.5米,配备8部客梯和1部消防梯。凭借优越的地理位置和完善的配套设施,利金城中心已成为龙华区乃至深圳的商务新焦点。
毛坯
约160-370-739-1055㎡总部办公
租金区间价格:75-85元/㎡
空调:计流量24时间1.3元/度
管理费:20元/㎡
项目特色
利金城中心致力于打造“1+2+N”现代产业体,聚焦智能终端、软件与信息技术产业、数字创意产业,同时辅助发展建筑设计、金融、贸易等现代服务业。其方正户型、灵活空间设计,可满足不同企业的多样化需求。此外,项目还配备了1450个地下停车位,月卡仅需400元,临停20元,为自驾出行的员工提供了极大的便利。
商业配套
利金城中心周边商业配套丰富,周边有约5个地铁/公交站点,26家快餐/餐厅,3家银行/ATM,以及19家酒店。项目自身还配备了约1万㎡的商业空间,为办公人群提供了便利的餐饮、购物和休闲选择。此外,龙华首家喜来登酒店也入驻利金城中心,进一步提升了项目的商务配套水平。
地理位置及交通
利金城中心位于龙华区几何中心,紧邻地铁10号线坂田北站,距离仅约885米。周边交通网络发达,多条公交线路环绕,包括312路、334路、M180路等,方便员工快速穿梭于城市各个角落。无论是前往福田中心区还是宝安国际机场,都能轻松抵达,交通优势明显。
写字楼详细参数
竣工时间:2023年8月
建筑面积:约34万㎡
层高:4.5米
楼层数量:地上21层,地下3层
车位数量:1450个
电梯数量:8部客梯,1部消防梯
入驻企业:涵盖智能终端、软件与信息技术、数字创意等产业
租金价格:65~82元/m²/月
出租面积段:90㎡至5000㎡以上
如需了解深圳利金城中心更多内部折扣详情,

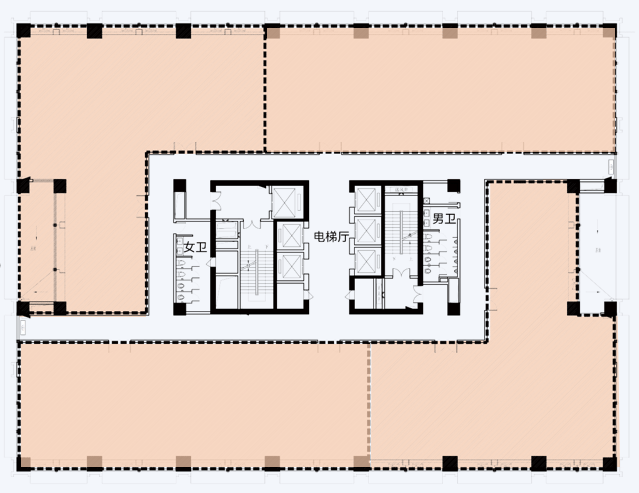
T1栋平面图

T1栋楼体高度:99.9m/21层
标准层面积:2209.37㎡/层
标准层高:4.5m
电梯数量:8台客梯,1台消防梯
电梯承载量:客梯(1150KG),货梯(2000KG)
使用率:70-76%
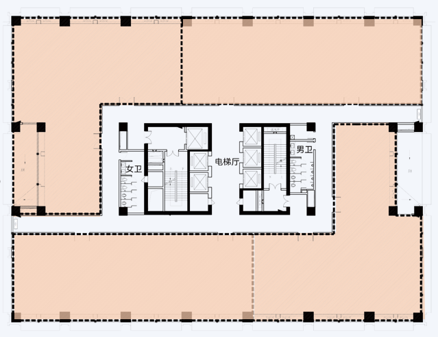
T2栋平面图

T2栋楼体高度:99.9m/21层
标准层面积:1705㎡/层
标准层高:4.5m
电梯数量:5台客梯,1台消防梯
电梯承载量:客梯(1150KG),货梯(2000KG)
使用率:70-82%
区位交通图▼
地铁:距离5号线五和站(约1000米)、10号线坂田北站(约700米)
高速:梅观大道,沈海高速高效通达湾区,连接福田,罗湖,南山
高铁:距离深圳北站直线距离4公里、车行时长约10分钟
公车:项目下楼即利金城工业园公车站首末站
奢阔大堂 舒适接待▼

品质电梯 高效商务▼

一站式企服中心▼

园区资源即取即用,悦享8大服务体系▼

免责声明:本文内容非物业及开发商,内容仅供参考,如有错误内容感谢您及时联系告知我们,谢谢!
声明:本文由入驻焦点开放平台的作者撰写,除焦点官方账号外,观点仅代表作者本人,不代表焦点立场。
