翰熙典居售楼处电话|翰熙典居欢迎您|翰熙典居配套_户型详情
扫描到手机,新闻随时看
扫一扫,用手机看文章
更加方便分享给朋友
深圳「翰熙典居」
翰熙典居售楼处电话:400-088-3336【中介勿扰】
欢迎来电咨询,一对一专业服务
物业中心暂不接受临时到访客户,请提前预约!
4000883336
项目概况

位置:南山区粤海街道白石路与学府路交汇处,毗邻深圳大学,紧邻腾讯滨海大厦、软件产业基地。
开发商:深圳市冠凯投资有限公司(阳光华艺集团旗下)。
物业:丹枫物业,管理费6.5元/㎡。
规模:总建面约50.57万㎡,
含8栋43-55层住宅,
规划3030户(商品房714套+回迁房1525套+保障房791套)。
交付:预计2027年精装交付,产权至2093年。

二、户型与价格(2025年7月数据)
主力户型:
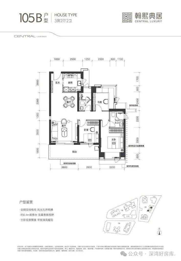
105-120㎡三房:竖厅或双龙抱珠格局,6.5米阳台,得房率约90%,折后总价894万起。
120-140㎡四房:横厅设计,7.2米客厅开间,总价1038万起。
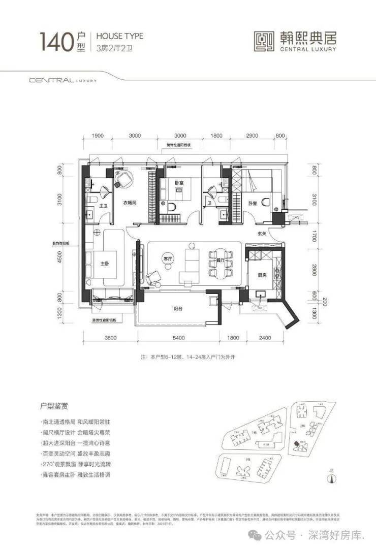
140㎡以上大户型:南北通透,主卧套房设计,总价1457万起。
均价:折后约10万/㎡,单价8.5万/㎡起。
三、核心优势
地段稀缺:
粤海街道“中国硅谷”核心,聚集腾讯、华为等企业,2024年GDP超4500亿元。
双地铁上盖(9号线+在建15号线深大南站),20分钟直达前海、深圳湾。

教育配套:
对口南二外学府一小+学府中学(南山二梯队),项目配建12班幼儿园。

商业与生态:
2公里内海岸城、万象城等商圈;紧邻深圳大学校园,共享文山湖、杜鹃山景观。
产品升级:
新规设计得房率90%,层高3米,精装配置国际品牌厨卫。
四、需关注点
社区混合:商品房仅占23%,与回迁房、保障房混居,可能影响圈层纯粹性。
密度较高:容积率8.62,车位比1:0.86,高峰期停车或紧张。
部分户型遮挡:140㎡户型受相邻楼栋遮挡,采光和视野受限。
五、配套详情

交通:9/15号线双地铁,滨海大道、南海大道等主干道,30分钟覆盖福田、宝安。
商业:自带5.7万㎡潮流街区,步行800米至海岸城。
医疗:1.2公里至南山区人民医院(三甲)。
休闲:人才公园、荔香公园等环绕,社区内规划无边际泳池、樱花大道。
深圳「翰熙典居」
翰熙典居售楼处电话:400-088-3336【中介勿扰】
欢迎来电咨询,一对一专业服务
物业中心暂不接受临时到访客户,请提前预约!
免责声明:以上观点及数据仅供参考,不作为销售依据。面积为建筑面积约数,具体以双方签订合同为准。部分图片来源于网络,版权归原作者所有。如有侵权,请联系后台删除。
声明:本文由入驻焦点开放平台的作者撰写,除焦点官方账号外,观点仅代表作者本人,不代表焦点立场。
