深圳光明科兴科学园售楼处电话_24小时预约电话丨光明科兴科学园售楼处-营销中心电话
扫描到手机,新闻随时看
扫一扫,用手机看文章
更加方便分享给朋友
深圳【光明科兴科学园】
光明科兴科学园售楼处电话:400-088-3336【售楼中心】
致电售楼处了解更多信息,安全通话隐藏真实号码,请放心使用
网上售楼中心——疫情期间在线预约,错峰看房——匠心钜制恭迎品鉴!
4000883336
光明科兴科学园项目基本信息
【总占地面积】38549㎡
【总计容建筑面积】23.9万㎡
【物业组成】厂房(M1)+配套宿舍+配套商业
【可售物业】厂房(M1)
区域优势
【抢占创新高地,布局长远未来】
光明被赋予建设世界一流科学城和深圳北部中心的重大使命,将以科学为引领,建设集科学、产业、生态为一体的深圳北部中心。
1) 目前光明区国家高新技术企业约2000家,规模以上工业企业约1947家,上市企业32家,产值百亿以上企业12家。
2) 24个重大科技创新载体相继落户光明,其中2所大学校区或过渡校区正式启用,9个重大科技基础设施、2所省重点实验室、11个科研平台加快推进。
3) 截至2023年底,光明共培育创新型中小企业986家,各级专精特新企业742家,其中“小巨人”32家。
4) 已有20余支院士团队聚集光明,引进、培养各类人才18.21万人,各领域高层次人才突破2000人,科研院所人才突破5400人。
【与龙头为邻,上下楼就是上下游】
华星光电,振邦智能、欧菲光、科士达、安吉尔等龙头企业云集;
强大的龙头效应吸引上下游企业不断汇聚;
片区将成为深圳智能制造、超高清视频面板显示、新材料等产业高地。
【城市与产业,刚刚好的距离,企业安家首选】
项目紧邻光明凤凰城,距离光明行政中心和商业中心仅4公里,周边蓝鲸世界、万达广场等多个综合体已落成。
【便捷交通,一路畅行】
多条高速环绕:3分钟即达外环高速长圳出入口,连通南光、龙大高速,便捷通达全城,广深莞惠尽在1小时交通圈。
双地铁连接:距离地铁6号线长圳站约450米,1站换乘地铁13号线,通达全城。
产品亮点
约1300-7100㎡ 阔绰空间任意组合
首层8米,2-6层6米,7-13层4.5米层高,满足各类企业生产空间需求
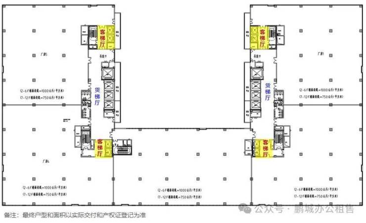
首层荷载 1500 KG/㎡,2-6层荷载 1000 KG/㎡,7-13层荷载 750 KG/㎡,设备放心布局
8.7m*10.5m柱间距,最大可布局产线长度约87米,灵活配置生产线
客货梯分流,每层4个客梯厅,近82%超高实用率,奢享高品质空间
1.2米高卸货平台,每栋16个大型卸货车位,高峰运输无忧
大尺寸5T货梯,叉车可进出,工业轻松上楼
项目配备约6万㎡配套宿舍(近1600套)和1200㎡商业,职住平衡,招聘 so easy!
【厂房平面图】
1号厂房平面——
2号厂房平面——
超大屋顶花园,工程师的灵感源泉
【品牌优势】
20载科创基因 致力服务科创企业
为经营发展赋能与企业筑梦同行
300万㎡科创城市空间运营
深圳【光明科兴科学园】
光明科兴科学园售楼处电话:400-088-3336【售楼中心】
致电售楼处了解更多信息,安全通话隐藏真实号码,请放心使用
网上售楼中心——疫情期间在线预约,错峰看房——匠心钜制恭迎品鉴!
免责声明:本宣传资料仅作为客户邀约邀请,不作为要约或者承诺,对本楼盘配套、交通、学校(建设)规划或者产品介绍,旨在提供相关信息,不意味着本公司对此作出承诺,相关内容不排除因政府相关规划、规定及开发商未能控制原因而发生变化,最终以政府相关部门审批文件为准
声明:本文由入驻焦点开放平台的作者撰写,除焦点官方账号外,观点仅代表作者本人,不代表焦点立场。
