华侨城新玺售楼处电话→华侨城新玺售楼中心首页网站→楼盘百科
扫描到手机,新闻随时看
扫一扫,用手机看文章
更加方便分享给朋友
深圳【华侨城新玺】在售户型,房价走势以及楼盘折扣详情!
华侨城新玺售楼处咨询/预约热线:400-088-3336(售楼中心)
◆提前来访-预约登记尊享售楼处1v1销售专业讲解〢一对一热情服务〢
◆温馨提示:网上售楼中心〢预约可享内部优惠〢匠心钜制-恭迎品鉴〢
注:暂不接受临时到访客户,看房请提前预约。
4000883336
在深圳湾,那片与海洋相伴的山海之间,坐落着一片被自然神赋予的黄金资产——新玺。
它位于蛇口,一个得天独厚的半岛之地,三面环海,一面靠山,与生俱来的自然资源优势让它成为了这片土地上的“天选之子”。
新玺,坐落在深圳湾15公里滨海长廊一线的黄金资产,堪称独一无二的稀世珍宝。它的稀缺性无法复制,犹如大自然的鬼斧神工,赋予了它与生俱来的优势,让它成为了不可再生的珍宝。
这里山海相映,交织出壮美的画卷。一步即达国际滨海生活的魅力所在,奢享大自然的馈赠,聆听其私语,感受其宝藏。
这座黄金资产,如明珠镶嵌于深圳湾,诠释着人与自然和谐共生的愿景。每个角落都散发自然与人文的和谐之美,四季绿意盎然,三面环海无垠。城市的繁华与自然的宁静交融,宛如美丽的画卷。
华侨城·新玺,历经35载岁月洗礼,传承华侨城地标精髓,傲立蛇口湾畔,独享270°无遮挡海景,户户皆享海景盛宴,将湾区风光尽收眼底。
项目建筑高度约249米,成为璀璨蛇口天际线的一部分,让人心生向往。这里集成了多种业态,为世界海岸线带来全新的滨海休闲乐享生活。
在这里,您可以尽情享受海风的拂面、观赏夕阳的余晖,感受生活的无限美好。
项目基本信息
项目占地面积:约2.5万㎡
项目总建筑面积:约28.9万㎡
本期明星产品:约300—600㎡海景大平层
— 海岸线上绝无仅有之作,户户南北通透,板式结构,奢享海幕全景 —
层高:3.6米
单价:10万起
梯户比:3梯1户/3梯2户
开发商:华侨城新玺发展有限公司
项目地址:深圳市南山区湾厦路1号
▼实拍鉴赏:

产品亮点
「 "天赋宝藏,海洋秘藏" 」
寰海标杆之作,定鼎海岸传奇之作
【品牌】传承36载的华侨城,央企实力,创新无限。
【区域】地处蛇口,紧密联动前海、深圳湾,三大千亿级经济中心共同发力。
【地段】三面环海半岛,深圳湾线上独一无二的绝版地段,成就世界海岸的标志性坐标。
【景观】270°海景尽收眼底,15公里滨海长廊之上,自然美景与城市繁华交相辉映。
【产品】250米地标级超高层,再度定义深湾杰作,3.6米舒阔层高,重塑奢适居住体验。
【配套】汇聚湾区首屈一指的文化艺术地标,高端商业配套环伺,享受国际都市生活的独特魅力。
【商业】开放式滨海商业体验,创新立体空间设计。
【酒店&商业】一线酒店品牌倾力入驻,体验前所未有的立体开放式滨海商业空间,奢享全优配套"。
窗外美景:
稀缺纯板楼设计,尊享无与伦比的尊贵待遇。户户朝南,阳光明媚,美景无限。南北通透,双面采光,让您的家充满无限生机和活力。南向海景一览无余,永久无遮挡,让您的生活更加绚丽多彩。东西端户更可享受三面采光和270°环幕海景,仿佛置身于天堂之中。
在300-600㎡的宽敞空间中,感受海的辽阔与壮美。3.6米奢阔层高,让您的生活更加舒适,空间更加灵动。
在这里,您可以随心所欲地布置您的家,让生活更加美好。我们相信,这不仅仅是一处居所,更是一份生活的艺术。
在这里,您可以与家人共享天伦之乐,与朋友共度欢乐时光,与伴侣共赏海的宁静与辽阔。
在这里,您可以拥有属于自己的一片海。这里,是您的家,是您的海景大平层。
双厅连通,尽显豪华,将景观资源最大化,让您尽情欣赏海景。
我们追求国际顶尖公寓的空间格局,提供宽景开放、灵活时尚的设计风格。入户轴线充满仪式感,动静分区,主仆双动线设计,为您提供专属服务。
华侨城·新玺项目,不仅是华侨城集团璀璨的瑰宝,也是深圳湾最后的珍藏。
这座绝版的超级项目,将深圳与湾的紧密联系、建筑与海的文明交融、人与空间的和谐共处,完美地呈现在世人面前。
犹如一座矗立在海面上的华侨城,它以湾区前所未有的进海人居方式,引领了一场世界顶级人居的精神风暴。
在这个创想中,华侨城·新玺项目以其无与伦比的魅力,让人们重新审视人与海洋的关系,以及人居与环境的完美融合。
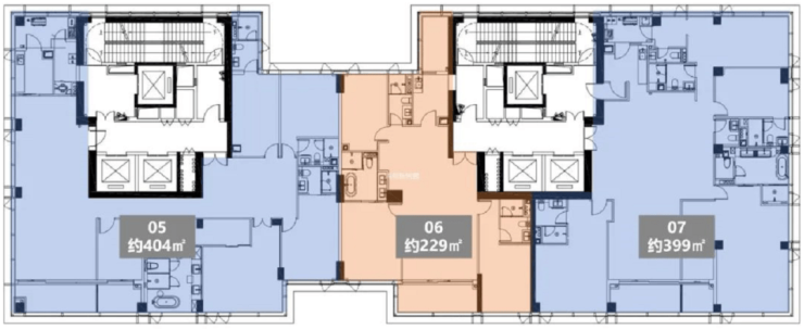
1栋:总高38层,为纯公寓





"2栋的商办和公寓在结构上完全一致,但有一个显著的区别。公寓配备了阳台,而商办则没有阳台。除此之外,这两类房产并无其他差异。"
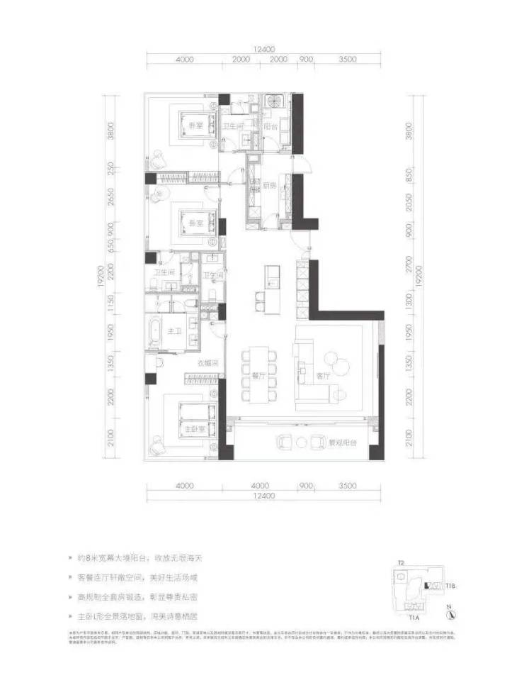
T1A栋B/C:约230-238㎡ 3房2厅3卫
B/C户型设计精美,楼栋位于中间位置,拥有三间卧室。这种设计类似于恒二庭室布局,充满了对称美感。然而,该户型存在一些遗憾,如卫生间较暗和中间位置导致的有限开间。为了充分利用空间,睡房成为了海景面的首选。
长约5米的阳台略显短小,但2.1米宽度的阳台却是一种舒适的享受,很多公寓都无法达到这种水平。在实地看房时,这种体验让人感到非常舒适和宜居。总体而言,B/C户型是一款极具吸引力的住宅选择。

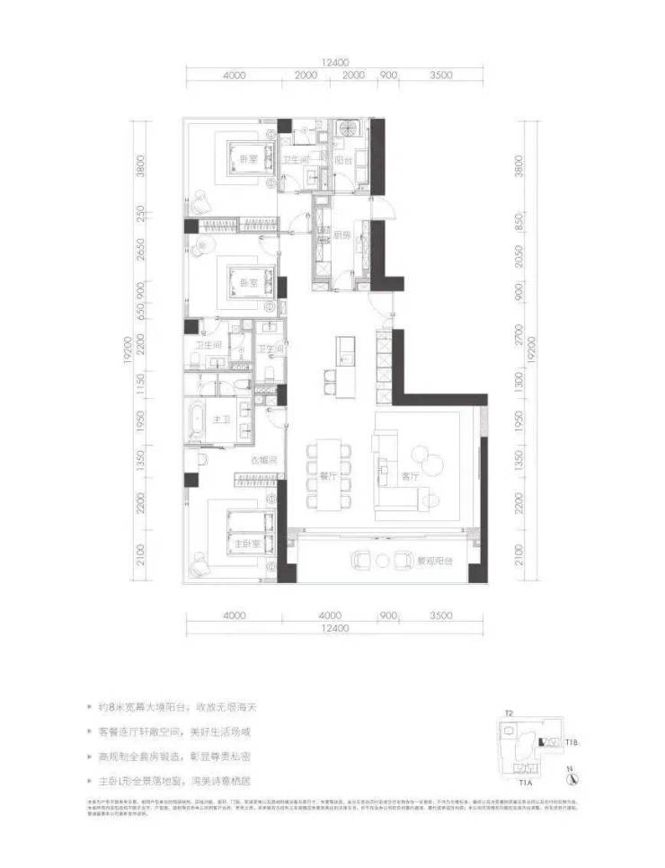
T1A栋A/D:约346/353㎡ 4房2厅4卫
两个户型分别在东西端头位置,三套间+书房,格局相同,面积略有差异,D户型书房更大点。
约9m长的一线海景大阳台,一望无际的海景可以铺满视野。270°采光,270°景色环绕,L型全景落地窗大主卧,绝对的奢享。整体上西端头景观面要好些,西面靠内湾视野更开阔,东面则是住宅区。
T1A栋E:约475㎡ 5房3厅5卫+工人房
在项目的整个布局中,只有高区33-38楼被称为楼王单位,独特而稀缺,显现着尊贵与非凡。这款户型格局犹如T1A栋的A户型得到了升级加强,更高的楼层赋予了更广阔的空间和更全面的功能性。
额外增加的保姆间和起居室为您的生活增添了无尽的便利和舒适。而近80㎡的至尊主卧则带给您独立书房的奢华享受,这无疑是一件收藏级别的产品。

T1A栋F:约259㎡ 3房2厅3卫
T1A栋F户型让人感觉仿佛是T1A栋D户型的一个缩小版,格局尺度不尽如人意,东西向面宽明显缩短,更遗憾的是少了一个房间。
虽然仍拥有相同的景观享受,且楼层更高,但这个户型却有个显著的问题——“中央公卫”的设计显得很突兀,狭长的过道也有些浪费面积。

T1B栋B/C:约221-227㎡ 3房2厅3卫
T1B栋B/C户型与T1A栋B/C户型如同双胞胎,只是在面积上稍有微小的差异。虽然其地理位置相较于T1A栋稍显不足,但仍然可以欣赏到迷人的海景。个人觉得C户型的位置要优于B户型,因为它拥有更广阔的视野,无论是南面的海景还是北面的湾景都一览无余。

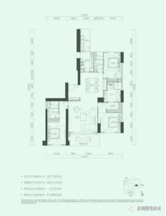
T1B栋A/D:约280㎡ 3房2厅4卫
"T1B栋D户型与T1A栋F户型格局相似,但终于摒弃了令人烦恼的“中央公卫”,取而代之的是精致吧台,视觉效果更加协调。
该户型位于东端头,无任何遮挡,拥有270°的景观视角,是观赏日出的绝佳选择。而与D户型对称的A户型,也位于东端头位置,但由于T2栋和T1A栋的遮挡,其270°景观的完整性受到影响。
总的来说,如果你渴望享受清晨日出的美景,T1B栋D户型是一个值得考虑的选择。"
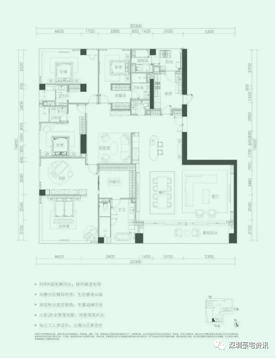
T1B栋E:约409㎡ 4房2厅5卫+工人房
"想象一下,你身处一个409平米的超级平层中,设计师巧妙地安排了四套间,使生活和休息的区域划分得井然有序。独特的西端头公共空间,采用"L"形设计,超大面宽尽显豪华气派。卧室则位于东侧,远离喧嚣的T2办公楼,保证你拥有一个宁静且私密的生活环境。
这个户型只存在于T1B栋的33-38层,数量稀少,极具珍藏价值。这样的居住体验,无疑会让你感受到舒适与尊贵并存的生活品质。"

T1B栋F:约404㎡ 4房2厅5卫+工人房
采用了独特的四套间设计,还配备了工人房,为主仆提供了宽敞的空间。主佣分区,使得生活更加便利。客厅采用竖厅布局,约12米双厅进深,空间利用率超级高。而且,这栋住宅位于东端头位置,拥有270°无遮挡的开阔景观,每个卧室都可以欣赏到美景。此外,它只存在于T1B栋的33-38层,只有6套,是真正的稀有住宅。

二、买新玺都是什么群体?
主要集中在20至30岁的年轻人,特别是从海外留学归来的年轻人。这类群体对居住品质要求很高,对公寓产品接受能力强,同时拥有很强的购买力,本身条件都不差再加上父母这边的帮衬。
选择公寓原因很简单:
1.不喜欢住宅的居家氛围,这会让他们感受到“不轻松”。反而更想要公寓的管理氛围,有商务气氛,管理水平更好。
2.因为公寓品质高、景观好还能提供一流的服务,居住人群也相对纯粹。对而言,享受尊贵的服务才是最重要的,不介意是不是住宅,有没有学位。
项目最高建筑约249米,成为璀璨蛇口的标志性天际线,让人心潮澎湃。华侨城·新玺集多种业态于一身,包括海滨商业街、超甲级写字楼、五星级酒店等,为人们带来全新的滨海休闲乐享生活。
在这里,您可以享受到海风的吹拂、阳光的温暖和美食的诱惑,感受生活的无限魅力。让我们共同漫步在这片美丽的海岸线上,享受华侨城·新玺带来的惬意时光!
深圳【华侨城新玺】在售户型,房价走势以及楼盘折扣详情!
华侨城新玺售楼处咨询/预约热线:400-088-3336(售楼中心)
◆提前来访-预约登记尊享售楼处1v1销售专业讲解〢一对一热情服务〢
◆温馨提示:网上售楼中心〢预约可享内部优惠〢匠心钜制-恭迎品鉴〢
注:暂不接受临时到访客户,看房请提前预约。
免责声明:
以上所发布的关于楼盘相关图文信息仅供您买房前参考,以上所有关于本楼盘的图文资料及说明请以最终官方批文及双方在楼盘营销中心现场签署的买卖最终合同为准;本图文内容如无意中侵犯到某方权益,请联系我们将会及时处理。
声明:本文由入驻焦点开放平台的作者撰写,除焦点官方账号外,观点仅代表作者本人,不代表焦点立场。
