深圳四海华庭(四海华庭)售楼处电话丨楼盘详情/地址/户型/价格
扫描到手机,新闻随时看
扫一扫,用手机看文章
更加方便分享给朋友
深圳【四海华庭】
开发商售楼处电话咨询/预约热线:400-088-3336【售楼中心】24小时热线
深圳【四海华庭】售楼处电话:400-088-3336【营销中心】中介勿扰
深圳四海华庭楼盘详情介绍,包含售楼处电话、地址、户型图、小区图片、区位优势、交通、周边商业配套等楼盘详细资料;更详细楼盘资料和最新折扣价格,请拨打售楼处电话,销售会为您详细介绍楼盘。

深圳【四海华庭】售楼处电话:400-088-3336【营销中心】中介勿扰
位于龙华地铁龙华大浪《华侨城四海华亭》,于2022年11月3日取证入市,本次推出1栋1/2/3/4单元,共1043套住宅房源,面积87㎡的3房1卫,94-97㎡的3房2卫,106-112-121㎡的4房2卫,备案单价5.88万-6.85万/㎡,备案均价6.45万/㎡,总价507万-829万/套,2024年12月31日带精装交房!
项目区域及楼盘介绍:
四海华亭,位于龙华区大浪街道龙胜路与春华路交汇处东侧,由华侨城集团开发,项目毗邻高峰学校,周边多为城中村,城市面貌稍差,不过基本都已经划入城市更新单元,东南侧约1.2公里是龙华最大的壹方天地购物中心,4号地铁线“龙华站”,“龙胜站”距离都在800米范围内,6号地铁线“上芬站”距离约1.4公里。

深圳【四海华庭】售楼处电话:400-088-3336【营销中心】中介勿扰
四海华亭,项目前身为“龙胜旧村城市更新单元”,共分5个地块建设,分别是龙胜华府,龙胜尚府,龙胜悦府,龙胜云坊,四海华亭,另外配建1所9年制学校,如今的龙华中学弘毅校区(龙胜学校),项目总占地面积约5.45万㎡,总建筑面积约56万㎡。
四海华亭,占地面积约1.7万㎡,建筑面积约16.4万㎡,容积率6.81,绿化率30.59%,共4栋51-52层高住宅,由1栋1-4单元组成,其中1栋1.2单元是3梯5户设计,1栋3.4单元是4梯6户设计,可售商品房有1044套,车位数1249个。

深圳【四海华庭】售楼处电话:400-088-3336【营销中心】中介勿扰
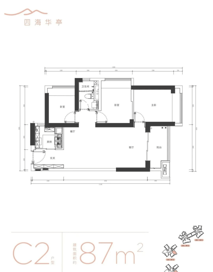
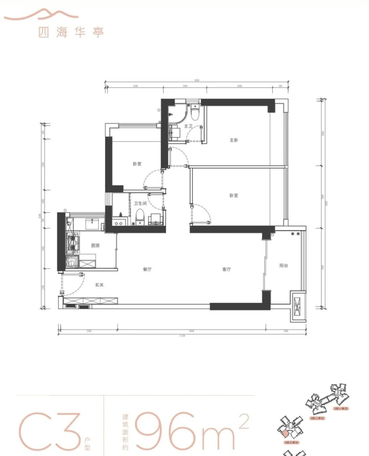
平面图及户型

深圳【四海华庭】售楼处电话:400-088-3336【营销中心】中介勿扰
【C2-建面约87㎡】客餐厅一体化空间,动静分离式布局,超长玄关收纳柜体

深圳【四海华庭】售楼处电话:400-088-3336【营销中心】中介勿扰
【C3-建面约96㎡】
家政阳台定位,6人位餐厅满足多人就餐,主卧独立卫生间

深圳【四海华庭】售楼处电话:400-088-3336【营销中心】中介勿扰
项目周边配套交通配套:
项目1.5公里范围内分布有2条地铁线路,4个地铁站点。其中距离4号线龙华站步行约700米,距离6号线上芬站步行约1.6公里,地铁通勤是比较方便的,比较遗憾的是4号线和6号线在龙胜站没有设置换乘站,不然也可以说是双地铁加持的物业。
项目1.5公里范围内分布有布龙路、和平路、龙观大道、福龙路等主干道,加上龙华本身地处深圳中轴,理论上对外自驾通勤是比较方便的

深圳【四海华庭】售楼处电话:400-088-3336【营销中心】中介勿扰
商业配套:
华侨城龙胜村旧改项目,自身配套商业面积合计约5.11万㎡,未来投入运营后,有望取代龙华中心城片区现有的一些低端商业街及传统百货商场,成为中心区继“壹方天地”之后的又一网红购物休闲娱乐打卡地。
除自身商业和周边商业街、传统百货商场外,项目1.5公里范围内还分布有壹方天地商业、百佳华购物中心、龙华商业中心、RRL mall购物中心、天虹商场、华润万家等多个中大型优质集中式商业。

深圳【四海华庭】售楼处电话:400-088-3336【营销中心】中介勿扰

深圳【四海华庭】售楼处电话:400-088-3336【营销中心】中介勿扰
教育配套:
项目周边教育资源非常丰富,据不完全统计项目1.5公里范围内至少分布有17所学校(含在建、公立、私立),其中约500米范围内就分布有龙华中学、高峰学校、龙华中学弘毅校区(龙胜学校),伟民小学等。
根据龙华2023年招生学区划分,项目地块小学是在龙华高峰学校小学部招生范围内,初中在龙华高峰学校初中部和龙华中学弘毅校区初中部两所学校的招生范围内。(仅供参考)

深圳【四海华庭】售楼处电话:400-088-3336【营销中心】中介勿扰
休闲配套:
周边涵盖深圳美术馆新馆(试运行)与深圳市第二图书馆(已开放)两大深圳新十大文化地标;近享深圳文化馆新馆(在建中)、简上体育综合体、深圳书城(龙华城)等市级文体项目,打造10分钟文体服务圈,构建对标世界的艺术文化生活区。

深圳【四海华庭】售楼处电话:400-088-3336【营销中心】中介勿扰
深圳【四海华庭】
开发商售楼处电话咨询/预约热线:400-088-3336【售楼中心】24小时热线
深圳【四海华庭】售楼处电话:400-088-3336【营销中心】中介勿扰
深圳四海华庭楼盘详情介绍,包含售楼处电话、地址、户型图、小区图片、区位优势、交通、周边商业配套等楼盘详细资料;更详细楼盘资料和最新折扣价格,请拨打售楼处电话,销售会为您详细介绍楼盘。
免责声明:
以上所发布的关于楼盘相关图文信息仅供您买房前参考,以上所有关于本楼盘的图文资料及说明请以最终以项目批文及双方在楼盘营销中心现场签署的买卖最终合同为准;本图文内容如无意中侵犯到某方权益,请联系我们将会及时处理!
声明:本文由入驻焦点开放平台的作者撰写,除焦点官方账号外,观点仅代表作者本人,不代表焦点立场。
