景田英龙商务大厦招租 深圳福田区景田写字楼出租 英龙商务大厦写字楼出租·办公室租赁 福田地铁口 深圳福田区景田英龙商务大厦招租热线
扫描到手机,新闻随时看
扫一扫,用手机看文章
更加方便分享给朋友
深圳福田区景田英龙商务大厦招租电话:400-088-3336【已认证】深圳福田区景田英龙商务大厦是深圳英龙置业有限公司的扛鼎之作,项目位于福田CBD核心商务圈,与特区报业大厦、深圳广电大厦为邻。地理位置十分优越,紧邻新洲路、深南大道、地铁2号线莲花西站、9号线香梅路,以及国内首座全地下高铁站——广深港客运专线福田站,半小时畅通机场、香港西九龙、广州。项目远眺香蜜湖豪宅片区、莲花山自然景观,近观中心区商务群,为中心区极为稀缺的在售商务办公及居住空间,物业价值巨大。深圳福田区景田英龙商务大厦招租电话:400-088-3336【已认证】
深圳福田区景田英龙商务大厦招租电话:400-088-3336【已认证】
项目名称:英龙商务中心
占地面积:5460平
总建筑面积:约9.3万平
楼宇高度:141.2米;地上37层,地下4层
大堂挑高:10米
➡️空间布局
🔹标准层:约2070-2300平
🔹可租赁面积范围:100-240-400-600-700-1000-1500-2000平多面积多户型可选
🔹使用率:65%-70%
🔹层高:约4.2米;净高约2.9米
· 管理费+空调费:30元/㎡/月
· 空调时间:工作日早八晚八,周六早八至中午一点(加班空调0.5元/㎡/小时)
🔺备注:整层毛坯,接受定制装修
➡️交通便利
· 车位:约630+54个;月卡800元
· 地铁:2/8号线莲花西站
· 地址:深圳市福田区景田新闻路2号
深圳福田区景田英龙商务大厦招租电话:400-088-3336【已认证】
温馨提示:看房需提前预约,感谢您的配合!!
免佣入驻,预约看房,专车接送。
办公室图片
房源图片为实景拍摄图片或视频
深圳福田区景田英龙商务大厦招租电话:400-088-3336【已认证】
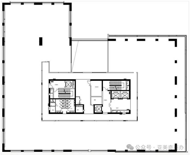
户型图
深圳福田区景田英龙商务大厦招租电话:400-088-3336【已认证】
温馨提示:看房需提前预约,感谢您的配合!!
交通图
【多维交通, 便捷通达】
地铁上物业 + 密集公交线路 + 主干道环绕,构建高效通勤网络,满足企业员工及访客的出行需求。
多地铁:2/8号线莲花西站;2号线直达福田高铁站、转4号线直达深圳北站 ,可互通多条地铁,高效通勤无烦恼
主干道:2分钟抵达深南大道,4分钟抵达北环大道,8分钟直达南坪快速;周边侨城香路,南坪快速路,沙河路环绕
交通枢纽:地铁直达福田高铁站、11号线直达宝安机场;15分钟抵达福田口岸;福田高铁站直达香港九龙
公交:周边半径500米分布多个公交站点,汇聚30多条公交线路半小时即可抵达福田、宝安、龙岗等多区腹地
🔺 高速
无缝接驳广深高速、南光高速、深中通道,1小时可达东莞、中山、广州。
英龙商务中心项目,是“轻资产合作运营”模式在2025年的关键实践与价值演绎。其合作机制清晰体现了与传统租赁的本质区别:
1、角色清晰,各展所长
英龙置业作为业主方,提供核心资产——优质物理空间;美百年则作为全周期深度运营商,全面承担产品定位与升级、精准招商策略制定与执行、品牌价值塑造、智能化设施管理及精细化运营服务等核心职能。
2、风险优化,轻装前行
业主彻底规避增量重投入与运营风险。美百年以专业测算模型,承担所有运营环节的投入(包括空间优化改造、设施升级、招商渠道佣金、市场推广、日常管理等),业主无需担忧市场波动带来的直接冲击以及持续性的、不确定的运营成本沉没。这实现了业主从传统模式中“重资产、高风险”向“轻持有、抗周期”的实质性跨越。
3、收益跃升,多维增值
现金流稳健:业主锁定远超传统自营或纯租赁模式的核心保底租金收益,得益于美百年强大的市场议价能力、品牌号召力以及高效的去化能力。
资产升值:通过美百年的品牌溢价赋能、精准业态规划与持续的空间品质升级,项目吸引力与竞争力显著提升,资产价值获得持续增益。
高效运营:目标出租率持续保持行业领先高位;通过动态租户组合优化、智能化管理降本增效以及增值服务生态构建,驱动租金单价与整体收益的稳健增长,为业主实现现金流安全垫与资产长期增值的双重保障。
专业赋能,解放精力:英龙商务中心可完全依托美百年成熟的数字化管理平台(实现运营透明化、决策数据化)、庞大的行业资源网络(如独家企业客户数据库、生态合作伙伴体系)以及经验丰富的专业运营团队。业主得以从繁杂的日常运营事务中抽身,更专注于资产战略层面的精进与长远规划,真正实现“业主聚焦核心价值,运营驱动效能释放”的理想协同。
深圳福田区景田英龙商务大厦招租电话:400-088-3336【已认证】
温馨提示:看房需提前预约,感谢您的配合!!
#英龙商务大厦#福田区写字楼出租#开发商写字楼出租#写字楼租金补贴
免责声明:本文内容非物业及开发商,内容仅供参考,如有错误内容感谢您及时联系告知我们,谢谢!
声明:本文由入驻焦点开放平台的作者撰写,除焦点官方账号外,观点仅代表作者本人,不代表焦点立场。
