南山1978半岛擎峯售楼处(南山1978半岛擎峯)首页网站-南山1978半岛擎峯营销中心-南山1978半岛擎峯欢迎您丨户型价格-容积率-样板房-配套详情@最新售楼处
扫描到手机,新闻随时看
扫一扫,用手机看文章
更加方便分享给朋友
南山1978半岛擎峯
售楼处电话TEL:400-088-3336【售楼中心】
开发商售楼热线:400-088-3336【售楼中心】
◆提前来访-预约登记尊享售楼处1v1销售专业讲解〢一对一热情服务〢
◆温馨提示:网上售楼中心〢预约可享内部优惠〢匠心钜制-恭迎品鉴〢
南山赤湾,南山1978·半岛擎峯,备案名:琅玥湾佳园于2024年11月8日取证入市,本次推出1/2栋,共370套房源,面积有113平的3房2卫,124-140平的4房2卫,167平的5房3卫户型,备案均价7.8万/㎡,备案单价7.06-9.27万/㎡,总价801-1545万/套,计划在2026年3月份带精装交房。
半岛擎峯也是开云府2期,该楼盘全部都是商品房住宅,无安居房、公租房、回迁房等,并且属于赤湾首排一线海景住宅,一梯一户板楼设计,户户朝南。
01.基础数据
琅玥湾佳园
【项目名称】琅玥湾佳园
【开发商】深圳市海越锦实业发展有限公司
【项目地址】南山区招商街道赤湾三路与赤湾六路交汇处
【占地面积】约1.1万㎡
【总建筑面积】约7.5万㎡
【建筑类型】2栋住宅
【可售套数】约380套
【产品面积段】建面约113-124-129-167㎡2-5房及少量顶复
【梯户比】5T5/4T4
【容积率】4.77
【使用率】约80%
【车位】330个,1:0.87
【楼层高】共两栋,48F/25F
【交楼时间】25年10月精装交付
【产权年限】70年
01
项目户型介绍
113㎡的3房2厅2卫,设计的是竖厅格局,电梯入户送独立公区,LDKB一体化设计,动静分区,三开间朝南,客厅连接次卧出超大观景阳台,主卧大套间设计,二字型厨房带1个小生活阳台,卫生间干湿分离,得房率:72.07%(不含赠送),西南朝向。
124㎡的3+1房2厅2卫,1栋02/2栋04户型,电梯入户送独立公区,设计的是竖厅格局,LDKB一体化设计,动静分区,主卧套间设计,还有一个多功能间可以做书房,U型厨房,公卫三段式分离,得房率:72.07%(不含赠送),西南朝向。
124㎡的4房2厅2卫,1栋01/2栋05户型,电梯入户送独立公区,设计的是横厅南北通透格局,客餐厅6.1米开间,LDKB一体化设计,五开间朝南,主卧大套间设计,6.1米长观景大阳台,U型厨房,公卫三段式分离,得房率:72.07%(不含赠送),西北或东南朝向。
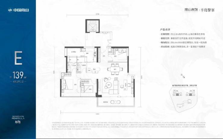
139㎡的4房2厅2卫,1栋03/2栋02高区户型,电梯入户送独立公区,设计的是竖厅类双龙抱珠格局,四开间朝南,主卧大套间设计,有1个多功能间可以做书房,6.4米长观景大阳台,L型厨房带1个生活阳台,卫生间干湿分离,得房率:72.07%(不含赠送),西南朝向。
167㎡的5房2厅3卫,1栋02/2栋03高区户型,电梯入户送独立公区,设计的是竖厅双龙抱珠格局,四开间朝南,超宽敞客厅巨幕阳台,主卧大套间设计,U型厨房,双公卫三段式分离,得房率:72.07%(不含赠送),西南朝向。
← 左右滑动查看更多户型图 →
02
项目区域及楼盘介绍
琅玥湾佳园,位于南山区招商街道赤湾六路与赤湾三路交汇处东北侧,地处前海赤湾板块,作为“蛇口国际海洋城”三大主要承载区之一,与太子湾片区,蛇口片区共同融入深圳“太空港-前海-蛇口”西部海洋科技创新走廊,定位为“赤湾海洋科技创新区”。
琅玥湾佳园,总占地面积约1.11万㎡,总建筑面积约7.55㎡,计容建筑面积约5.32万㎡,容积率4.5,绿化率40%,共由2栋总高45层的超高层住宅组成,分别是1栋,2栋,纯板楼设计。
总规划380户,全部都是商品房,31楼以下为低区5梯5户,31楼以上为高区,4梯4户,地下室有2层半,规划330个停车位,车位占比约1:0.87。
大面采用灰色铝板和三层超白LOW-E玻璃类幕墙,提高建筑的安全性,腐蚀性和耐久性,确保建筑形体的美观,公建化先锋立面,品质历久弥新。
1:1的豪华梯户比,31层以下5梯5户,31楼以上4梯4户,私密性更强,居住更舒适,出入从容有序。
三重尊奢归家,主入口前设置迎宾广场,拾级而上,入社区后景致相依,酒店式的归家奢华大堂,营造归家尊崇仪式感。
约4300㎡社区园林,以“海岛花园”为主题,营造多个岛状特色空间组团,皇家园林移步移景的设计打造手法,独一无二的滨海花园体验。
社区内配备了阳光双泳池(儿童&成人)、阳光草坪、全龄儿童活动区、四大主题多功能泛会所等社区活动场所,满足业主休闲生活所需。
车库双大堂设计,大面积采用天然浅色石材,并于天然奢石加以点缀,光厅顶面采用金属构件,结合灯带,增加层次感,彰显项目高定品质。
03
项目周边配套
交通配套:山海丹华府距离2/8号地铁线“赤湾站”距离约300米,步行约5分钟即可,2站到海上世界,前海妈湾,另外附近有小南山隧道在建,待开通后可直达前海核心区,还有妈湾跨海通道在建,待开通后可直达腾讯科技岛,无缝对接中山通道。
学校配套:项目200米处有南二外赤湾学校,该校有41个班,其中小学26班,初中15班,是1所九年制公办学校;南山中英文学校,该校是1所12年制的国际学校,涵盖小学,初中,高中,于2023年9月份已经正式开学,并且开办了协同港籍学生班,是一所获得深圳教育局和香港教育局统一批准的港籍子弟班。这也就意味着学校办学稳定,学生可无缝衔接香港的学校。
商业配套:项目约200米有约4.6万㎡赤湾汇商业(待营业),约1.9公里有约46万㎡的太子湾高端商业(在建,建成后将会是整个深圳最大体量最高端的商业体,内有K11ECOAST,兰桂坊太子湾等),约2.2公里有海上世界,2站可以抵达前海印里,前海世贸中心等商业综合体。
K11ECOAST是K11在内地的首个旗舰项目,计划在2024年底开业运营,总建筑面积约22.85万㎡,延续了K11品牌 “艺术·人文·自然”三大核心元素,涵盖K11购物艺术中心、K11 HACC多用途艺术展览空间、K11 ATELIER办公楼及Promenade海滨长廊等。
K11 ECOAST致力打造中国有影响力的海滨文化艺术区,开业后将成为深圳最大的购物中心之一,也是粤港澳大湾区的商业新标杆与名片。
南山1978半岛擎峯
售楼处电话TEL:400-088-3336【售楼中心】
开发商售楼热线:400-088-3336【售楼中心】
◆提前来访-预约登记尊享售楼处1v1销售专业讲解〢一对一热情服务〢
◆温馨提示:网上售楼中心〢预约可享内部优惠〢匠心钜制-恭迎品鉴〢
免责声明:部分图片来源网络,如有侵权请联系后台,我们会第一时间删除。本文资料仅为要约邀请,部分图片为示意性图片,一切图文资料、规划设计仅供参考识别或分享交流之用,不构成合同内容,具体内容均以政府最终批准文件及双方签订的买卖合同为准。
声明:本文由入驻焦点开放平台的作者撰写,除焦点官方账号外,观点仅代表作者本人,不代表焦点立场。
