深圳【鸿荣源珈誉府】售楼处电话丨售楼处地址丨24小时电话丨鸿荣源珈誉府售楼中心
扫描到手机,新闻随时看
扫一扫,用手机看文章
更加方便分享给朋友
深圳【鸿荣源珈誉府】
开发商售楼处电话咨询/预约热线:400-088-3336【售楼中心】24小时热线
深圳【鸿荣源珈誉府】售楼处电话:400-088-3336【营销中心】中介勿扰
深圳鸿荣源珈誉府楼盘详情介绍,包含售楼处电话、地址、户型图、小区图片、区位优势、交通、周边商业配套等楼盘详细资料;更详细楼盘资料和最新折扣价格,请拨打售楼处电话,销售会为您详细介绍楼盘。

深圳【鸿荣源珈誉府】售楼处电话:400-088-3336【营销中心】中介勿扰
深圳【鸿荣源珈誉府】售楼处电话:400-088-3336【营销中心】中介勿扰
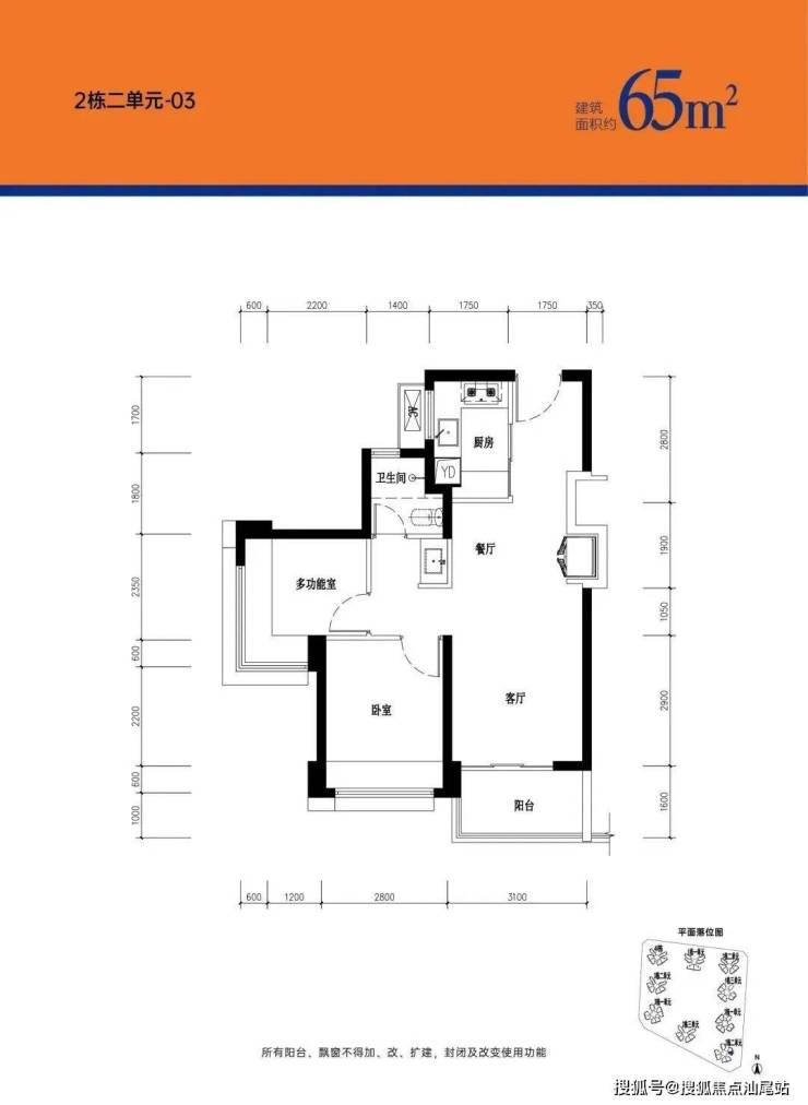
65㎡的2房2厅1卫,设计的是竖厅格局,LDKB一体化,客厅3.1米开间,S墙设计预留冰箱卡槽位,2个卧室分别为2.8/2.35米的宽度,U型厨房,得房率:77.27%(不含赠送),阳台进深1.6米,东北朝向。
深圳【鸿荣源珈誉府】售楼处电话:400-088-3336【营销中心】中介勿扰
76㎡的3房2厅1卫,设计的是竖厅格局,LDKB一体化,客厅3.1米开间,S墙设计预留冰箱卡槽位,3个卧室分别为2.9/2.8/2.25米的宽度,U型厨房,得房率:77.54%(不含赠送),阳台进深1.6米,东南朝向。
深圳【鸿荣源珈誉府】售楼处电话:400-088-3336【营销中心】中介勿扰
85㎡的3房2厅2卫,设计的是竖厅格局,LDKB一体化,客厅3.2米开间,S墙设计预留冰箱卡槽位,3个卧室分别为3/2.7/2.4米的宽度,主卧270°环幕飘窗视野,U型厨房,公卫三段式分离设计,得房率:77.54%(不含赠送),阳台进深1.6米,西北朝向。
深圳【鸿荣源珈誉府】售楼处电话:400-088-3336【营销中心】中介勿扰
86㎡的3房2厅2卫,设计的是竖厅南北通透格局,客厅3.2米开间,3个卧室分别为3.2/2.75/2.4米的宽度,主卧270°环幕飘窗视野,U型厨房,得房率:77.54%(不含赠送),阳台进深1.3米,主朝西北、东北、东南或西南朝向。

深圳【鸿荣源珈誉府】售楼处电话:400-088-3336【营销中心】中介勿扰
87平米,设计的是横厅南北通透格局,客餐厅6.2米开间,3个卧室分别为3.3/2.65/2.35米的宽度,主卧270°环幕飘窗视野,U型厨房,得房率:77.54%(不含赠送),阳台进深1.7米,主朝东南朝向。
深圳【鸿荣源珈誉府】售楼处电话:400-088-3336【营销中心】中介勿扰
94㎡的3房2厅2卫,设计的是竖厅格局,动静分区,客厅3.4米开间,S墙设计预留冰箱卡槽位,3个卧室分别为3.7/2.7/2.35米的宽度,主卧270°环幕飘窗视野,U型厨房,得房率:77.54%(不含赠送),阳台进深1.6米,西南朝向。
深圳【鸿荣源珈誉府】售楼处电话:400-088-3336【营销中心】中介勿扰
105㎡、120㎡,设计的是竖厅格局,动静分区,客厅3.6米开间,个卧室分别为3.3/2.75/2.35/2.35米的宽度,主卧270°环幕飘窗视野,U型厨房,阳台进深1.6米,西南或东南朝向看小区花园。
深圳【鸿荣源珈誉府】售楼处电话:400-088-3336【营销中心】中介勿扰
深圳【鸿荣源珈誉府】售楼处电话:400-088-3336【营销中心】中介勿扰

深圳【鸿荣源珈誉府】售楼处电话:400-088-3336【营销中心】中介勿扰
项目具备了刚需买房最关注的几个因素:地铁、学校和商业!
首先是地铁
本项目与地铁11号线塘尾站无缝连接,4站到宝安机场区域,6站到宝中,7站到前海,11到车公庙。一小时通达全城。
深圳【鸿荣源珈誉府】售楼处电话:400-088-3336【营销中心】中介勿扰
其次是商业,鸿荣源·珈誉府整体规模约248万平,是一个集“誉”系高端住宅、旗舰商业、总部办公、高端酒店等多元业态于一体的百万级城市综合体,其中商业体量约50万平。

深圳【鸿荣源珈誉府】售楼处电话:400-088-3336【营销中心】中介勿扰
50万平方的商业属于什么级别?
宝中壹方城商业体量约36万平,而南山科技园的万象天地商业体量也只有约23万平;这里相当于1.5个前海壹方城,2.17个万象天地,未来将打造成湾区城市级购物中心——“湾区壹方”。
据说将引进国际知名品牌折扣店,打造成高端名品奥特莱斯,届时不仅补齐片区高端商圈配套,还将营造高端消费场景、重新定义片区乃至湾区新商业模式。
高端繁华配套,未来鸿荣源·珈誉府业主出门就可享受,湾区潮流前沿都市繁华生活,就在楼下。
再者,项目一期处在深圳四大名校之一的:深圳外国语学校宝安学校招生范围

深圳【鸿荣源珈誉府】售楼处电话:400-088-3336【营销中心】中介勿扰
项目将建1所幼儿园,周边有广东省一级学校——深圳外国语学校宝安学校,。
根据2023年宝安教育局公布的学区划分,鸿荣源·珈誉府此次获批预售的地块处于深圳外国语学校宝安学校学区范围内。(信息参考来源:深圳外国语学校(集团)官网、宝安区教育局)
这也是宝安区委政府首次引进的深圳四大名校!

深圳【鸿荣源珈誉府】售楼处电话:400-088-3336【营销中心】中介勿扰

深圳【鸿荣源珈誉府】售楼处电话:400-088-3336【营销中心】中介勿扰

深圳【鸿荣源珈誉府】售楼处电话:400-088-3336【营销中心】中介勿扰
深圳【鸿荣源珈誉府】
开发商售楼处电话咨询/预约热线:400-088-3336【售楼中心】24小时热线
深圳【鸿荣源珈誉府】售楼处电话:400-088-3336【营销中心】中介勿扰
深圳鸿荣源珈誉府楼盘详情介绍,包含售楼处电话、地址、户型图、小区图片、区位优势、交通、周边商业配套等楼盘详细资料;更详细楼盘资料和最新折扣价格,请拨打售楼处电话,销售会为您详细介绍楼盘。
免责声明:
以上所发布的关于楼盘相关图文信息仅供您买房前参考,以上所有关于本楼盘的图文资料及说明请以最终以项目批文及双方在楼盘营销中心现场签署的买卖最终合同为准;本图文内容如无意中侵犯到某方权益,请联系我们将会及时处理!
声明:本文由入驻焦点开放平台的作者撰写,除焦点官方账号外,观点仅代表作者本人,不代表焦点立场。
