中海时光境售楼处电话→中海时光境售楼中心首页网站→楼盘百科
扫描到手机,新闻随时看
扫一扫,用手机看文章
更加方便分享给朋友
深圳【中海时光境】
中海时光境售楼处电话:400-088-3336【看房请提前线上预约】
中海时光境售楼处电话:400-088-3336【营销中心】_24小时电话
中海时光境售楼处欢迎您_深圳中海时光境售楼处最新详情/地址/户型/价格
中海时光境上次在10月26日开盘推出来1栋1单元,对外官宣销控200套,在官网查询目前销量确实差不多,当前还剩少量中间楼层在卖,因为价格是整栋楼里面最贵的,所以销量会慢些。目前已经是现房状态
项目周边配套完善,旁边就是光明高铁站,以及楼下有6-13号线两条地铁线,还有名校深实验都在楼下,楼下未来还有规划10万㎡的大型商业,项目城市景观也是很不错
在售折后总价区间
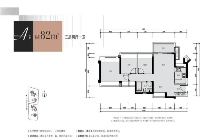
竖厅82㎡的3房2厅1卫,东北向,折后总价300-320万/套
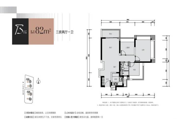
横厅82㎡的3房2厅1卫,东北向,折后总价320-340万/套
89㎡的3房2厅2卫,西南向,折后总价345-375万/套
108㎡的4房2厅2卫,南北通透,折后总价430-475万/套
项目基础信息
【项目名称】中海时光境
【占地面积】约27057㎡
【建筑面积】约169851㎡
【推售产品】建面约82-108㎡三至四房
【交付标准】待定
【交房时间】待定
【产权年限】住宅
【房产性质】70年
【总户数】1739户
【绿化率】30%
【开发商】深圳市中海启明房地产开发有限公司
【物业公司】中海物业
【项目地址】深圳市光明区凤凰街道
都会枢纽纵横时光想象
【光明科技城】-深圳北部中心、未来发展核芯引擎
中国科创看湾区,湾区科创看光明。
光明科学城规划总面积约99平方公里,将建设成为大湾区综合性国家科学中心先行启动区,锚定世界一流科学城和深圳北部中心的城市定位,代表国家参与全球科技竞争与合作。
2022年辖区GDP突破1400亿大关(1427亿元),同比增长6.5%;规模以上工业增加值同比增长4.9%;规模以上工业企业数量突破2000家,同比增长近两成。
【凤凰城】-光明的中央商务区、总部企业集群、超级商圈所在地
光明的城市中心,凤凰城CBD,GDP占比全区26%。
大型科技企业总部落户首选地。
“科创融合先锋商务区”建设的重要基础。
》帷幄时空赋能时光向往
【多维轨道交通,连接繁华生活】
7站南山,直抵高新区、深圳湾等
【高铁线】
2站广州南、3站西九龙,广深港一线直达
【高速线】
龙达高速、深圳外环高速,直达广深莞
【全系生活坐标,步行即享繁盛】
缤纷商业场:
光明城百万方综合体(规划)、蓝鲸世界、万达广场、Cococity
成长培育场:
南科大附属光明凤凰学校、光明外国语学校,光明城学校(在建)
生态休闲场:
休闲公园(百花园-在建)
综合公园(新城公园、虹桥公园等)
森林公园(阳台山森林公园、光明农场等)
安心健康场:
拥有三家“三甲”医院,实现了区内三级综合性医院三甲全覆盖。
预计2025年总床位5000+,推进新增建设妇幼保健院、公共卫生服务中心、中山大学附属第七医院(二期)
文体活力场:
光明区图书馆、光明文化艺术中心、深圳科技馆新馆、光明区群众体育中心
》质地有声,时光历练成峰
【 精研空间格局,匠呈品质生活】
入户玄关:
独立收纳空间,兼具收纳、装饰功能,让归家充满仪式感
LDKB一体:
客餐厨阳台一体化设计,最大化延伸尺度空间感,流畅动线,打造家庭主要功能区和情感交流场所,实现功能与尺度的优解
U型厨房:
动线合理,功能分区明确,可轻松容纳多人同时操作,让烹饪时光更从容
动静分区:
娱乐休憩互不干扰,让生活与休息二者兼得,全家各得其乐
主卧套房:
配备独立卫浴,舒适私享空间,从容品味高雅生活
创新L型大飘窗:
更优采光面,延伸更广阔的景观视野;更可打造静坐冥想、喝茶看书等个性化使用场景,成就美好生活本真
项目户型面积为82㎡3房1卫.89㎡3房2卫.108㎡4房2卫户型,为3梯6户设计,毛坯限价4.89万/㎡
》臻筑荣光,时光履迹相承
【工科中海专筑精品】
中海地产,业务覆盖90余座城市;打造精品项目超1800个,所到之处皆有划时代的标杆作品诞生。(信息来源:中国海外官网)
【中海物业行稳致远】
中海物业,中国首批一级资质物业管理企业。
历经37载发展,服务港澳及内地144城,在营项目1643个,服务面积3.2亿平米。(信息来源:2023.03.23《中海物业》官方微信号)
服务超100家世界500强企业,国家优秀示范小区数量行业第一、品牌影响力全国第一。(信息来源:2022.11.22《深圳市物业管理行业协会》官方微信号)
中海物业,中国物业行业重要的标准制定者,被誉为“中国第一管家”。
楼盘综合点评
项目位置距离光明城交通枢枢纽在300米左右,(后期多条地铁交汇在此)一定程度上避免不了高铁噪音。但交通比较方便,无论是地铁还是开车去南山以及到宝安都非常方便。
目前周边商业配套较为欠缺,不过随着华润润晖府‘、润曜府和中海新地块以及周边新住宅区不断完善,也会促进高铁新城商业的快速发展!
教育方面,距离现有的学校有一点距离,不过在旁边300米范围内,有一所新规划36班学校。
户型是中海系今年最新推出的户型,采用了大量L型飘窗,最大限度的扩展户型的得房率,整体空间感非常不错。
深圳【中海时光境】
中海时光境售楼处电话:400-088-3336【看房请提前线上预约】
中海时光境售楼处电话:400-088-3336【营销中心】_24小时电话
中海时光境售楼处欢迎您_深圳中海时光境售楼处最新详情/地址/户型/价格
免责声明:本文所有文章、图片、音频视频文件等资料版权归版权所有人所有,因非原创文章及图片等内容无法一一和版权者联系,如原作者或编辑认为作品不宜上网供大家浏览,请及时来电告之,我们将立即予以修改或删除。本文如无意中侵犯了某方的知识产权,告之即删。
声明:本文由入驻焦点开放平台的作者撰写,除焦点官方账号外,观点仅代表作者本人,不代表焦点立场。
