深圳中洲迎玺(售楼处)首页网站中洲迎玺售楼处欢迎您|地址-价格-户型-位置
扫描到手机,新闻随时看
扫一扫,用手机看文章
更加方便分享给朋友
深圳【中洲迎玺】
开发商售楼处电话咨询/预约热线:400-088-3336【售楼中心】24小时热线
深圳【中洲迎玺】售楼处电话:400-088-3336【营销中心】中介勿扰
深圳中洲迎玺楼盘详情介绍,包含售楼处电话、地址、户型图、小区图片、区位优势、交通、周边商业配套等楼盘详细资料;更详细楼盘资料和最新折扣价格,请拨打售楼处电话,销售会为您详细介绍楼盘。
中洲迎玺折后价格:
96平折后价格:628-652万
115平折后价格:780-803万
143平折后价格:963-1023万
149平折后价格:755-981万
173平折后价格:1133-1163万
211-225平三套顶复折后价格:1492-1795万
——项目概况——
【占地面积】约3.7万㎡
【建筑面积】约21.9万㎡
【容积率】约4.24
【梯户比】3T3/3T4 (此次推售5栋一/二/三单元)
【车位】约1405个
【楼栋及户数】8个单元住宅楼+1栋幼儿园,规划约1272户(此次5栋一/二/三单元推出约491套)
【产品面积】约94-173㎡3-5房(可售)
【交付时间】2027年
【地铁】4/5/6/22(建设中)/27(建设中)/深惠城轨(规划中)
【幼儿园】小区配建18班幼儿园
【学校】深圳外国语学校龙华校区(初中大学区,具体以当年教育局公布为准);格致中学民治校区(已于2024年4月正式动工)

深圳【中洲迎玺】售楼处电话:400-088-3336【营销中心】中介勿扰
中洲迎玺三期作为北站超核唯一纯居新盘,一直备受市场瞩目,2024年不仅是龙华的三冠王(销售面积/套数/金额),更在全年销售面积方面,排名进入全市TOP3,并在2025年1-3月,再获龙华三冠王。

深圳【中洲迎玺】售楼处电话:400-088-3336【营销中心】中介勿扰
立于城市封面群
中洲迎玺三期所在的深圳北站片区,处深圳中轴地段。根据《深圳市国土空间总体规划(2021-2035年)》,深圳北站总部基地是深圳7大总部基地之一,计划投入2000亿巨资,以高标准缔造深圳中芯,形成多元复合的国际会客厅,在北站总部基地升级后,将以城市超核为中心,打造全新体验的城市新封面,成就湾区未来枢纽超级地标。

深圳【中洲迎玺】售楼处电话:400-088-3336【营销中心】中介勿扰

深圳【中洲迎玺】售楼处电话:400-088-3336【营销中心】中介勿扰
毗邻北站枢纽中心,多维交通全面通达
中洲迎玺三期毗邻全国重要交通枢纽-深圳北站,有着全城仅有的“1超级枢纽+5地铁+8快速路”多维交通路网,高效连接深圳全城,快速通达全市各核心片区。

深圳【中洲迎玺】售楼处电话:400-088-3336【营销中心】中介勿扰
1超级枢纽——深圳北站:深圳北站是深圳规模最大、设备技术最先进的客运枢纽,可快速抵达湾区各大核心城区,一地两检,通达香港及全国。

深圳【中洲迎玺】售楼处电话:400-088-3336【营销中心】中介勿扰
5条地铁——联通全城:地铁4/5/6号线交汇于深圳北站,地铁22号线/27号线正在建设中,此外还有规划的深惠城轨,未来将是深圳地铁线路最密的片区之一。
8条快速路——四横四纵公路网:福龙路、南坪快速、北环大道等“四横四纵”深圳主干道环绕周边,驾车轻松即达深圳的各核心片区。
【学校配套】小区配建18班幼儿园,深圳外国语学校龙华校区(初中大学区,具体以当年教育局公布为准);格致中学民治校区(已于2024年4月正式动工)

深圳【中洲迎玺】售楼处电话:400-088-3336【营销中心】中介勿扰
【商业配套】超百万醇熟商圈环绕,都市生活触手可及
项目周边汇聚了龙华首家华润万象商业(建设中)、红山6979、华南首家Costco旗舰店等品质商业,近100万㎡ 的商圈环伺,国际一线品牌荟萃,演绎未来潮流新主场。

深圳【中洲迎玺】售楼处电话:400-088-3336【营销中心】中介勿扰

深圳【中洲迎玺】售楼处电话:400-088-3336【营销中心】中介勿扰
【文体配套】五馆一体文体配套,尽享活力多彩生活
深圳展览馆、深圳市文化新馆 (建设中)、深圳演艺馆、深圳市图书馆北馆,深圳市美术馆新馆、简上体育综合体汇聚在项目周边,享受活力多彩的品质生活。

深圳【中洲迎玺】售楼处电话:400-088-3336【营销中心】中介勿扰
【医疗配套】智享全维优质医疗
拥有全市体量最大的三甲医院——深圳新华医院(24年12月6日正式启用),华南地区规模最大的儿童医院——深圳市第二儿童医院(24年10月31日正式启用),享受未来全龄段优质医疗服务。

深圳【中洲迎玺】售楼处电话:400-088-3336【营销中心】中介勿扰
【公园配套】八大生态公园相伴,邂逅自然光景
项目周边正在建设超核“未来之眸”——绿芯公园,绿芯公园总用地面积约11.33万㎡,它不仅仅是一个公园,还是这座城市客厅的文化载体,规划有数字探索馆、艺术巡展创意区、国际演绎交互区、时尚活动运动区、青少年科创体验区等创新型场所。

深圳【中洲迎玺】售楼处电话:400-088-3336【营销中心】中介勿扰
另有民治体育公园、白石龙音乐主题公园、深圳北站中心公园、南园公园、逸秀公园、玉龙公园、德逸公园等7个生态公园环绕在周边,居住都市核心,与自然相伴。

深圳【中洲迎玺】售楼处电话:400-088-3336【营销中心】中介勿扰
【奢阔楼间宽距】近160米超宽楼间距,最大化楼间距保证了视野的开阔度和充分的通风采光,高私密性,高舒适性。

深圳【中洲迎玺】售楼处电话:400-088-3336【营销中心】中介勿扰
约4.24容积率,极具片区竞争力
中洲迎玺三期约4.24的容积率,是目前区域内容积率相对很低的新盘,低容积率保证了业主视野的开阔度和充分的通风采光,片区稀缺2梯4户/2梯5户/3梯4户/3梯3户,让居住有了更高的私密性与舒适性。

约1.3万㎡超大园林,享城市微度假生活
作为片区内最大的社区园林,中洲迎玺三期配有精制“四大隐奢空间”、“三大能量场域”,再搭配森系儿童乐园、四季隐形轻氧跑道等,以顶奢酒店园林设计为理念,为当代年轻人打造出城市微度假生活。
中洲迎玺三期设计了极具昭示性和仪式感的府邸级归家入口,营造出静谧庄重的氛围,项目用品质材料和名师设计为业主打造出整体尊贵感与奢华感。

新规全周期户型,满足刚需及改善需求
中洲迎玺三期此次推出的是建面约96-173㎡3-5房户型,多样化的产品既能够满足年轻群体首套房的置业需求,又为追求更高生活品质的换房群体提供更好选择。
作为北站超核中心目前唯一新规户型新盘,此次加推的楼王单位大户型有着阔绰尺度3T3梯户比,满足全周期家庭户型需求,未来生活一步到位。

深圳【中洲迎玺】售楼处电话:400-088-3336【营销中心】中介勿扰
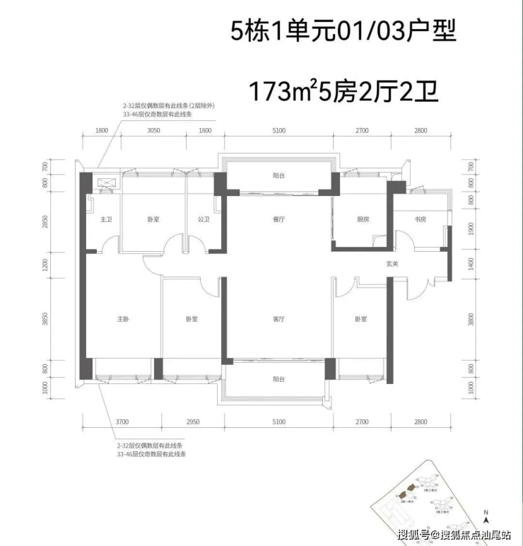
【五栋一单元-平面图】3梯3户,3条腿,分别是01、03号房户型约173㎡的5房2厅2卫、02号房户型约149㎡的5房2厅2卫
约173㎡的户型做到了南北对流,户型尺度宽敞
约149㎡的户型做到了双龙抱珠,聚气藏风使用

深圳【中洲迎玺】售楼处电话:400-088-3336【营销中心】中介勿扰

深圳【中洲迎玺】售楼处电话:400-088-3336【营销中心】中介勿扰

深圳【中洲迎玺】售楼处电话:400-088-3336【营销中心】中介勿扰
【五栋二单元-平面图】3梯4户,4条腿,01号房户型约144㎡的5房2厅2卫,02、03号房户型约96㎡的3房2厅2卫,04号房户型约115㎡的4房2厅2卫。
约96㎡的户型标准竖厅格局,最低上车门槛
约115㎡的户型阔绰阳台直连次卧,明亮实用
约144㎡的户型双龙抱珠,聚气藏风使用

深圳【中洲迎玺】售楼处电话:400-088-3336【营销中心】中介勿扰

深圳【中洲迎玺】售楼处电话:400-088-3336【营销中心】中介勿扰

深圳【中洲迎玺】售楼处电话:400-088-3336【营销中心】中介勿扰
【五栋三单元-平面图】3梯4户,4条腿,跟二单元的户型产品一模一样,01号房户型约144㎡的5房2厅2卫,02、03号房户型约96㎡的3房2厅2卫,04号房户型约115㎡的4房2厅2卫。

深圳【中洲迎玺】售楼处电话:400-088-3336【营销中心】中介勿扰

深圳【中洲迎玺】售楼处电话:400-088-3336【营销中心】中介勿扰

深圳【中洲迎玺】售楼处电话:400-088-3336【营销中心】中介勿扰

深圳【中洲迎玺】售楼处电话:400-088-3336【营销中心】中介勿扰

深圳【中洲迎玺】
开发商售楼处电话咨询/预约热线:400-088-3336【售楼中心】24小时热线
深圳【中洲迎玺】售楼处电话:400-088-3336【营销中心】中介勿扰
深圳中洲迎玺楼盘详情介绍,包含售楼处电话、地址、户型图、小区图片、区位优势、交通、周边商业配套等楼盘详细资料;更详细楼盘资料和最新折扣价格,请拨打售楼处电话,销售会为您详细介绍楼盘。
免责声明:
以上所发布的关于楼盘相关图文信息仅供您买房前参考,以上所有关于本楼盘的图文资料及说明请以最终以项目批文及双方在楼盘营销中心现场签署的买卖最终合同为准;本图文内容如无意中侵犯到某方权益,请联系我们将会及时处理!
声明:本文由入驻焦点开放平台的作者撰写,除焦点官方账号外,观点仅代表作者本人,不代表焦点立场。
