2025中建鹏宸云筑(售楼中心)首页网站-中建鹏宸云筑优缺点-楼盘详情-最新价格-户型图-容积率@售楼处
扫描到手机,新闻随时看
扫一扫,用手机看文章
更加方便分享给朋友
🔵中建鹏宸云筑售楼处电话☎:400-088-3336售楼处已认证】⚡⚡
◾在售户型图丨项目介绍丨最新房源丨周边配套丨详细解答〢
◾开发商营销中心诚挚邀请,一键预约,尊享内部独家折扣!匠心独运的精品项目,恭候您的品鉴与选择。
🔵中建鹏宸云筑开发商电话☎:400-088-3336【开发商已认证】⚡⚡
🔵中建鹏宸云筑售楼中心电话☎:400-088-3336【售楼中心已认证】⚡⚡
🔵中建鹏宸云筑营销中心电话☎:400-088-3336营销中心已认证】⚡⚡
⚡本项目暂不接受临时到访,看房请提前预约,可尊享内部特惠!
⚡为您安排楼盘内场专业销售人员一对一接待服务,给您更贴心的看房体验!
4000883336
位于龙华梅林关的网红楼盘【中建鹏宸云筑】西区即将加推,本次首推西区的8栋,总高32层,2T5户,面积102-118-139平的3-4房!8栋位置相对会比较好,视野更开阔,价格可能会贵些,实体样板房不久将会开放,8栋预计在8月底取证开盘,目前东区2栋还有少量房源。
欢迎预约看房,请勿自行前往(判为上门客)将会失去渠道购房优惠!
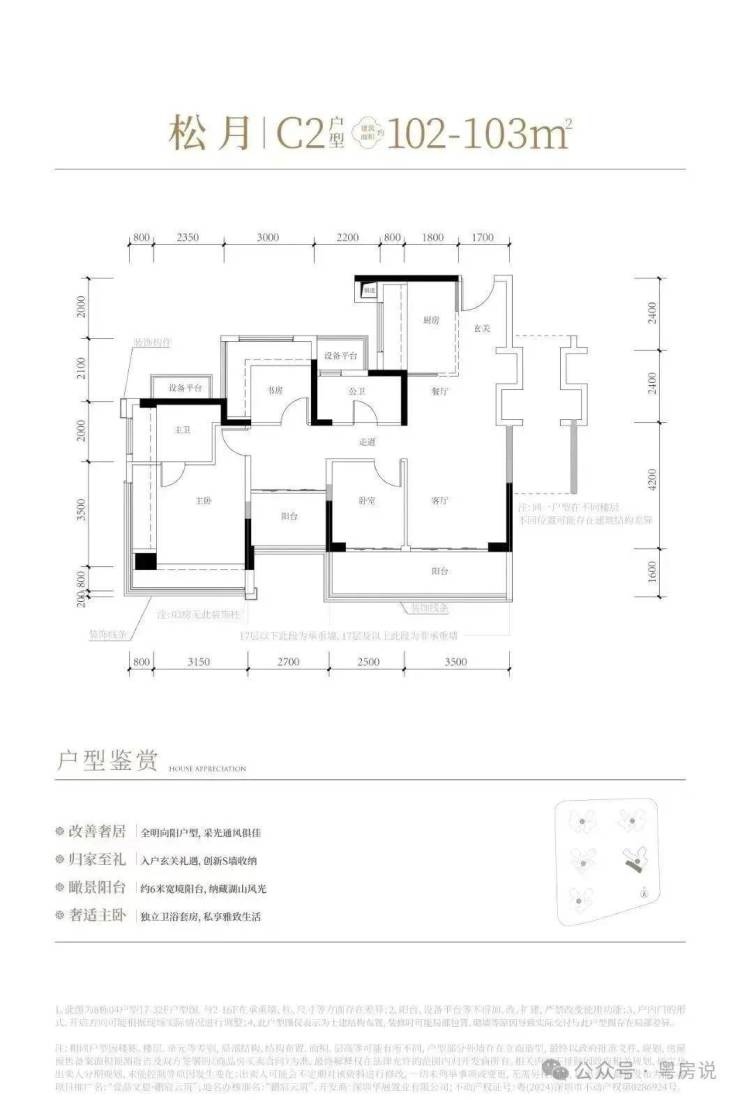
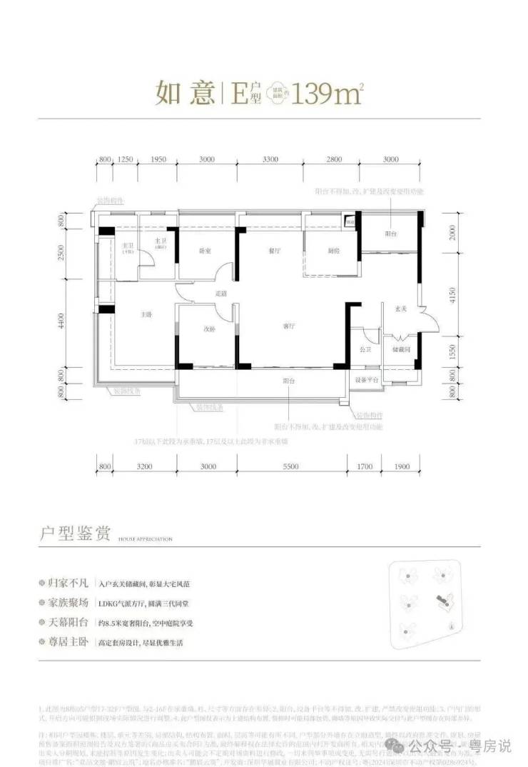
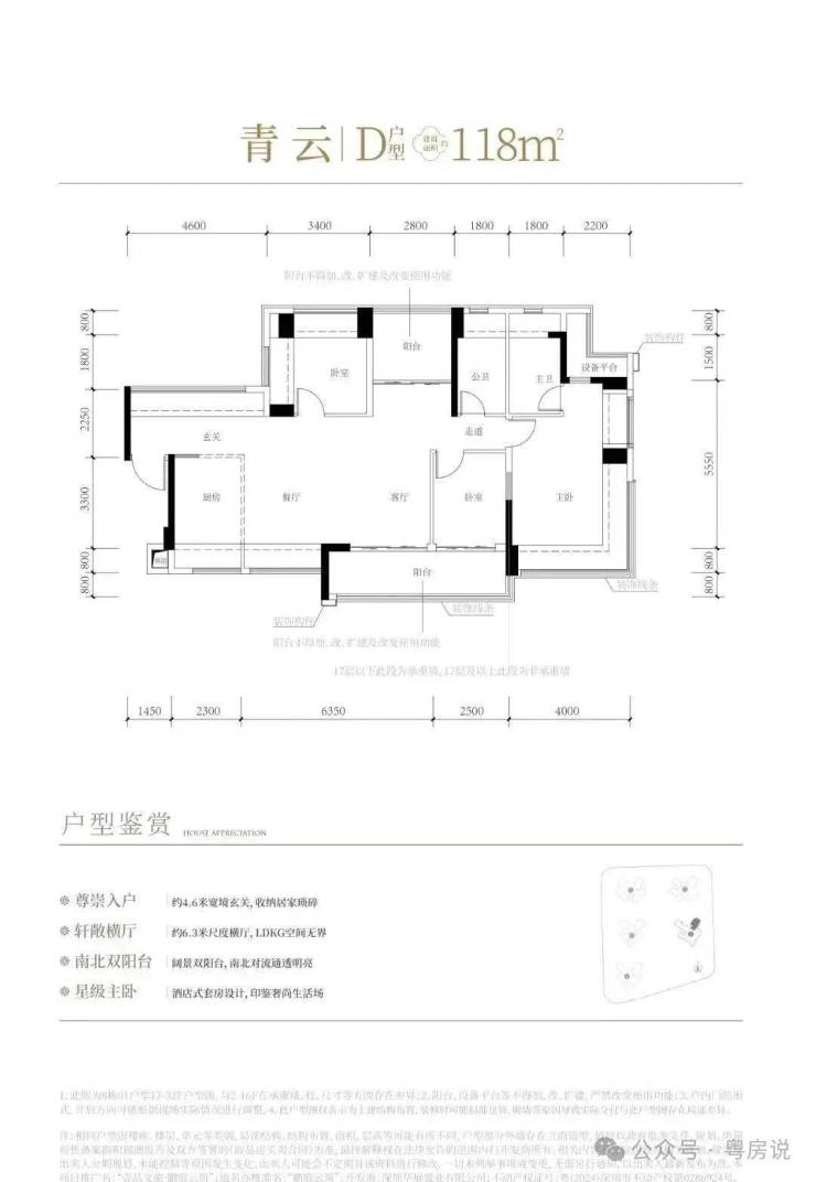
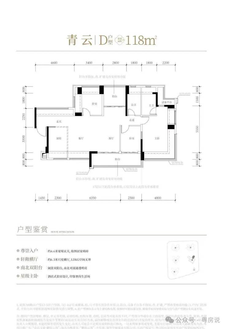
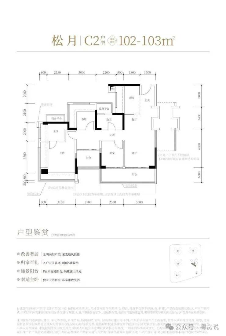
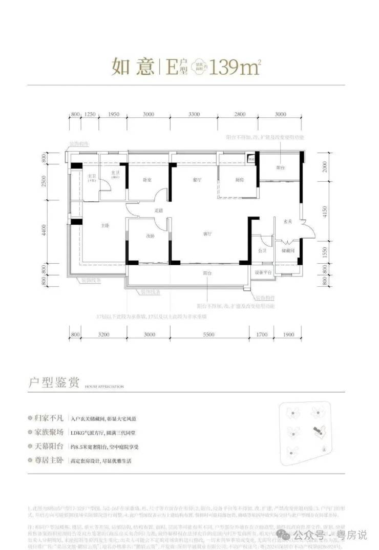
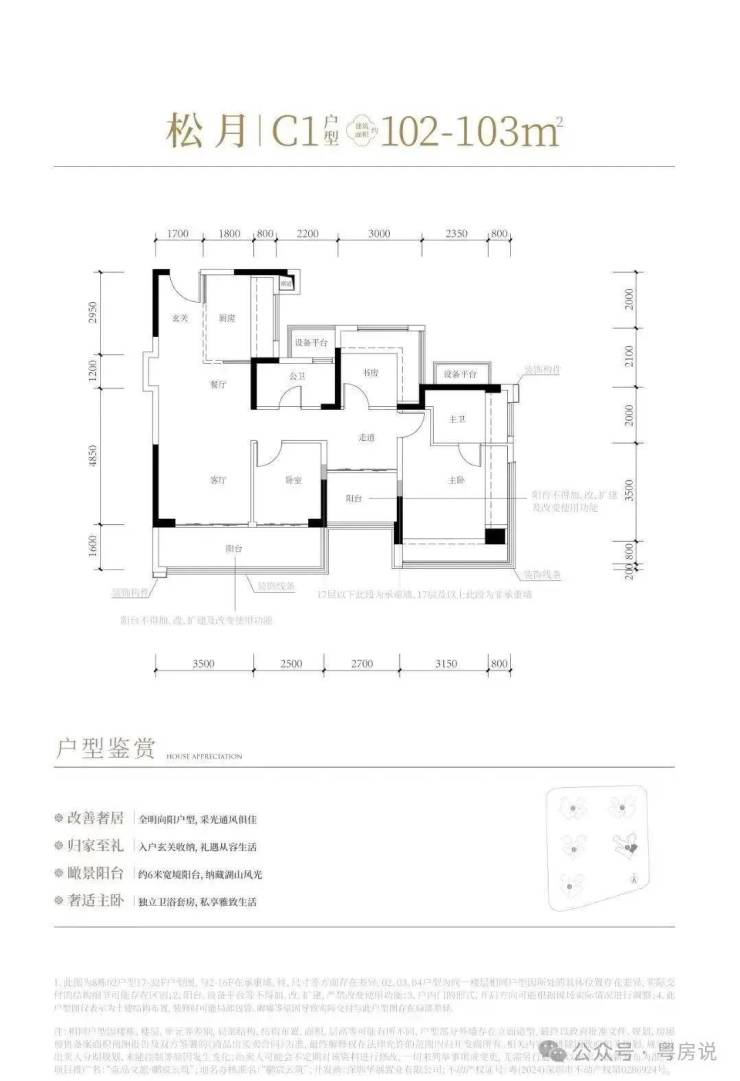
户型图
西区首推户型:
【开 发 商】中建壹品&湖北文旅
【占地面积】约4.33万㎡
【建筑面积】约31万㎡
【容 积 率 】≤5.37
【梯 户 比】西区高层2梯5户,超高层3梯6户(东区3梯6户)
【楼 栋 高】8栋32层,标准层高约3米
【绿 化 覆 盖 率 】40.01%
【车位比】1:1.03
【产权年限】70年2024年批地
【交房时间】待定
【总户数】总户数1992户(东区1016户,西区976户)
首开368套,二开推出154套,三开推出248套,四开推出242套,本次共154套
【停车位】总2155个(东区1059个,西区1096个,东西区停车场不连通)
【本次户型】建筑面积约102-103㎡(91套)118㎡(31套)、139㎡(31套)
【东区推售产品】建面约81㎡-91㎡-107㎡-126㎡
项目缺点:
1.虽在梅林关片区但不是核心位置
2.旁边是华南物流园会有车流噪音影响
3.华南实验书包比较一般
4.距离地铁站也比较远
5.低楼层大部分受前面写字楼遮挡
6.虽有商业配套但距离都较远
7.后面附近地块发展如何不好预测
项目优点:
1.新规楼盘户型使用率高
2.地处梅林关片区比较中心位置
3.国央企开发品质好有保障
4.地铁、商业、学校、医疗,配套相对齐全
5.周边民房比较少,未来发展可能性比较大
6.部分户型高层可看到民治水库的湖景
🔵中建鹏宸云筑售楼处电话☎:400-088-3336售楼处已认证】⚡⚡
◾在售户型图丨项目介绍丨最新房源丨周边配套丨详细解答〢
◾开发商营销中心诚挚邀请,一键预约,尊享内部独家折扣!匠心独运的精品项目,恭候您的品鉴与选择。
🔵中建鹏宸云筑开发商电话☎:400-088-3336【开发商已认证】⚡⚡
🔵中建鹏宸云筑售楼中心电话☎:400-088-3336【售楼中心已认证】⚡⚡
🔵中建鹏宸云筑营销中心电话☎:400-088-3336营销中心已认证】⚡⚡
⚡本项目暂不接受临时到访,看房请提前预约,可尊享内部特惠!
⚡为您安排楼盘内场专业销售人员一对一接待服务,给您更贴心的看房体验!
免责声明:部分图片来源网络,如有侵权请联系后台,我们会第一时间删除。本文资料仅为要约邀请,部分图片为示意性图片,一切图文资料、规划设计仅供参考识别或分享交流之用,不构成合同内容,具体内容均以政府最终批准文件及双方签订的买卖合同为准。
声明:本文由入驻焦点开放平台的作者撰写,除焦点官方账号外,观点仅代表作者本人,不代表焦点立场。
