近期热搜:中心天元售楼处电话→中心天元售楼中心电话-中心天元(售楼处)首页网站→中心天元营销中心欢迎您→24小时热线电话
扫描到手机,新闻随时看
扫一扫,用手机看文章
更加方便分享给朋友
深圳【中心天元】
开发商售楼处电话咨询/预约热线:400-088-3336【售楼中心】24小时热线
深圳【中心天元】售楼处电话:400-088-3336【营销中心】中介勿扰
深圳中心天元楼盘详情介绍,包含售楼处电话、地址、户型图、小区图片、区位优势、交通、周边商业配套等楼盘详细资料;更详细楼盘资料和最新折扣价格,请拨打售楼处电话,销售会为您详细介绍楼盘。
基础资料
🔻开发商:深圳市金地大百汇房地产开发有限公司
🔻投资商:金地集团、卓越集团、大百汇集团公寓
🔻占地面积:223,000㎡
🔻总建面:约140万㎡
🔻产权:公寓50年(13-63年)住宅:70年(13-83年)
🔻公寓套数,272户 T3:136户;T4:136户 T7:52户
🔻面积:266-314-330-383-393-㎡
🔻车位比:1:2
🔻梯户比:1栋3梯1户,2/3/4栋5梯2户,T7栋4梯2户
🔻价格:约10-14万/㎡(含装修),带阳台,通燃气
🔻交楼标准:国际顶级品牌豪装
🔻物业公司:深圳市金地物业管理有限公司
🔻物业管理费:12.8元/㎡
🔻容积率:4.5
🔻绿化:30%
🔻交楼时间:现楼
🔻建筑类型:住宅 公寓
🔻层高:3.6米
🔻总户数:795户
🔻使用率:75-78%
🔻楼层高:1栋21层,T3-4栋40-41层,T7栋34层
🔻栋数:6栋住宅
T3栋266—270㎡,3房2厅
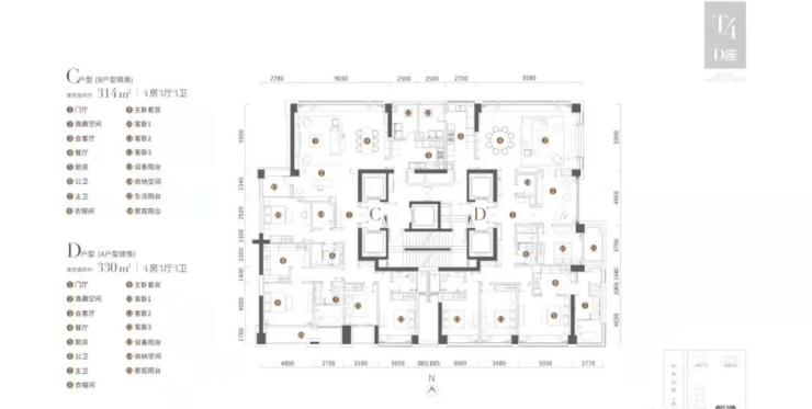
T4栋315—330㎡,4房2厅
T7栋383—393㎡,4房2厅
“深圳中心·天元综合体项目”位于福田CBD核芯区域,占地面积约22.3万㎡,总建筑面积约140万㎡。包括约29万㎡商业——卓越中心(800米中央大街),两座超甲级写字楼——金地中心、大百汇广场,城市豪宅——岗厦天元花园,文天祥学校,文天祥纪念馆,设计艺术中心等部分。

深圳【中心天元】售楼处电话:400-088-3336【营销中心】中介勿扰
深圳【中心·天元】——T3T4公寓新品
T3
栋266—270㎡,3房2厅
T4栋315—330㎡,4房2厅
T7栋383—393㎡,4房2厅
产品均价:14万/㎡
交付标准:精装,通燃气、带阳台
产权年限:50年(2013年-2063年)
物业公司:深圳市金地物业管理有限公司
深圳【中心天元】售楼处电话:400-088-3336【营销中心】中介勿扰
7大中心价值,定义中心掌门资产
双龙起舞城市地标——380m大百汇广场
深南大道封面——金地中心
约29万㎡潮奢商业——卓悦中心,“居住、购物、办公、社交、逛街等一站式高效运转”的都会生活
《预言者》、《云樽》、《燕归巢》等国际大师定制艺术品,文天祥纪念馆传承岗厦文天祥文化与精神
深圳【中心天元】售楼处电话:400-088-3336【营销中心】中介勿扰
九大功能中心:行政·文化·金融·交通·会展·购物·酒店·公园·豪宅
深圳【中心天元】售楼处电话:400-088-3336【营销中心】中介勿扰
深圳【中心天元】售楼处电话:400-088-3336【营销中心】中介勿扰
【中心区位】深圳42年不变的唯一中心
全国“含金量最高”的中央商务区(福田CBD),全球唯一“行政+金融+科技”三核中心
行政中心:深圳“首善之区”,功能最核心、经济最发达、民生最幸福、文化最繁荣、环境最优美
金融中心:福田地均GDP、地均税收,连续14年位居深圳首位
深圳【中心天元】售楼处电话:400-088-3336【营销中心】中介勿扰
科技中心:三大新引擎赋能,打造首善之区高质量发展的“发动机”
新引擎一:河套深港科技创新合作区
香港全力推进“北部都会区”建设,深圳多区积极对接发展政策,河套深港创科园按下融合加速键。150+个高端科创项目加速落地;10+个优质科研项目进驻河套合作区;24个港澳创业团队进驻孵化加速平台,产生知识产权203项。优质项目,5所香港高校9个项目均已落地。
新引擎二:香蜜湖新金融中心
打造国际风投创投街区,到2025年将实现超10家行业前100创投机构,50家QFLP、QDIE试点机构,撬动20个战略性新兴产业和8大未来产业等关键领域。成就服务全国、影响全球的金融高地。
新引擎三:环中心公园活力圈
公园与城市高度融合的发展新模式,打造国际化城市新客厅。
2023深圳时装周福田会场,成为深圳时尚消费中心城区;
特区40周年&建党100周年灯光秀专场、2022年北京冬奥会开幕式分会场,国际大事件发生地。

【中心效率】岗厦北超级枢纽已开通
咫尺超级枢纽,香港-福田高效联动,一日双城
2大综合交通枢纽(福田高铁站、岗厦北交通枢纽)
2大超级口岸(福田口岸、皇岗口岸)
2条城市东西干道(深南大道和滨河大道)+8条地铁线
深圳【中心天元】售楼处电话:400-088-3336【营销中心】中介勿扰
交通配套
【中心效率】双枢纽双口岸 深港头排畅联世界
无缝接驳“五线换乘”岗厦北综合超级枢纽, 2公里内即达全国最大陆路口岸福田口岸及皇岗口岸
由亚洲最大地下高铁站——福田高铁站乘坐高铁,仅需14分钟直达香港西九龙
2大综合交通枢纽(福田高铁站、岗厦北交通枢纽)
2大超级口岸(福田口岸、皇岗口岸)
2条城市东西干道(深南大道和滨河大道)+8条地铁线
深圳【中心天元】售楼处电话:400-088-3336【营销中心】中介勿扰
商业配套
项目自带福田最大的shopping mallOne Avenue卓悦中心商业总体量28.6万㎡,约800米的中央大街+5大商业主题+约350间店铺。
项目周边汇聚了8条地铁线路,4个站点,其中离1&9号线岗厦站约200米,离4&8号线市民中心站约484米。8条地铁线,1号线罗湖-机场、2号线莲塘-赤湾、3号线福保-双龙、4号线福田口岸-牛湖、7号线西丽湖-太安、10号线福田口岸-双拥街、11号线福田-碧头、14号线(施工中,岗厦北-沙田) ;

深圳【中心天元】售楼处电话:400-088-3336【营销中心】中介勿扰
城市空间”完美结合
协同福田枢纽,两大超级枢纽,成就CBD高效生活图鉴
户型鉴赏:1栋C座39-40F
深圳【中心天元】售楼处电话:400-088-3336【营销中心】中介勿扰
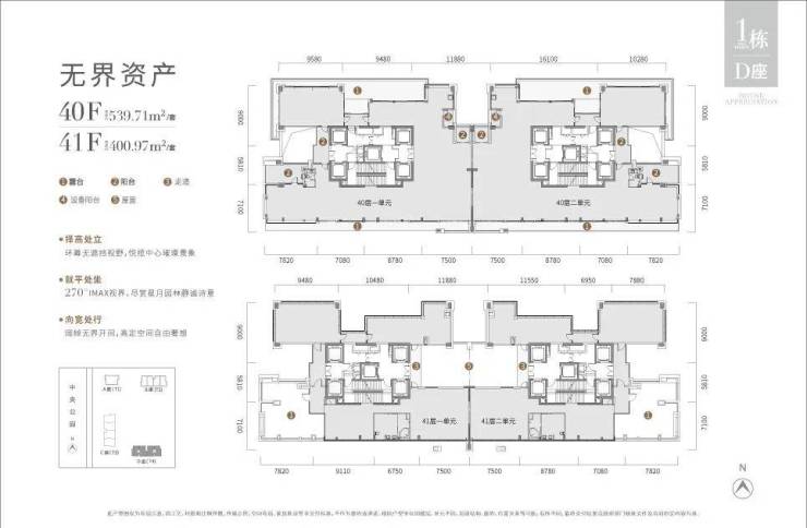
1栋D座40-41F
深圳【中心天元】售楼处电话:400-088-3336【营销中心】中介勿扰
项目户型图:



深圳【中心天元】
开发商售楼处电话咨询/预约热线:400-088-3336【售楼中心】24小时热线
深圳【中心天元】售楼处电话:400-088-3336【营销中心】中介勿扰
深圳中心天元楼盘详情介绍,包含售楼处电话、地址、户型图、小区图片、区位优势、交通、周边商业配套等楼盘详细资料;更详细楼盘资料和最新折扣价格,请拨打售楼处电话,销售会为您详细介绍楼盘。
免责声明:
以上所发布的关于楼盘相关图文信息仅供您买房前参考,以上所有关于本楼盘的图文资料及说明请以最终以项目批文及双方在楼盘营销中心现场签署的买卖最终合同为准;本图文内容如无意中侵犯到某方权益,请联系我们将会及时处理。
声明:本文由入驻焦点开放平台的作者撰写,除焦点官方账号外,观点仅代表作者本人,不代表焦点立场。
