鸿荣源博誉府(售楼处)首页网站-鸿荣源博誉府售楼中心-欢迎您-楼盘详情-最新价格-户型图-容积率@最新售楼处
扫描到手机,新闻随时看
扫一扫,用手机看文章
更加方便分享给朋友
📣鸿荣源博誉府📣📣
幸福城臻园售楼处电话:400-088-3336(营销中心24小时电话)项目最新介绍:房价、价格、折扣、学区、学校、地铁、交通、户型图、备案价、特价房、优缺点、得房率、优惠活动、小区图片、开盘时间、交房时间、周边配套、售楼处位置、最新详情等咨询
📣📣开发商24小时电话☎:400-088-3336【开发商认证】📣📣
📣📣售楼处24小时电话☎:400-088-3336【开发商认证】📣📣
📣📣售楼部24小时电话☎:400-088-3336【开发商认证】📣📣
📣📣☞☞Vip贵宾置业==欢迎来电预约尊享内部折扣===匠心钜制恭迎品鉴☜☜📣📣
◈◈若有中介虚假宣传,请及时与售楼中心核对真假,避免上当!开发商热线400-088-3336【开发商认证】
4000883336
鸿荣源博誉府占地面积3.6万㎡,建筑面积35万㎡,项目规划9栋住宅,2栋办公,1栋幼儿园,在售面积为85-96-103-115-126㎡,共计988套精装交付。
基础信息
发展商:深圳市佰亨置业有限公司
物业:鸿荣源
土地:2020年05月06日至2090年05月05日
占地:36122.45㎡
容 积 率:5.87
总 户 数:1760户
全部楼栋:一、二期(一期4栋总高46层,二期5栋40-44层)
户型:85-87、96-105、115-125、140-143(使用率约76.5%)
电梯配比:3梯4户、3梯6户
绿 化 率:40%
车 位 比:1:1.16
物 业 费:6.55/㎡
交楼时间:一期2024年12月、二期2025年5月
交付标准:精装
开发商实力
标杆品牌:中国城市综合运营服务商,“所到之处,必树标杆”
鸿荣源集团,中国房地产开发百强企业,中国物业服务百强企业;布局多个核心区域,著有胤璞、壹方玖誉、壹成中心等标杆项目;博誉府,持大城品质,再塑龙华标杆。
鸿荣源集团创立于1991年,历经30年稳健发展,现已发展成为以地产全产业链综合开发、商业运营、产业发展三大板块为核心,多元化经营的大型综合性企业集团。多年来,鸿荣源集团坚持投身粤港澳大湾区建设一线,已累计综合开发房地产建筑面积逾千万平方米,打造了前海鸿荣源中心、壹方中心、壹成中心、香蜜湖熙园、公园大地、熙龙湾等多个极具市场影响力的标杆项目。在商业运营领域,鸿荣源壹方商业以壹方城、壹方天地、壹方汇、壹方里四大商业品牌线的强大品牌效应,吸引国内外知名商家进驻合作,运营管理商业建筑面积达120多万平米,致力于成为具有国际竞争力的商业增值服务商。
圳心中轴:北站红山双芯加持,深圳“中轴脊梁”l 深圳龙华——傲踞深圳地理中心和城市发展中轴,铸就产值万亿级的深圳“中轴脊梁l 鸿荣源博誉府坐享中轴优越地理位置,多维立体路网加持,30分钟内驰骋宝安、南山、福田、罗湖区,悦享高效便捷生活
l 北站商务片区——华南最大综合交通枢纽,深圳六大总部基地之一,“国际会客厅”
l 红山商业文化片区——缔造龙华版“市民中心”,集萃市政配套资源
周边配套
交通方面:城央枢纽:四地铁环绕,立体路网,畅达全城
深圳北站高铁枢纽、地铁4/5/6/22号线(规划中)四轨交汇环绕,五横六纵多维立体路网,无界城心繁华
地铁:4、6号线,红山站约1.3公里。1站直达深圳北站。4站到福田。5号线,民治站约1.4公里。22号线(规划中)四轨交汇环绕。
开车:门口龙华大道。福龙路到车公庙14公里约25分钟
城央枢纽:未来五地铁环绕,立体路网,畅达全城
深圳北站高铁枢纽、地铁4/5/6号线已开通,22/27号线规划中,已进入招标阶段,五轨交汇环绕,五横六纵多维立体路网,无界城心繁华
商圈方面:超核商业——集萃万千繁华
百万商圈畅享繁华——红山6979、绿景1866佐阾荟、天虹(九方)、华南第一家Costco [预计今年第四季度开业]、壹方天地、龙华壹方城等
教育方面:毗邻九年一贯制“龙华区教科院附属实验学校”,项目规划有12班优教幼儿园
医疗方面:项目临近三大三甲医院。深圳市第二儿童医院(在建中),位于民治大道与民康路交汇处东北侧,建成后将是深圳最大的儿童医院;深圳市新华医院(在建中),位于深圳新区大道与民宝路交汇处,是龙华区首个“医疗综合体”,定位为“新型智慧型医院”;广州医科大学附属医院,位于福龙路和简上路交汇处东北侧,规划建成一家三甲综合医院。
文娱休闲:旗舰配套:汇聚红山人文四馆,北站公园绿谷,优质全龄教育配套
人文生态全优生活——市民中心级人文四馆(第二图书馆 [预计国庆开馆]、市美术馆 [预计国庆开馆]、演艺馆、展览馆)、简上体育综合体、北站公园绿谷环绕
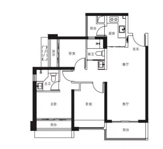
【85-87㎡户型3房1卫】小面积百变空间,精致实用 西南/东南朝向,景观采光俱佳 单价区间:7.11-7.61万/㎡ 总价区间:608-656万

【96-97㎡3房2卫户型】三开间西南朝向,视野采光俱佳功能实用三房,动静分区无干扰,单价区间:7.17-7.64万/㎡ 总价区间:688-738万

【104㎡3房2卫户型】双龙抱珠户型,奢阔舒适三房全明户型,三面采光,看中心园林景观 单价区间:7.56-7.87万/㎡ 总价区间:788-825万
【103-105㎡3房2卫户型】舒适横厅设计,通风采光俱佳 ,超宽景观面,享中心园林景观 单价区间:7.08-7.70万/㎡ 总价区间:743-796万
【3栋4栋03户型107㎡3房2卫】 客厅横厅朝南带阳台,主卧朝南,2房朝北 单价区间:7.2-7.5万 总价区间:770-805万
【115-118㎡4房2卫户型】 双龙抱珠设计,主要生活空间 ,看中心园林景观舒适四房,三面采光,全明户型 单价区间:7.57-7.82万/㎡ 总价区间:878-920万
【3栋4栋06户型118㎡4房2卫】 客厅朝西带阳台,2房朝西,1房朝南,1房朝北 单价区间:7.5-7.7万 总价区间:885万-910万
【3栋4栋05户型119㎡4房2卫】 客厅朝西带阳台,3房朝西,1房朝东单价区间:7.57-7.8万 总价区间:900-930万

【123㎡4房2卫户型】宽阔四房、南北通透户型,通风采光俱佳 ,社区中心占位,看中心泳池、园林美景 单价区间:7.95-8.17万/㎡ 总价区间:981-1008万

【124㎡4房2卫户型】东南朝向,横厅设计,超宽采光面,看学校、园林双核心景观 ,宽阔舒适四房,通风采光俱佳 单价区间:7.89-8.11万/㎡ 总价区间:975-1002万
【126㎡4房2卫户型】 西南朝向,横厅设计,纵享舒适百变空间 ,超宽客餐厅景观面,看中心泳池、艺术园林 单价区间:7.80-8.02万/㎡ 总价区间:980-1007万
【1栋2栋03户型140㎡4房2卫】正南朝向,奢享宽敞四房,双龙抱珠户型,三开间南向,享中心园林景观 单价区间:7.8-8.2万 总价区间:1090-1150万
【1栋2栋05户型143㎡4房2卫】宽敞横厅设计,正南朝向,通风采光俱佳
户型方正舒适,布局合理,享中心园林美景 单价区间:7.6万-7.9万 总价区间:1086万-1130万
【1栋2栋01户型94㎡3房2卫】 客厅朝东带阳台,主卧朝东,2房朝北
单价区间:6.7-7.1万 总价区间:641-675万
【3栋4栋01/02户型96㎡3房2卫】 客厅朝南带阳台,2房朝南,1房朝西/东 单价区间:7.2-7.5万 总价区间:695-720万
实景图
艺术景观园林:三重归家礼序,六大园林景观空间,尊享品质归家动线
📣鸿荣源博誉府📣📣
幸福城臻园售楼处电话:400-088-3336(营销中心24小时电话)项目最新介绍:房价、价格、折扣、学区、学校、地铁、交通、户型图、备案价、特价房、优缺点、得房率、优惠活动、小区图片、开盘时间、交房时间、周边配套、售楼处位置、最新详情等咨询
📣📣开发商24小时电话☎:400-088-3336【开发商认证】📣📣
📣📣售楼处24小时电话☎:400-088-3336【开发商认证】📣📣
📣📣售楼部24小时电话☎:400-088-3336【开发商认证】📣📣
📣📣☞☞Vip贵宾置业==欢迎来电预约尊享内部折扣===匠心钜制恭迎品鉴☜☜📣📣
◈◈若有中介虚假宣传,请及时与售楼中心核对真假,避免上当!开发商热线400-088-3336【开发商认证】
免责声明:本文所有文章、图片、音频视频文件等资料版权归版权所有人所有,因非原创文章及图片等内容无法一一和版权者联系,如原作者或编辑认为作品不宜上网供大家浏览,请及时来电告之,我们将立即予以修改或删除。本文如无意中侵犯了某方的知识产权,告之即删。
声明:本文由入驻焦点开放平台的作者撰写,除焦点官方账号外,观点仅代表作者本人,不代表焦点立场。
