中海云启源境售楼处电话(营销中心)中海云启源境_中海云启源境楼盘详情
扫描到手机,新闻随时看
扫一扫,用手机看文章
更加方便分享给朋友
深圳中海云启源境售楼处电话; 深圳中海云启源境售楼处位置; 售楼处地址; 电话!
◆◆深圳『中海云启源境』售楼处电话:400-088-3336
◆◆来电预约登记——〢尊享Vip一对一专业置业顾问讲解◆◆
◆◆来电咨询最新售楼处地址,请提前联系售楼处销售进行预约登记!◆◆
◆◆预约优惠—〢售楼中心置业顾问为您买房保驾护航〢—匠心钜制恭迎品鉴◆◆
2️⃣ 开发商底牌:
中海地产
(央企)操刀,深圳标杆项目包括深圳湾壹号、中海天钻,交付品质稳定超预期。
避坑指南
:央企债务稳健,烂尾风险≈0,但需警惕“保障房混居”社区氛围。
3️⃣ 品质真功夫:
外立面用三层中空夹胶LOW-E玻璃+铝板,对标深圳湾香格里拉酒店;
园林复刻南洋度假风,6大会客厅+星光跑道,刚改盘玩出豪宅范儿;
施工方
:中海自建团队,YKK AP系统窗+隔音降噪设计,实测噪音≤35分贝(低楼层除外)。
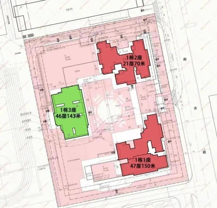
4️⃣ 户型逆天操作:
新规赠送开挂
!105㎡≈旧规134㎡,143㎡吊打183㎡,飘窗、双阳台全送面积;
硬伤预警
:90㎡东北朝向采光受限,143㎡总价千万级,刚需够不着,土豪看不上。
深圳中海云启源境售楼处电话; 深圳中海云启源境售楼处位置; 售楼处地址; 电话!
◆◆深圳『中海云启源境』售楼处电话:400-088-3336
◆◆来电预约登记——〢尊享Vip一对一专业置业顾问讲解◆◆
◆◆来电咨询最新售楼处地址,请提前联系售楼处销售进行预约登记!◆◆
◆◆预约优惠—〢售楼中心置业顾问为您买房保驾护航〢—匠心钜制恭迎品鉴◆◆
免 责 声 明:
1、因编辑需要,文字和图片之间亦无必然联系,仅供读者参考
2、本平台致力分享有价值的内容,转载引用仅为传播更多信息之目的,所转载的所有文章、图片、音频、视频文件等资料版权归版权所有人所有,因非原创文章及图片等内容无法逐一和版权者联系,亦无法核实真实出处,如涉及侵权请联系后台让我们删除。
3、本平台所载的信息截止于本文推送时的情况,前述信息可能因政府规划调整及开发商无法控制、预测原因而出现变化,以政府部门最新公布的规划文件及相关信息为准。
声明:本文由入驻焦点开放平台的作者撰写,除焦点官方账号外,观点仅代表作者本人,不代表焦点立场。
