热搜焦点:深圳金光华溪山君樾售楼处电话→溪山君樾首页热搜24小时电话→最新房价→楼盘百科详情→营销中心最新发布@售楼处
扫描到手机,新闻随时看
扫一扫,用手机看文章
更加方便分享给朋友
✅ 金光华溪山君樾✅
✅金光华溪山君樾售楼处电话☎✅:400-088-3336 ✅
✅ 金光华溪山君樾营销中心电话☎✅:400-088-3336✅
✅金光华溪山君樾发商售楼处咨询/官方看房电话☎ 400-088-3336中介勿扰
温馨提示:看房请务必电话提前预约,避免临时无人接待,感谢您的配合!
开发商承诺:一对一专属开发商销售服务,尊享开发商内部优惠服务!
4000883336
开发商:金光华集团
总占地:11.85万㎡
总建面:30.5万㎡
产权:70年(07-77年)
套数:总户数1500户 可售481户
面积:120-195㎡4-5房
车位比:1700多个,1:1.15
梯户比:2梯2户,2梯3户
价格:7-8.6万
物业公司:金光华物业
物业管理费:4.5元/㎡
容积率:2.06
绿化:60%
交楼时间:140㎡毛坯现楼(备案3个月内交)120/173/195㎡精装24年6月
建筑类型:住宅
层高:3米
使用率:100%
楼层高:6/7栋31层,8栋29层,9栋A28层,9栋B24层
栋数:14栋高层+15栋别墅
水电:民水民电
学校:丹堤实验学校


【大师定制·5万平精筑园林】
溪山行旅,城央如入画境,以一溪一山五道打造深圳唯一“画境”园林。
一溪:1000米溪岸,沿着台地蜿蜒,活水点染此间大美;
一山:保留了一处高度约25米的自然山丘,通过登山步道、林地塑造、休闲场所设置来打造一处私家观景平台,圳央隐奢高阔山居;
五道:溪山道、涵山道、涟山道、溯溪道、藏溪道,五重拾溪道,久居不厌的时光道。

【执守双CBD·于中心自成一派】
深圳“正”中心,产业规划核心区位:
位于北站CBD,福田CBD内,是深圳政治、经济、文化、商业、人文的核心版图与城市客厅双利好区域,于深圳稀缺的土地中,“抢占出”仅有的一片低密墅区。

商业配套
项目自带商业配套,北侧就是星河WORLD·COCO Park,星河WORLD·COCO Park集办公楼、商业、住宅为一体的综合体,周边还有上河坊购物乐园、星河COCO City(民治店)丨上河坊购物乐园丨Coco City丨红山商圈丨福田CBD商圈
教育配套
项目自带一所幼儿园,周边有华南师范附属中小学,九年一贯制丹堤实验学校。
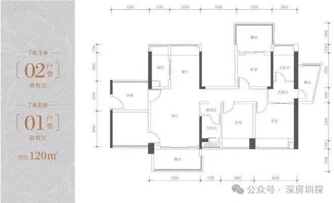
户型图
户型鉴赏
点击输入图片描述(最多30字)
点击输入图片描述(最多30字)
点击输入图片描述(最多30字)
点击输入图片描述(最多30字)
点击输入图片描述(最多30字)
✅ 金光华溪山君樾✅
✅金光华溪山君樾售楼处电话☎✅:400-088-3336 ✅
✅ 金光华溪山君樾营销中心电话☎✅:400-088-3336✅
✅金光华溪山君樾发商售楼处咨询/官方看房电话☎ 400-088-3336中介勿扰
温馨提示:看房请务必电话提前预约,避免临时无人接待,感谢您的配合!
开发商承诺:一对一专属开发商销售服务,尊享开发商内部优惠服务!
免责声明:以上观点及数据仅供参考,不作为销售依据。面积为建筑面积约数,具体以双方签订合同为准。部分图片来源于网络,版权归原作者所有。如有侵权,请联系后台删除。
声明:本文由入驻焦点开放平台的作者撰写,除焦点官方账号外,观点仅代表作者本人,不代表焦点立场。
