前海时代三期尊府售楼处(售楼中心)24小时电话 前海时代三期尊府楼盘最新详情_户型_价格
扫描到手机,新闻随时看
扫一扫,用手机看文章
更加方便分享给朋友
深圳【前海时代三期尊府】
前海时代三期尊府售楼处电话:400-088-3336(营销中心)
如有问题欢迎来电咨询,来电即可享受买房优惠!
预约来电尊享内部优惠,可预约案场内部销售人员,专业一对一热情服务。
4000883336

前海时代三期位于前海桂湾片区南侧,临近滨海大道和桂湾河,在整个前海自贸区内算是住宅的C位,正南是水廊道公园,东南望南山,西南看城市海景。
01.基础信息

前海时代三期尊府
前海时代三期53-3栋
套数:172套
户型:约89平3房2卫、约190平4房3卫
容积率:5.48
车位:5-2地块589个
楼层高度:43F
梯户比:3T5
商业:万象前海、壹方汇、前海山姆
交通:1号线桂湾站、5号线桂湾站
教育:港湾小学、南山实验港湾学校、南二外桂湾创新学校
医疗:泰康国际、南方医科大
文娱:桂湾公园、前海石公园、前海演艺公园
备案价:

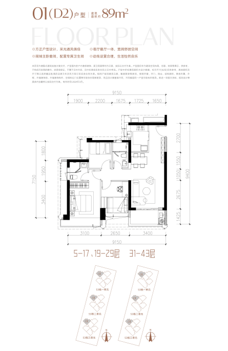
02.户型介绍

前海时代三期尊府
前海时代三期项目由多个地块组成差异化产品体系:
7-2地块(尊府1)包含55-60栋,采用2T2及3T2梯户比设计,推出608套192-292㎡大平层;
5-1地块为52-2栋4T8筒子楼结构,待售256套88㎡两房至300㎡大户型;
5-2地块(尊府2)由53栋三个单元组成,配置3T5梯户比,提供516套89-190㎡三至四房。
此次加推的53-3栋是尊府2的景观楼王,西南向享河景资源,其89㎡户型作为前海最后一批小户型产品,保持着区域最低置业门槛,但需注意东南向楼间距较窄的问题。


约89㎡3房2卫,竖厅布置,客餐厅一体、动静分区,比较实用,约89㎡做到少见的3房2卫,在前海这类改善片区的有一定稀缺性





约190㎡户型,南北通,户户带270°采光阳台,双套房+独立入户玄关、宽景大阳台

03.实景情况

前海时代三期尊府
效果图:
04.项目对比

前海时代三期尊府
1.和前海时代三期同一开发商的有:
前海时代2期CEO公馆、深铁懿府、深铁珑境花园、深铁瑞城
2.新房对比
和前海时代三期成为竞品的新房有:
临海揽山、中信城开东角头、中海深超总、半岛城邦5期
3.二手房对比(下面二手项目包含最新成交价和租金情况)
和前海时代三期成为竞品的二手房有:
【前海时代2期CEO公馆】
卖房成交价:
157平4房约1868万元。(2025年6月)
221平4房约2290万元,(2025年6月)
租房:
145平4房约15000-16000元,
186平4房约22000-28000元,
温馨提示:以上的新房、二手房项目【豌豆找房】均有房源,感兴趣的朋友可以私信豌豆,看房认准豌豆找房。
05.优劣势分析

前海时代三期尊府

06.项目配套

前海时代三期尊府
【交通配套】
桂湾片区坐拥前海湾综合交通枢纽(建设中),该枢纽作为深圳西部最大地下交通枢纽已实现主体结构封顶,预计两年内建成投用。轨道交通方面,项目周边形成"双地铁+城际"网络:
- 地铁1号线鲤鱼门站(步行约720米)
- 地铁5/9号线前湾站(步行约900米)
- 穗深城际铁路前海站(在建)
- 规划中的深港西部快线及深珠城际
路网方面,项目通过月亮湾大道、滨海隧道(一期在建)、梦海大道等主干道,实现与深圳各核心区域的快速连通。


【商业配套】
项目自身配备8万㎡商业综合体,已确定由华润万象生活运营,将作为"万象前海二期"高标准打造。周边已形成成熟商业集群:
- 已开业:万象前海(一期)、卓悦INTOWN、山姆会员店(前海旗舰店)
- 即将开业:前海壹方汇、前海K11
- 规划中:前海湾枢纽约19万㎡大型商业体
【教育配套】
当前学区划分:
- 南山实验教育集团前海港湾学校(九年一贯制)
在建教育资源:
- 2公里范围内新建九年制学校(筹办中)
国际教育资源:
- 荟同学校、哈罗公学等4所国际学校
片区规划:
- 3所九年制学校、1所小学、7所幼儿园及1所国际学校
【休闲医疗】
公园体系:
- 已建成:桂湾公园、前海演艺公园(华侨城运营)
- 在建/规划:双界河公园、月亮湾水廊道
医疗资源:
- 周边3公里范围内分布有前海泰康国际医院(三甲)等医疗机构

深圳【前海时代三期尊府】
前海时代三期尊府售楼处电话:400-088-3336(营销中心)
如有问题欢迎来电咨询,来电即可享受买房优惠!
预约来电尊享内部优惠,可预约案场内部销售人员,专业一对一热情服务。
免责声明:
1、以上部分图片素材源自网络,如有侵权,请联系我们删除;
2、本广告相关文字、图片以及建筑设计效果图是对项目所做的示意表现,仅供参考,最终标准详见政府相关部门批准文件,经政府批准的详细规划以销售现场公示为准,敬请查看;
3、本广告为要约邀请,买卖双方的权利以及义务以双方签订的合同为准。相关内容如有更新,请以最新资料内容为准。
声明:本文由入驻焦点开放平台的作者撰写,除焦点官方账号外,观点仅代表作者本人,不代表焦点立场。
