满京华·金硕华府(满京华·金硕华府售楼处)首页网站-2025满京华·金硕华府房价_楼盘评测丨地址丨详情丨售楼处电话
扫描到手机,新闻随时看
扫一扫,用手机看文章
更加方便分享给朋友
❄满京华金硕华府❄
❄开发商电话:400-088-3336【☎已认证】❄
❄售楼处电话:400-088-3336【☎已认证】❄
❄开发商电话:400-088-3336【☎已认证】❄
Vip贵宾置业==欢迎来电预约尊享内部折扣===匠心钜制恭迎品鉴
开发商售楼处热线:400-088-3336

满京华金硕华府
满京华金硕华府位于光明中心光辉大道与狮山三街交汇,距离6号线光明站直线距离约850米作(百度地图测距)
项目西侧和北侧是满京华旧改的后续几期,分别为满京华金硕和府、满京华金硕瑞府、满京华金硕臻府,西侧和南侧规划为两宗教育用地,将建36班九年一贯制学校和36班中学(具体以最终规划公示为准)。
交房时间,开发商是哪家?交房时间多久,风水怎么样,是公寓还是住宅,多少钱一平方,项目怎样,能买吗?最新房价楼盘详细,加推热销,产权多少年,最新动态,地址,价格,户型图,规划,备案价,位置,配套,多少钱,规划怎么样,最新消息,周边配开云府套,最新进展,想了解更多请拨打售楼处电话,销售会为您详细介绍楼盘,欢迎来电售楼处网上营销中心。
满京华金硕,前身为光明狮山利益统筹项目,由满京华集团全盘操刀,涵盖有10块用地,总占地面积约10.9万㎡,总建筑面积约32.38万㎡,其中住宅用地有7块,返还用地1块,公共绿化用地2块,住宅用地有:满京华金硕和府,满京华金硕瑞府,满京华金硕臻府,满京华金硕华府,满京华金硕悦府,满京华金硕嘉府。
金硕华府,由满京华集团开发,位于光明区光明中心区光辉大道与狮山三街交汇处,项目所在区域是光明规划最宜居,居住小区板块最大的片区,北侧靠近科学公园,东侧及南侧是深圳小学光明学校狮山校区及初中校区,距离最近的6号地铁线“光明站”约800米。
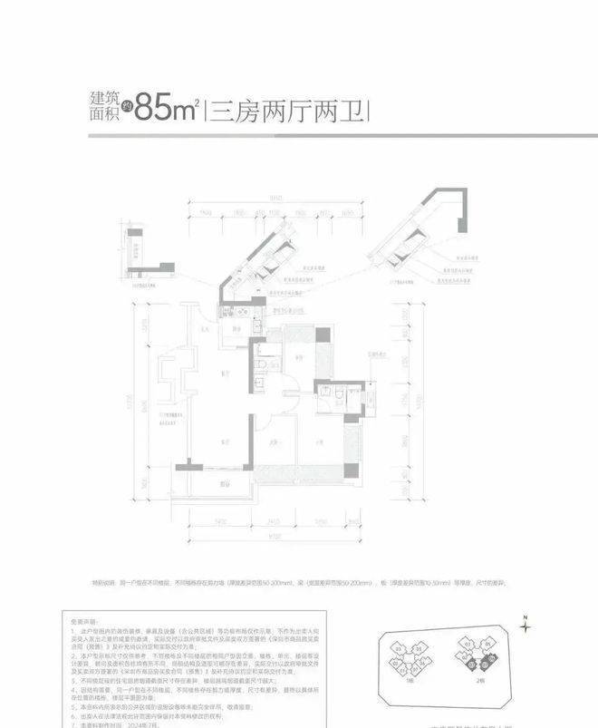
最新消息:光明中心区首现95%使用率新盘---满京华金硕和府,建筑新规落地后,现在不止于卷价格,更在卷户型了,85㎡就可以做到三房两卫!计划在8月份取证入市!将推出1栋/2栋,共458套房源,面积有85-88㎡的3房2厅2卫,售楼处电话:400-859-7606110-113-114-119㎡的4房2厅2卫户型
项目户型介绍
85㎡的3房2厅2卫,设计的经典竖厅格局,客厅3.4米开间,LDKB一体化设计,S墙设计预留冰箱卡槽位,3个卧室分别做到了3.55米/2.6米/2.4米的宽度,U型厨房,公卫三段式分离设计,得房率约:95%(包含赠送),阳台进深1.8米,有西南或东南朝向。
88㎡的3房2厅2卫,设计的经典竖厅格局,客厅3.4米开间,LDKB一体化设计,S墙设计预留冰箱卡槽位,3个卧室分别做到了3.55米/2.6米/2.4米的宽度,U型厨房,公卫三段式分离设计,得房率约:95%(包含赠送),阳台进深1.8米,有西南或东南朝向。
110㎡的4房2厅2卫,设计的是经典竖厅格局,客厅3.8米开间,进门独立玄关,LDKB一体化设计,S墙设计预留冰箱卡槽位,4个卧室分别做到了3.8米/3.2米/2.55米/2.44米的宽度,U型厨房,公卫三段式分离设计,得房率约:95%(包含赠送),客厅连接次卧出6.2米的大阳台,朝西南向。
114㎡的4房2厅2卫,设计的是经典竖厅格局,客厅3.8米开间,进门独立玄关,LDKB一体化设计,S墙设计预留冰箱卡槽位,4个卧室分别做到了3.8米/3.2米/2.55米/2.44米的宽度,U型厨房,公卫三段式分离设计,得房率约:95%(包含赠送),客厅连接次卧出6.2米的大阳台,朝东南向。
113㎡的4房2厅2卫,设计的竖厅南北通透格局,客厅4米开间,进门独立玄关,4个卧室分别做到了4米/2.8米/2.7米/2.6米的宽度,U型厨房,公卫三段式分离设计,得房率约:95%(包含赠送),阳台主朝西北或东北向,看科学公园景观。
周边配套
1、轨道交通
满京华金硕华府临近地铁6号线光明站,经光明站可搭乘支线前往科学城板块;此外6号线南延线目前在建,建成后经2站可达光明城,可换成在建地铁13号线和光明城的高铁;经地铁6号线到凤凰城站,未来也可换乘地铁13号线(在建)。
未来通往市区的便捷度较高。
2、商业
满京华金硕华府自身规划约6416㎡商业,整个狮山项目自带超3万㎡创意街区,临近多个小区也配建有底层商业。
大型的商业配套还可前往光明大街-凤凰城一带,集中了包括绿地集中商业4.3万㎡(待建)、星河cococity6.3万㎡(在建)、龙光蓝鲸世界约10万㎡商业、万达广场约4.8万㎡。
*蓝鲸世界,来源于网络
*万达商业效果图
3、教育
整个项目配建有3所幼儿园,其中一期的金硕华府配建为12班幼儿园;
项目东侧在建一所小学(狮山小学),周边还有东周小学、光明小学、华师大附属光明星河小学、修远小学、深圳小学光明曙光学校等;
项目南侧规划一所初中,区域内还有光明中学、华夏中学等;
九年一贯制学校,在区域内有中山大学深圳附属学校、光明区荔园学校(在建)、深圳市教育科学研究院实验学校、深圳实验光明学校、中科院深理工附属实验高级中学等。(具体入学以当年区教育局公示为准)
4、休闲生态景观
项目周边最大的市政休闲配套莫过于科学公园,这座地标性的公园约2.08平方公里,预计2023年开园。科学公园旨在打造成世界一流的科学性综合公园,是集生态、科普、健康、娱乐、运动、休闲、游览等功能为一体的大型综合性城市公园。
同时,科学公园内目前还有三馆一岛在建,分别是科技馆、西方美术馆、艺术中心、科学岛售楼处电话:400-859-7606,建成后对片区环境的提升有着重大意义。
*科学公园整体效果图
*科学公园整体效果图
❄满京华金硕华府❄
❄开发商电话:400-088-3336【☎已认证】❄
❄售楼处电话:400-088-3336【☎已认证】❄
❄开发商电话:400-088-3336【☎已认证】❄
Vip贵宾置业==欢迎来电预约尊享内部折扣===匠心钜制恭迎品鉴
开发商售楼处热线:400-088-3336
免责声明:部分图片来源网络,如有侵权请联系后台,我们会第一时间删除。本文资料仅为要约邀请,部分图片为示意性图片,一切图文资料、规划设计仅供参考识别或分享交流之用,不构成合同内容,具体内容均以政府最终批准文件及双方签订的买卖合同为准。
声明:本文由入驻焦点开放平台的作者撰写,除焦点官方账号外,观点仅代表作者本人,不代表焦点立场。
