丹华公馆售楼处电话(售楼中心地址)营销中心首页网站→24小时热线电话
扫描到手机,新闻随时看
扫一扫,用手机看文章
更加方便分享给朋友
深圳南山区【丹华公馆】
丹华公馆售楼处电话:400-088-3336『售楼中心』
网上售楼中心〢安全通话隐藏真实号码〢欢迎来电咨询〢
开发商售楼处直销_欢迎来电预约尊享内部折扣_匠心钜制恭迎品鉴〢
◆提前来-预约登记尊享售楼处1v1销售专业讲解〢一对一热情服务〢
◆温馨提示:售楼中心〢预约可享内部优惠〢匠心钜制-恭迎品鉴〢
区域价值
大沙河创新走廊 价值高地
大沙河创新走廊核心位置,西丽高铁新城/留仙洞战略性新兴产业总部基地/西丽湖国际教科城三大未来引擎助力未来发展
西丽高铁新城 湾区枢纽门户
西丽高铁新城规模超北站,辐射全国,未来超2000万客流,湾区综合枢纽坐享价值腾飞
南山科创下一个十年
深圳六大总部基地之一,大疆创新、乐普医疗等优秀总部聚集,60万+高端就业/10万+素质人才聚居
交通配套
1小时湾区生活圈 通勤无忧
紧邻西丽高铁站,4高铁+2城际1小时捷达湾区生活圈,6地铁(5号/7号/13号(在建)/15号(在建)/27号(规划)/29号(规划))通达全城

教育配套
优质教育环伺 坐享全龄教育
出家门进校门,目送式教育,自带18班幼儿园,深中南山创新学校等优质学校聚集,书香环伺
文体配套
西丽湖国际科教城,智集清华、北大等18所顶尖高校,深圳智脑造就书香起点
项目优势:
1.地理位置好,位于南山西丽板块,整个板块全是写字楼,加万科云城公寓,整体的城市界面次新,路段干净整洁,没有城中村,加上背靠公园,适合一些年轻人自住。
2.总价低,上车轻松,虽说小户型,但功能性应有尽有。
3.同等总价,横向对比沙井,光明,龙岗的三房,可以获得更好的地段,顺带吃一下留仙洞这块饼,也还行。
4.项目距西丽综合枢纽站约2KM,未来距离15号线最近,大概400m,周边还有几条地铁,步行距离较远,很适合南山搬砖的刚需们。
项目劣势:
1.超大盘,容积率高,梯户比4梯12户/4梯7户,类似酒店公寓式的走廊过道。
2.车位比不足1:1。
3.目前距离5号线地铁口较远,等15号线开通还有较长的时间。
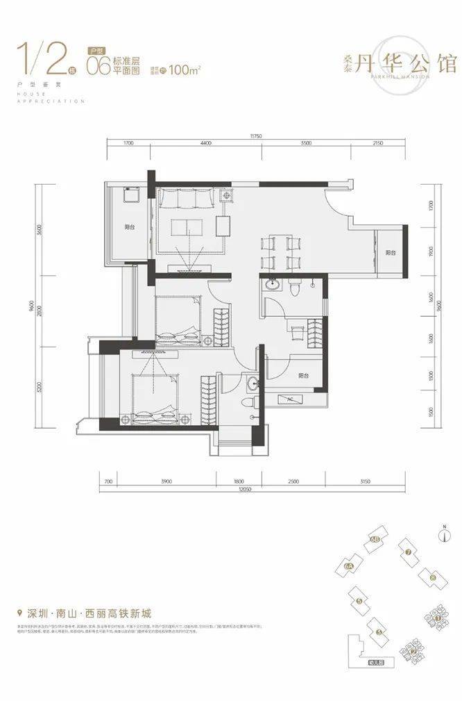
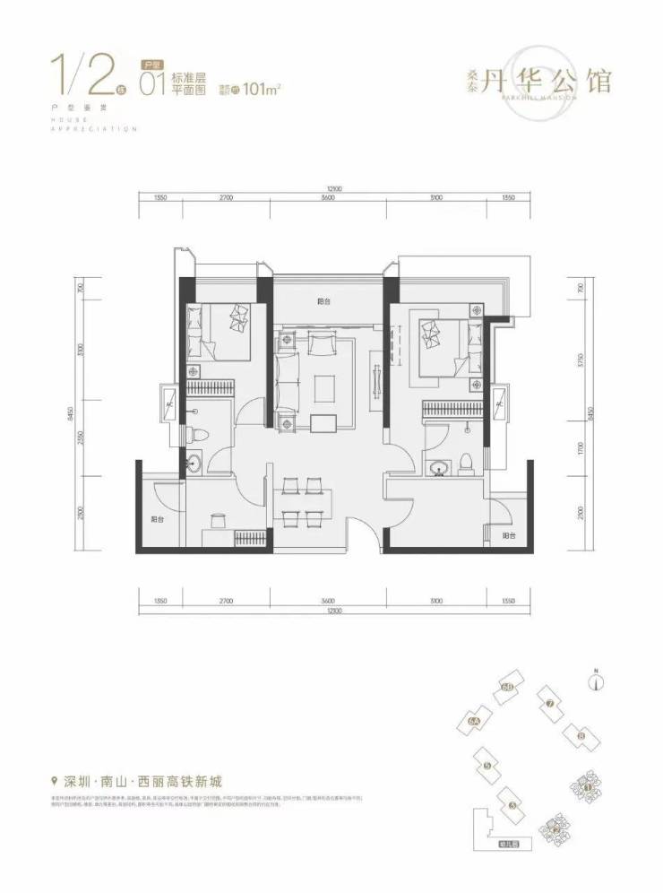
户型鉴赏
约58-101㎡户型;
户型解读
户型主要考虑房间数量,空间和布局合理性等因素(优先考虑面向刚需的小3房户型)。丹华公馆有101平的标准3房,但价格不属于刚需了。所以这里按58平的看,58平做成3室或4室,真是挺让人开眼的。官方说层高3.9米,去掉一些楼层中间的高度,估计有效层高还得少一些,可能只有3.7米多,做成复式,还是比较让人难以接受的。一般正常的复式要达到5米。那3.7米给下面2米2的话,上面最多1米5。很难称为一个房间,说是上铺可能更合适。
4梯12户,36层,房子小楼道里多个门口可能会放鞋柜或婴儿车。高峰期做电梯估计要等不少时间。
深圳南山区【丹华公馆】
丹华公馆售楼处电话:400-088-3336『售楼中心』
网上售楼中心〢安全通话隐藏真实号码〢欢迎来电咨询〢
开发商售楼处直销_欢迎来电预约尊享内部折扣_匠心钜制恭迎品鉴〢
◆提前来-预约登记尊享售楼处1v1销售专业讲解〢一对一热情服务〢
◆温馨提示:售楼中心〢预约可享内部优惠〢匠心钜制-恭迎品鉴〢
温馨提示:本宣传资料为邀约邀请,针对本项目概况进行介绍,仅供参考不作为销售承诺。项目不排除因政府相关规划、规定及开发商未能控制的原因而发生变化,最终以双方签署的正式《商品房预售/销售合同》及其他相关协议文本为准。关于该房屋所在小区所属片区商业、学校等相关配套,其建设进度、规划方案等事项均由政府相关主管部门主导,资料中所示距离为地图直线距离及高德地图导航数据,最终以政府相关主管部门出具的书面文件为准。部分图片来源于网络,如有侵权,请联系删除。
声明:本文由入驻焦点开放平台的作者撰写,除焦点官方账号外,观点仅代表作者本人,不代表焦点立场。
