深圳南山航天科技广场写字楼招租电话 航天科技广场写字楼招租电话
扫描到手机,新闻随时看
扫一扫,用手机看文章
更加方便分享给朋友
深圳
航天科技广场写字楼招租电话:400-088-3336【看房请提前线上预约】
航天科技广场
位处深圳市南山区后海金融总部经济区核心地段,占地面积近1.3万平方米,总建筑面积近20万平方米。项目周边聚合逾20家国际企业总部,已确定入驻的总部企业包括华润、华润万家、新百丽鞋业、天虹商场、中海油、阿里巴巴、海王星辰、中建钢构、中铁南方等知名企业,未来此区域将打造成深圳总部基地经济区之一。
项目全览图
东
项目东面有深圳湾体育馆、深圳湾海景及深圳湾公园,坐拥270度海景资源。
西
西面为海岸城南山中心区,保利剧院,学府中学一大批成熟商务配套资源,与前海自贸区遥相呼应。
南
南面为深圳湾后海总部基地,阿里中心、中铁南方总部大厦、中建钢构大厦、中海油大厦等一批知名企业总部;与香港隔海相望,通过深圳湾大桥可直达香港。
北
北面朝滨河大道科技园南区,汇聚百度、腾讯、芒果网、A8新媒体集团、三诺集团、易思博软件等一批科技总部企业。
航天科技大厦 | 企业总部聚集地
航天科技广场镶嵌在后海总部基地深圳湾畔,地处后海滨路与海德三道交汇处.项目由A、B两栋塔楼以及B栋裙楼商业组成,总建筑面积约20万平方米,其中写字楼面积约12.1万平方米。同时,航天科技广场是深圳少数拥有双轨交覆盖的纯租赁写字楼物业,地铁11号线与2号线于此无缝连接;此外,项目自东向西贯穿深圳 —— 从福田车公庙到前海之间位于后海片区的超级总部基地,南面是蛇口,北面科技园。因而,凭借其得天独厚的战略性区位优势,便利的交通条件,周边已汇聚众多世界级企业总部,包括腾讯、百度、阿里巴巴、百丽、海王星辰等等。
项目区位优越
区位交通
海
邻近蛇口太子湾邮轮母港,接驳香港、澳门、珠海等珠三角重要城市;深圳湾公路大桥南北纵跃深圳湾,连接深圳蛇口与香港。
陆
毗邻海德三道、后海滨路、滨海大道、科苑大道、沙河西路,连通福田、罗湖、南山各大主要商圈;S3广深沿江高速、广深高速快速接驳珠三角各重大城市。
空
港澳广深四大空港,共计100余条国际航线,提供便捷的国内外差旅出行服务。
地铁
下沉式广场无缝接驳后海地铁站,2号线、11号线交汇于此,出行、上班便捷无阻,四通八达,接驳福田、罗湖、南山、宝安各大重要商圈。
商务配套
尽享18万平方米海岸城商业配套,包括逾500家餐饮、17家银行等便利商务配套。
坐落后海金融总部基地,拥揽“一湖三带”怡人景观,尽收70万平方米内弯湖怡人风光,眺望深圳湾15公里滨海生态长廊、纵贯南北的90米宽带状公园、深圳湾口岸至科苑大道中部的70米宽城墙公园等休闲景致。
深圳湾体育中心、保利剧院、凯宾斯基酒店、万豪酒店等环绕在侧,多元文娱生活触手可及。
宽敞明亮的主大堂高度31米
地面及墙面均由高档石材打造
大堂两侧分别设有智能闸机入口
一人一卡通行
确保安全系数及楼内私密性
A座共有25部进口三菱高速电梯合理分布
大大缩短候梯时间,提升商务效率
样板层前台区域,开阔大气
样板层接待及休息区域
样板层实景,空间利用率高
充分满足企业的面积配置需求
样板层实景,格局宽敞,采光通透
位于43层的观景台
深圳湾及南山核心商业区
繁华美景尽收眼底

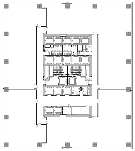
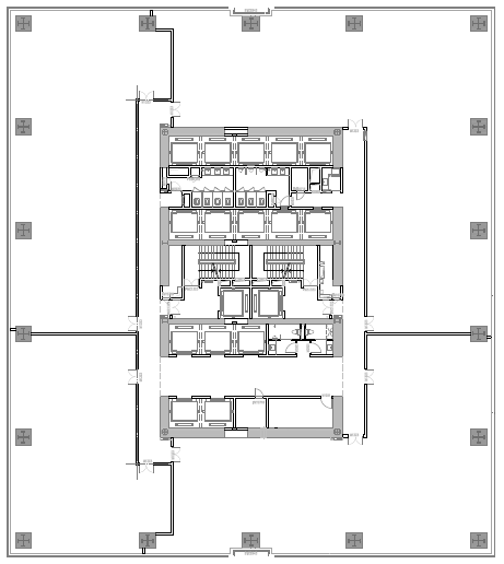
标准层平面图
项目基础信息
办公面积:约120,000平方米
商业面积:约30,000平方米
楼高: A座238米,B座138米
办公楼层:
A座4 - 48层(27层以上,每3层一个特色区间)
B座7 - 28层(7层以上,每2层一个特色区间)
标准层面积: A座:约2,100平方米
B座:约1,600平方米
标准层高: 4.3米
电梯: A座23部客梯,2部消防梯
B座7部客梯,2部消防梯
停车位: 920个(包括90个充电车位)
深圳【航天科技广场】
航天科技广场写字楼招租电话:400-088-3336【看房请提前线上预约】
免责声明:本文所有文章、图片、音频视频文件等资料版权归版权所有人所有,因非原创文章及图片等内容无法一一和版权者联系,如原作者或编辑认为作品不宜上网供大家浏览,请及时来电告之,我们将立即予以修改或删除。本文如无意中侵犯了某方的知识产权,告之即删。
声明:本文由入驻焦点开放平台的作者撰写,除焦点官方账号外,观点仅代表作者本人,不代表焦点立场。
