深业世纪山谷(深业世纪山谷)-2025深业世纪山谷首页网站-深业世纪山谷楼盘详情/价格/户型
扫描到手机,新闻随时看
扫一扫,用手机看文章
更加方便分享给朋友
深圳【深业世纪山谷】楼盘最新详细信息,图文解析
深业世纪山谷售楼处热线:400-088-3336(售楼中心)
★★售楼中心——欢迎来电咨询〢——匠心钜制恭迎品鉴!
◆◆营销中心——欢迎来电咨询〢———匠心钜制恭迎品鉴!

01
Part.1
优劣势分析
优点:
1、区块优势,地处白石洲片区,与科技园板块隔了一个白石洲,位于福田中心和前海-后海中心之间,它与深圳湾超级总部基地、南山科技园、前海自由贸易区、留仙洞总部基地和前海中心区等重点发展区域距离都不远
2、有发展概念,作为深圳目前最强的产业聚集地附近区域,白石洲旧改持续推进,未来有机会享受白石洲旧改升级出来的新配套
3、距离地铁870m是1号线白石洲站,自驾方便,靠近北环大道、深南大道
4、项目周边配套不错,2公里内有益田假日广场和万象天地,现阶段可以享受华侨城的生态配套+华润城的商圈配套
5、景观资源不错,可以看沙河高尔夫景观和城市景观
不足:
1、高端定位的项目,但是产品配比较为复杂,住宅、公寓、酒店混杂并且住宅占比少,影响后期居住体验感
2、超高层,最佳景观没有给到住宅,而是给到2栋超高层回迁房
3、周边旧改,城市面貌一般,靠近道路的一侧会受到一定的噪音影响
4、旧改周期长,最少还需要8-10年,短期自住体验会有影响
02
Part.2
基础数据
【项目名称】深业世纪山谷
【开发商】深业沙河世纪山谷(深圳)投资有限公司
【项目地址】深圳市南山区新塘街
【占地面积】约4.2万㎡(一期17153.5㎡,二期24991.2㎡)
【建筑面积】约39万㎡(一期219933.6㎡,二期168652.16㎡)
【建筑类型】住宅、公寓
【物业公司】深业物业集团有限公司
【物业费】6.8元/㎡/月
【规划套数】共1627套(一期1036套,二期591套)
【产品面积段】建筑面积约240-280-380㎡的3-5房
【梯户比】8T3户(住宅)
【容积率】约6.63
【绿化率】约35%
【规划停车位】总2135个,车位比1:1.25
【产权年限】70年
03
Part.3
周边配套
交通:
地铁:
近地铁1号线【白石洲站】,1站到达【高新园】,可换乘2/7/9/11四条轨道线路
距离地铁1号线白石洲站约500米 步行约7分钟、规划中的20号线【白石洲站】,规划中的29号线【白石洲北站】就在楼下。
陆路:
项目毗邻【沙河东路】,与深圳湾总部基地紧密相连。周边有【深南大道】、【滨海大道】、【北环大道】多条城市交通主轴,可直抵前海、宝中、福田、罗湖等深圳其他城市核心区。
紧邻【沙河东路】,自北向南串联起【京港澳高速】、【北环大道】、【深南大道】、【滨海大道】,纵向由【沙河西路】、【科苑路】共同构成四横三纵的一体快速路网。
区块价值:
【白石洲】——与产业区科技园隔了一个高尔夫的距离,未来配套会持续升级
商业:
一公里内有【益田假日广场】、【万象天地】、【京基百纳广场】,车程约十分钟即可到达【深圳湾睿印】、【欢乐海岸】、【深圳湾万象城】商业。
生态人文:
北看【塘朗山】、南望【深圳湾】、西临【大沙河生态长廊】、【高尔夫球场】,东瞰【华侨城绿地】,周边还有【大沙河公园】、【深圳湾公园】、【华侨城国家湿地公园】、【燕晗山郊野公园】等四大生态公园环绕。
教育:
项目未来会配建一个21班的幼儿园和南外教育集团的63班九年一贯制学校,可以跟住宅同步建成,现成的学校有【南外沙河小学】和【南外第二实验】
医疗:
【深圳沙河医院】660米、【深圳华侨城医院】 2.5公里
04
Part.4
户型介绍
【深业世纪山谷】
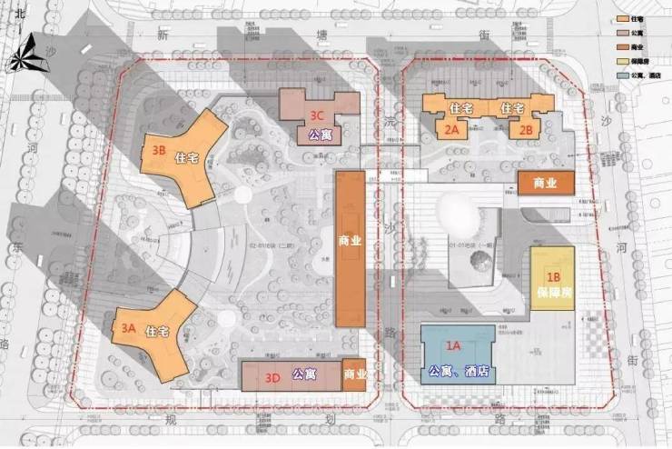
整体分两期开发建设,其中:项目一期东地块包含1栋酒店+商务公寓、1栋保障房、2栋包含一、二单元的住宅,其中,1栋A座42层,结构高度149.5米高;1栋B座28层92.5米高;2栋1单元41层,结构高度137.65米高;2栋2单元41层,结构高度137.65米高。
西地块包含2栋高约250米的超高层住宅,另有1栋约50层高的商务公寓,其中,3栋A座69层,结构高度243.55米高(装饰高度252米);3栋B座69层,结构高度243.55米高装饰高度252米)未来将成为南山最高的住宅建筑;3栋C座50层,结构高度172.10米高;3栋D座4层16.9米高,二期(3A楼)作为中国最高的装配式住宅建筑,2024年春节前夕该楼成功封顶;
该项目二期将规划2栋住宅建筑,地上69层地下3层,建筑高度超过247米,网传全是大户型住宅240-280-380㎡,最快将于今年9月开放样板房,大概率10-11月能入市
户型小结:整体的户型设计充斥着各种不实用,电梯配置过于豪华,套房尺度很奢侈,非套房又设计得小了一些!
05
Part.5
实景情况
▲实景照片:
▲效果图:
06
Part.6
项目对比
A.与【深业世纪山谷】同一开发商的产品有:
【深业新岸线】、【深业上城】、【深业云海湾】、【深业鹤塘岭】、【深业中城】
B.与【深业世纪山谷】成为竞品的项目有:
新房:【中信城开东角头】、【半岛城邦五期】、【南天电力项目】、【前海时代3期】
险些暴雷!再写最后一个顶豪【中信城开东角头】
【卓越南天电力】旧改,是【海德园】翻版还是新版“贫民窟”?
【前海时代三期】1550万起?均价9.9万?预计周五拿证
二手房:【京基御景东方】、【红树西岸】、【深铁万科瑧湾汇】
【京基御景东方】
卖房:
119平3+1房约1250万元
租房:
119平3房约15500-16500元,
148平3房约17500-18000元,
197平4房约28000-29000元。
【红树西岸】
卖房:
194平3房约3000万元,
294平5房约5300万元。
租房:
77平1房1卫约16000-17000元,
116平2房约22000-23000元,
172平3房约26000-30000元。
【深铁万科瑧湾汇】
卖房:
74平750万(商办)
85平1100万(商办)
254平4房约3900万元,(公寓)
311平4房约5500万元。(公寓)
租房:
74平3房约15000-16000元,
254平4房约53000-55000元。
07
Part.7
【深业世纪山谷】小结
适合人群:(2500万,4-7口人,在哪上班,刚需/改善)
从自住角度:
作为未来深圳极其稀缺的大平层产品,【深业世纪山谷】一定是会受到周边有置换需求的群体关注的
户型极其不实用,目前周边环境也不够纯粹,地段上有瑕疵
但是8梯3户的设计,已经几乎到顶的私密性,再配合永久有层次的海景+高尔夫景+城市景的符合景观,追求奢享而不是实用的这部分人群,一定在苦苦等待这个项目!
从投资角度:
这个项目既有豪宅的必备项也有硬伤,因此投资方面,不同面积段的户型,未来的投资价值将被拉开,等待这个项目的群体,不妨继续关注英瑞的文章,或者私信英瑞,也许能得到你想要的答案!
深圳【深业世纪山谷】楼盘最新详细信息,图文解析
深业世纪山谷售楼处热线:400-088-3336(售楼中心)
★★售楼中心——欢迎来电咨询〢——匠心钜制恭迎品鉴!
◆◆营销中心——欢迎来电咨询〢———匠心钜制恭迎品鉴!
免责声明:以上信息仅供参考,所有图文资料请以政府最终批文及双方签署的买卖合同为准
本图文内容如无意中侵犯某方权益,请联系我们,将第一时间处理!
声明:本文由入驻焦点开放平台的作者撰写,除焦点官方账号外,观点仅代表作者本人,不代表焦点立场。
