四海华庭售楼处(深圳)四海华庭欢迎您售楼中心丨四海华庭楼盘详情
扫描到手机,新闻随时看
扫一扫,用手机看文章
更加方便分享给朋友
深圳【四海华庭】
开发商售楼处电话咨询/预约热线:400-088-3336【售楼中心】24小时热线
深圳【四海华庭】售楼处电话:400-088-3336【营销中心】中介勿扰
深圳四海华庭楼盘详情介绍,包含售楼处电话、地址、户型图、小区图片、区位优势、交通、周边商业配套等楼盘详细资料;更详细楼盘资料和最新折扣价格,请拨打售楼处电话,销售会为您详细介绍楼盘。
项目概况与开发背景
1.1 项目基本信息
华侨城四海华亭是华侨城集团在深圳龙华区大浪街道开发的大型城市更新项目,前身为“龙胜村旧改单元”,总占地面积约5.45万㎡,总建筑面积约56万㎡,涵盖住宅、公寓、商业、教育等复合业态,定位为“生态大城综合体”。

深圳【四海华庭】售楼处电话:400-088-3336【营销中心】中介勿扰
- 开发商:深圳市协跃房地产开发有限公司(华侨城全资子公司)。
- 产品构成:住宅(约29万㎡)、商务公寓(约3.7万㎡)、商业(约5.1万㎡)。
- 容积率:6.81-6.87,绿化率约30%。
- 交付标准:精装现楼交付。

深圳【四海华庭】售楼处电话:400-088-3336【营销中心】中介勿扰
1.2 开发背景与定位
项目是华侨城“以城为势”战略的体现,依托龙华区千万级城市更新规划,旨在打造“开放公园里的家”,整合周边公园资源,衔接城市绿脉,形成“住宅+商业+生态”的立体生活场景。作为片区焕新的标杆项目,其目标客群为注重教育、交通和生态的刚需及改善型家庭。

深圳【四海华庭】售楼处电话:400-088-3336【营销中心】中介勿扰
区位与交通分析
2.1 地理位置
项目位于龙华区大浪街道龙胜路与工业西路交汇处,毗邻龙胜公园,距离地铁4号线龙华站、龙胜站约700-800米(步行约10分钟),未来规划有深大城际龙胜站(2025年通车)及多条地铁线路(如25号线),属双地铁辐射范围。

深圳【四海华庭】售楼处电话:400-088-3336【营销中心】中介勿扰
2.2 交通便利性
- 轨道交通:4号线直达深圳北站(3站换乘高铁),6号线上芬站步行约1.6公里。
- 自驾路网:临近布龙路、龙观大道等主干道,但龙华中心区高峰期易拥堵。
- 通勤效率:30分钟内可达福田、南山,1小时内覆盖深圳主要商务区。

深圳【四海华庭】售楼处电话:400-088-3336【营销中心】中介勿扰
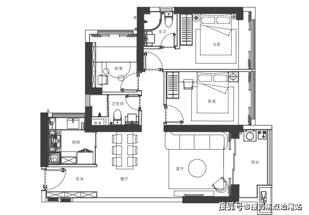
产品设计与户型解析
3.1 住宅产品线
项目首推1044套住宅,面积段为87-121㎡,涵盖3-4房设计,梯户比3梯5户或4梯6户,得房率约80%。

深圳【四海华庭】售楼处电话:400-088-3336【营销中心】中介勿扰
- 87㎡三房一卫:竖厅设计,但总价低,适合预算有限的家庭。

深圳【四海华庭】售楼处电话:400-088-3336【营销中心】中介勿扰
- 96㎡三房两卫:三开间南向,户型方正,采光较好,性价比突出。

深圳【四海华庭】售楼处电话:400-088-3336【营销中心】中介勿扰
- 112-121㎡四房两卫:横厅设计,主卧面积大(121㎡主卧可改独立衣帽间)。

深圳【四海华庭】
开发商售楼处电话咨询/预约热线:400-088-3336【售楼中心】24小时热线
深圳【四海华庭】售楼处电话:400-088-3336【营销中心】中介勿扰
深圳四海华庭楼盘详情介绍,包含售楼处电话、地址、户型图、小区图片、区位优势、交通、周边商业配套等楼盘详细资料;更详细楼盘资料和最新折扣价格,请拨打售楼处电话,销售会为您详细介绍楼盘。
免责声明:
以上所发布的关于楼盘相关图文信息仅供您买房前参考,以上所有关于本楼盘的图文资料及说明请以最终以项目批文及双方在楼盘营销中心现场签署的买卖最终合同为准;本图文内容如无意中侵犯到某方权益,请联系我们将会及时处理!
声明:本文由入驻焦点开放平台的作者撰写,除焦点官方账号外,观点仅代表作者本人,不代表焦点立场。
