深圳翰熙典居售楼处电话→售楼中心首页网站→楼盘详情→24小时热线电话
扫描到手机,新闻随时看
扫一扫,用手机看文章
更加方便分享给朋友
深圳「翰熙典居」
翰熙典居售楼处电话:400-088-3336【中介勿扰】
欢迎来电咨询,一对一专业服务
物业中心暂不接受临时到访客户,请提前预约!

翰熙典居作为南山粤海街道的全新楼盘,承载着众多购房者的期待。项目不仅在户型设计上独具匠心,还因所处地段的优越性,在区域发展、周边配套等方面展现出强大的竞争力。接下来,让我们深入了解翰熙典居。
一、多元户型,满足多样需求
105平A1户型
105平A1户型为三房两厅两卫,采用竖厅类双龙抱珠格局,客厅开间达3.6米,客餐厅一体化设计,让公共活动空间更加开阔 。三个卧室布局合理,主卧面积约12.8㎡,次卧分别为12㎡和8.7㎡(包含墙体飘窗) ,居住舒适度高。客厅连接次卧,延伸出6.5米长的宽景大阳台,采光通风俱佳,可尽情享受室外美景 。U型厨房操作便捷,公卫采用三段式分离,提升了使用效率和卫生程度,整体得房率约90%(包含赠送),朝向为东南,阳光充足。
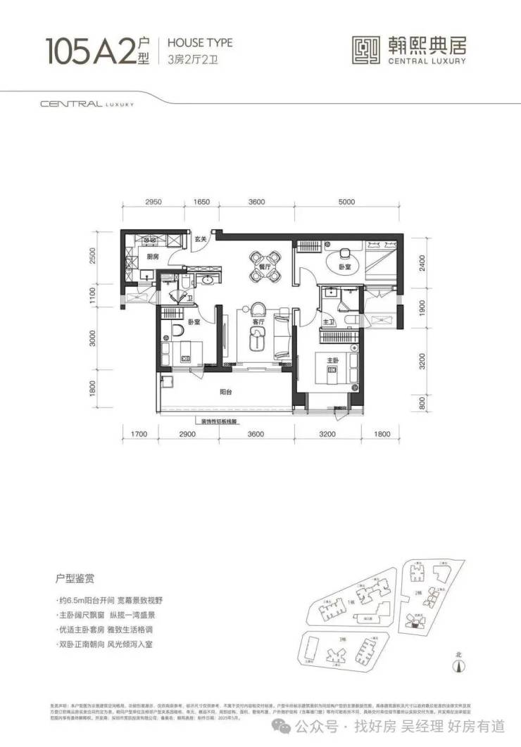
105平A2户型
105平A2户型同样是三房两厅两卫,面积与格局和A1户型相近 。竖厅类双龙抱珠格局,客厅3.6米开间,客餐厅一体化 ,三间卧室面积分别为主卧12.8㎡、次卧12㎡、次卧8.7㎡(包含墙体飘窗) 。客厅连接次卧出6.5米长的宽景大阳台,U型厨房与三段式分离的公卫一应俱全 ,得房率约90%(包含赠送)。其最大的区别在于正南朝向,使得室内光线更为充足,也为购房者提供了不同的选择。
105平B户型
105平B户型设计为经典竖厅格局,客厅3.6米开间,LDKB一体化设计,实现了空间的高效利用 。三开间朝南,动静分区明显,保障了居住的舒适性与私密性 。三个卧室分别做到了主卧13.12㎡、次卧9.9㎡、次卧8.4㎡(包含墙体飘窗) ,满足家庭不同成员的居住需求 。客厅连接次卧出6.4米长的宽景大阳台,U型厨房设计合理,卫生间干湿分离 ,得房率约90%(包含赠送),朝向为正南或东南,居住体验感极佳。
120平B户型
120平B户型为3房2厅2卫格局,分布于2栋3单元05号房,以及2栋4单元01、02、05号房 。三间卧室面积布局合理,主卧达31.5㎡,空间宽敞,居住体验舒适 ,两间次卧分别为9.6㎡与7.05㎡(含墙体及飘窗面积) 。值得一提的是,该户型可灵活改造为4房,满足家庭结构变化或不同居住需求,提高了房屋的实用性和功能性。
120平C户型
120平C户型采用竖厅设计,通过LDKB一体化布局,让客厅、餐厅、厨房和阳台形成一个连贯的空间,增强了空间的通透感和互动性 。该户型动静分区科学,各卧室空间分配合理 :主卧面积达33.5㎡,两间次卧分别为9.9㎡与11.5㎡,另有6.3㎡的书房(均含墙体及飘窗面积) ,书房可根据需求改造为卧室,为家庭提供了更多的使用可能性。
140平户型
140平户型为三室两厅两卫格局,采用横厅设计,南北通透,四开间朝南 ,实现了良好的采光与通风效果,让室内时刻保持明亮与清新 。三个卧室面积分布合理,主卧面积达42.11㎡,宽敞舒适,两间次卧分别为14.43㎡与11.7㎡(含墙体及飘窗面积) 。得房率约90%(含赠送面积),若有需求,还可灵活改造为四房空间 ,满足大家庭或改善型居住需求。
二、价格对比,凸显性价比优势
翰熙典居周边二手房同学区划分内可参考的楼盘是阳光粤海花园,近期成交均价在9万/平左右 。而翰熙典居预计开盘均价会在10 - 12万/㎡区间 。尽管新房价格相对二手房略高,但考虑到翰熙典居是全新楼盘,拥有更新的建筑设计、更完善的社区配套以及新规下较高的得房率 ,从长期居住和房产保值增值角度来看,仍具有较高的性价比。与周边近年来入市的新盘相比,如绿景白石洲11万/平米、深业世纪山谷12万/平米,翰熙典居的价格处于合理区间,在区域内具有一定的价格竞争力 。
三、区域发展,潜力无限
翰熙典居所在的粤海街道被誉为“中国硅谷” ,是深圳高科技产业的核心聚集区 。2024年,这片约14.23平方公里的土地贡献了4497.73亿元的GDP ,超过广东省排名第六的地级市珠海,区域创新能力连续8年全国第一 。辖区内聚集了百度、腾讯、阿里、中兴、华为等科技巨头以及近千家高新技术企业和94家上市公司 。众多高科技企业的汇聚带来了大量高净值人群,为区域的房产市场提供了坚实的需求支撑 ,无论是自住还是投资,翰熙典居都具备良好的发展前景。
交通方面,翰熙典居坐拥双地铁优势,楼下无缝连接9号线和15号线(在建中)的交汇站深大南站 。待2028年15号线贯通后,将高效串联前海南北区域 ,大大缩短通勤时间,加强区域间的联系 。自驾出行也十分便利,2分钟即可驶入滨海大道,20分钟内可快速抵达福田、前海核心地带 ,便捷的交通网络为居民的出行提供了多种选择,也提升了区域的吸引力。
此外,翰熙典居原是桂庙新村城市更新单元,城市更新将改善区域的城市面貌和基础设施 ,提升居住品质 。随着项目周边配套设施的不断完善和区域的持续发展,房产的价值有望进一步提升 。
四、周边配套,尽享便捷生活
交通配套
翰熙典居临近深大南站,9号线和在建的15号线在此交汇 。除了地铁,项目周边道路网发达,四横(滨海大道、深南大道、北环大道、学府路)三纵(南海大道、后海大道、白石路)的交通布局 ,让居民无论是驾车前往深圳各个区域,还是选择公共交通出行都非常方便,有效节省出行时间成本 。
商业配套
项目自带约5000㎡的商业规划 ,满足日常生活所需 。两公里范围内有海岸城、茂业百货、海雅百货等大型商超 ,汇聚了丰富的购物、餐饮、娱乐等业态 。此外,距离深圳湾万象城、万象天地等顶流商业体也在几公里范围内 ,居民可享受一站式的高端购物和休闲娱乐体验 。
教育配套
翰熙典居在南山区第二外国语学校(集团)学府一小和南山区第二外国语学校(集团)学府中学范围内 ,这两所学校教学质量较高,在南山区长期稳定前列 ,为孩子提供了优质的教育资源 。项目还自带12班幼儿园,方便孩子就近入学 。同时,项目隔壁规划新建小学,将进一步缓解学位紧张问题 ,完善区域教育配套。
文娱配套
临近南山书城,周边还有荔香公园、文心公园、科技公园、深圳人才公园等 ,为居民提供了丰富的休闲娱乐场所 。此外,保利剧院、南山图书馆、南山文体中心、南山博物馆、深圳湾体育中心等文体设施也在附近 ,满足居民文化、艺术、体育等多方面的需求 ,丰富居民的精神文化生活。
五、全面剖析,明晰优劣势
优势
1. 核心地段:处于粤海街道核心区域,周边产业资源丰富,就业机会多,对于在周边企业工作的人群通勤极为便捷 ,同时区域的高发展潜力也为房产增值提供了保障。
2. 交通便捷:双地铁交汇,且临近多条主干道,公共交通和自驾出行都十分便利,能快速到达城市各个重要区域 。
3. 教育资源优质:对口优质中小学学区,还有新建学校预期,教育资源丰富,满足孩子从幼儿园到中学的一站式教育需求 。
4. 商业配套成熟:周边大型商超云集,项目自身也有商业规划,未来生活购物非常方便 。
5. 产品优势:新规后的户型,得房率高,空间利用率大,满足不同家庭结构的居住需求 。
劣势
1. 高容积率:作为大型综合体项目,规划住户达3030户,居住密度较大,可能会影响居住舒适度 ,例如梯户比高,可能导致等电梯时间较长;楼间距相对较小,对部分楼层的采光和隐私有一定影响 。
2. 业态混杂:项目包含商品房、回迁房以及保障房,多元居住群体可能导致社区圈层相对复杂 ,物业管理难度增大,对居住品质可能产生一定影响 。
3. 景观欠佳:项目北向紧邻深圳大学生活区,南向受滨海大道噪音干扰,东西两侧被科技园写字楼群环绕 ,缺乏开阔的景观视野,居住环境的景观体验相对不足 。
4. 车位比不足:车位占比约1:0.86,低于深圳新建住宅标准,随着居民车辆保有量的增加,未来停车可能存在一定压力 。
翰熙典居凭借其独特的户型设计、优越的地段、丰富的周边配套以及良好的区域发展潜力,成为南山房地产市场的热门项目 。尽管存在一些不足之处,但总体而言,对于追求高品质居住、看重地段和配套的购房者来说,具有较高的吸引力 ,值得重点关注和考虑。
深圳「翰熙典居」
翰熙典居售楼处电话:400-088-3336【中介勿扰】
欢迎来电咨询,一对一专业服务
物业中心暂不接受临时到访客户,请提前预约!
免责声明:
以上所发布的关于楼盘相关图文信息仅供您买房前参考,以上所有关于本楼盘的图文资料及说明请以最终官方批文及双方在楼盘营销中心现场签署的买卖最终合同为准;本图文内容如无意中侵犯到某方权益,请联系我们将会及时处理。
声明:本文由入驻焦点开放平台的作者撰写,除焦点官方账号外,观点仅代表作者本人,不代表焦点立场。
