深圳琅玥湾佳园售楼处_琅玥湾佳园售楼处欢迎您|项目详情/地址/户型图/价格/学校
扫描到手机,新闻随时看
扫一扫,用手机看文章
更加方便分享给朋友
深圳【琅玥湾佳园】
开发商售楼处电话咨询/预约热线:400-088-3336【售楼中心】24小时热线
深圳【琅玥湾佳园】售楼处电话:400-088-3336【营销中心】中介勿扰
深圳琅玥湾佳园楼盘详情介绍,包含售楼处电话、地址、户型图、小区图片、区位优势、交通、周边商业配套等楼盘详细资料;更详细楼盘资料和最新折扣价格,请拨打售楼处电话,销售会为您详细介绍楼盘。
深圳【琅玥湾佳园】售楼处电话:400-088-3336【营销中心】中介勿扰
一、项目核心参数:国企现房+一线海景,但混居与产权缩水并存
基本属性
地段基因
:南山区赤湾核心区,赤湾六路与港航路交汇处,背靠大/小南山,南瞰深圳湾15公里海岸线,与前海宸湾、半山臻境形成“山海三角”顶豪矩阵。
开发背景
:深圳市海越锦实业开发(中国南山集团旗下),总建面7.5万㎡,容积率4.77(赤湾片区最低),含2栋45层超高层,总户数380套(纯商品房),2025年10月精装现房交付。

深圳【琅玥湾佳园】售楼处电话:400-088-3336【营销中心】中介勿扰
建筑硬指标
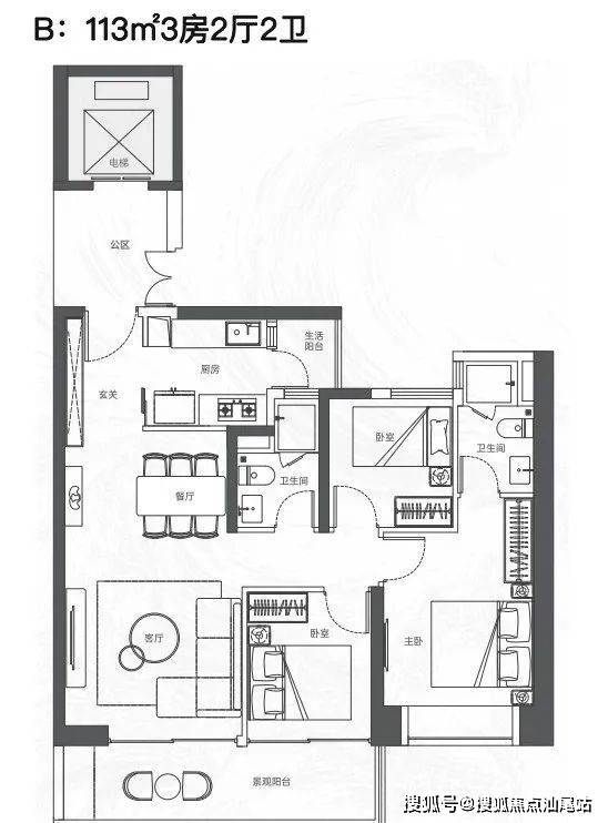
113㎡三房
:总价737万起,套内使用率72%,西南朝向+6.5米观景阳台,次卧面宽2.7米需改造;
167㎡五房
:总价1347万起,南北通透+双主卧套间,但厨房无生活阳台,精装品牌未公示。
户型定位
:
113㎡三房:总价737万起,套内使用率72%,西南朝向+6.5米观景阳台,次卧面宽2.7米需改造;
167㎡五房:总价1347万起,南北通透+双主卧套间,但厨房无生活阳台,精装品牌未公示。
梯户比争议
:低区(31层以下)5梯5户,高区4梯4户,虽标榜“一梯一户”,但高峰期电梯等待时间或超5分钟。
交付风险:
精装标准未公示具体品牌,开发商承诺的“智能家居”仅含基础款;
产权缩水至49年(2025年计算),二手贷款评估或受限。
深圳【琅玥湾佳园】售楼处电话:400-088-3336【营销中心】中介勿扰
深圳【琅玥湾佳园】售楼处电话:400-088-3336【营销中心】中介勿扰
深圳【琅玥湾佳园】售楼处电话:400-088-3336【营销中心】中介勿扰
深圳【琅玥湾佳园】售楼处电话:400-088-3336【营销中心】中介勿扰
深圳【琅玥湾佳园】售楼处电话:400-088-3336【营销中心】中介勿扰
深圳【琅玥湾佳园】售楼处电话:400-088-3336【营销中心】中介勿扰
深圳【琅玥湾佳园】售楼处电话:400-088-3336【营销中心】中介勿扰
二、配套能级:顶配规划与“半成品现实”的撕裂感
交通:双地铁红利与噪音痛点
地铁零距离
:2/5号线赤湾站无缝接驳,未来12号线贯通后30分钟直达前海、深圳湾超级总部;
自驾硬伤
:兴海大道货柜车噪音达65分贝,西北向户型需常年关窗,妈湾跨海通道2027年通车前通勤效率低。
深圳【琅玥湾佳园】售楼处电话:400-088-3336【营销中心】中介勿扰
教育与商业的“预期落差”
学区争议
:划入南二外赤湾学校(2024年初中四大率3.2%),步行280米即达,但教学质量属南山二梯队末位;
商业兑现周期
:自带4.6万㎡赤湾汇购物中心招商率不足50%,太子湾K11预计2026年开业,现阶段依赖1.5公里外城中村夜市。
深圳【琅玥湾佳园】售楼处电话:400-088-3336【营销中心】中介勿扰
深圳【琅玥湾佳园】售楼处电话:400-088-3336【营销中心】中介勿扰
生态特权与界面短板
景观垄断
:25层以上南向无遮挡瞰海,4层以上即可见深圳湾天际线;
城市界面
:东南侧物流园区施工至2027年,赤湾村旧改停滞,片区升级需5-8年。

深圳【琅玥湾佳园】售楼处电话:400-088-3336【营销中心】中介勿扰
深圳【琅玥湾佳园】售楼处电话:400-088-3336【营销中心】中介勿扰
深圳【琅玥湾佳园】
开发商售楼处电话咨询/预约热线:400-088-3336【售楼中心】24小时热线
深圳【琅玥湾佳园】售楼处电话:400-088-3336【营销中心】中介勿扰
深圳琅玥湾佳园楼盘详情介绍,包含售楼处电话、地址、户型图、小区图片、区位优势、交通、周边商业配套等楼盘详细资料;更详细楼盘资料和最新折扣价格,请拨打售楼处电话,销售会为您详细介绍楼盘。
免责声明:
以上所发布的关于楼盘相关图文信息仅供您买房前参考,以上所有关于本楼盘的图文资料及说明请以最终以项目批文及双方在楼盘营销中心现场签署的买卖最终合同为准;本图文内容如无意中侵犯到某方权益,请联系我们将会及时处理!
声明:本文由入驻焦点开放平台的作者撰写,除焦点官方账号外,观点仅代表作者本人,不代表焦点立场。
