新世界香蜜四季售楼处(售楼中心)24小时电话 新世界香蜜四季楼盘最新详情_户型_价格
扫描到手机,新闻随时看
扫一扫,用手机看文章
更加方便分享给朋友
新世界香蜜四季售楼处电话:400-088-3336(售楼中心)
新世界香蜜四季网上招商中心 | 欢迎来电咨询 | 请提前预约登记看房
01
项目信息
02
户型鉴赏
项目商品房分为低区和高区,低区是3梯5户,高区是3梯3户。
面积段也是,低区户型是105-108㎡,122-124㎡,123-126㎡,128-129㎡,140-143㎡,144-145㎡5个户型。
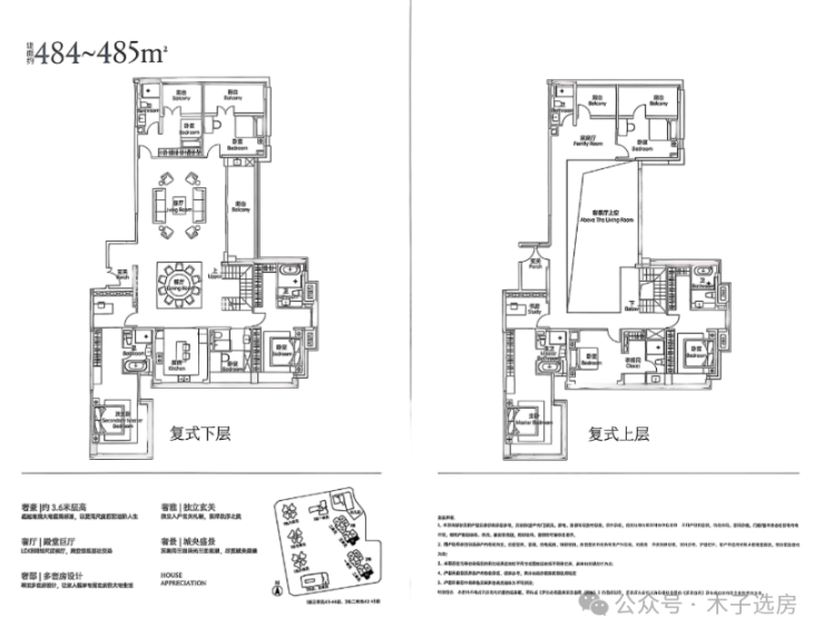
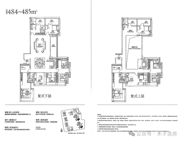
高区户型是219-221㎡,277-279㎡两个户型以及231-233㎡,354-358㎡,484-485㎡三个复式户型。









03
区位解析
04
交通配套
05
商业配套
06
公园配套

07
人文配套
08
社区打造
新世界香蜜四季售楼处电话:400-088-3336(售楼中心)
新世界香蜜四季网上招商中心 | 欢迎来电咨询 | 请提前预约登记看房
免责声明:
1.本文所发布内容,凡未注明“原创”等字样的均来源于网络善意转载,版权归原作者所有!
2.除本平台独家和原创,其他内容非本平台立场,不构成投资建议。
3.如千辛万苦未找到原作者或原始出处,请理解并联系我们。
4.文中部分图片源于网络。
5.发布此文出于传播消息之目的,如有侵权,联系删除。
声明:本文由入驻焦点开放平台的作者撰写,除焦点官方账号外,观点仅代表作者本人,不代表焦点立场。
