深圳拾悦城楠园欢迎您_拾悦城楠园售楼处电话_拾悦城楠园楼盘详情/地址/价格
扫描到手机,新闻随时看
扫一扫,用手机看文章
更加方便分享给朋友
深圳【拾悦城楠园】
开发商售楼处电话咨询/预约热线:400-088-3336【售楼中心】24小时热线
深圳【拾悦城楠园】售楼处电话:400-088-3336【营销中心】中介勿扰
深圳拾悦城楠园楼盘详情介绍,包含售楼处电话、地址、户型图、小区图片、区位优势、交通、周边商业配套等楼盘详细资料;更详细楼盘资料和最新折扣价格,请拨打售楼处电话,销售会为您详细介绍楼盘。
项目基本信息
【项目名称】拾悦城.楠园
【占地面积】约3.54万㎡
【建筑面积】约23.5万㎡
【推售产品】86-140㎡3-5房
【交付标准】简装交付
【交房时间】2025.12
【房产性质】70年
【总 户 数】可售2015套
【车 位 数】约2396个
【物业公司】万家好物业
【物 业 费】4.5
【容 积 率】约6.66
【绿 化 率】约40%
【梯 户 比】3T7、3T6、3T5
深圳【拾悦城楠园】售楼处电话:400-088-3336【营销中心】中介勿扰
交通配套
【出行Top:11号线上 高速畅达全城】
紧邻11号线沙井站约700米,5站到机场,7站通宝安中心(从马安山出发),快速通达前海湾、后海总部基地、深湾总部基地、福田中心。
深圳【拾悦城楠园】售楼处电话:400-088-3336【营销中心】中介勿扰
商业配套
【繁华Top:超48万㎡醇熟生活圈】
项目约3公里内超48万㎡商荟集群,未来周边还会进驻山姆会员店(建设中)、海岸城等,悦享一站式购物生活圈。
深圳【拾悦城楠园】售楼处电话:400-088-3336【营销中心】中介勿扰
教育配套
【优教Top:宝中外(集团)学校旁 接送省心】
项目自带一所18班幼儿园,项目规划的九年一贯制学校教育用地,有传闻将引进宝中集团俩办分校(最终以教育局公示为准),周边学校有壆岗小学、拾悦小学、万丰小学,整体教育质量一般。
深圳【拾悦城楠园】售楼处电话:400-088-3336【营销中心】中介勿扰
深圳【拾悦城楠园】售楼处电话:400-088-3336【营销中心】中介勿扰
生态配套
【生态Top:定岗湖畔 绝佳优渥景观】
定岗湖公园占地面积约9.5万㎡,2023年荣获“最受市民欢迎奖”,公园包括水域、湿地、亲水平台、音乐喷泉、廊桥、儿童活动场地、足球场等,为周边市民提供了多样的公共活动空间。
深圳【拾悦城楠园】售楼处电话:400-088-3336【营销中心】中介勿扰
小区配套
1.4万平全龄段主题园林:1.4万平米中央园林,以“全维社区共享生活体系”为概念,打造全龄段、多元化、动静分明的沉浸式归家生活。
主题儿童区:670平米森系主题儿童乐园
环氧步道:356米环形健康步道,即能运动又能与家人一起享受幸福甜蜜的闲暇时光
社区活动广场 :专属社区活动场地,满足全龄段业主活动需求
高品质公区:高品质入户大堂、停车场入户大堂,归家仪式与空间交融
社区会客厅:沉浸式社区会客厅,邻里关系更温馨
深圳【拾悦城楠园】售楼处电话:400-088-3336【营销中心】中介勿扰
区域优势
深圳西进浪潮汹涌:自罗湖起,经福田、南山,直抵前海与宝安,城市发展脉络清晰指向西部。2021年前海迎来空前扩容,版图扩张八倍,彰显深圳向西发展的强劲势头,势如破竹。
在这片热土上,三重国家级战略交相辉映:前海作为核心引擎,其一级辐射区效应显著;会展海洋城与空港新城两大战略高地并立,共同构筑起“黄金内湾”的宏伟蓝图,区域发展潜力无限,正加速崛起为世界级湾区的重要一极。

深圳【拾悦城楠园】售楼处电话:400-088-3336【营销中心】中介勿扰
⚜西部价值高地 城市发展重心
占据大前海门户,雄踞西部沙井“正中芯”,虹吸区域政策利好。
深圳【拾悦城楠园】售楼处电话:400-088-3336【营销中心】中介勿扰
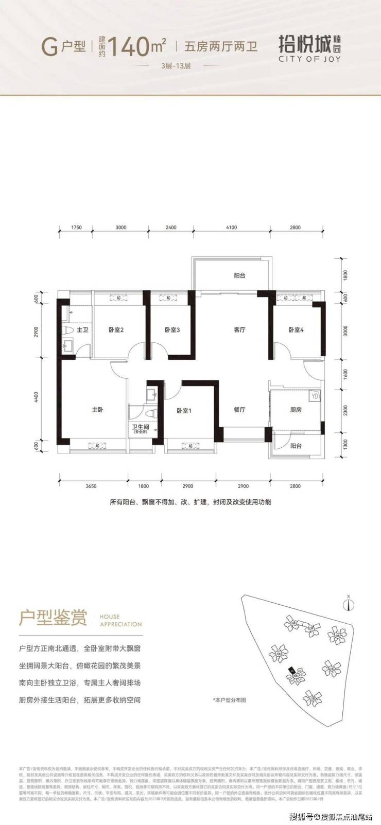
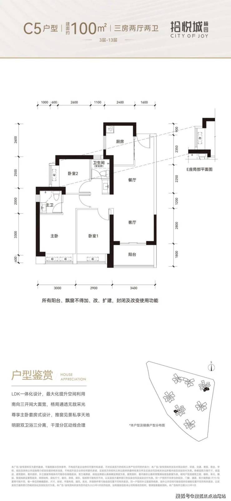
户型鉴赏
深圳【拾悦城楠园】售楼处电话:400-088-3336【营销中心】中介勿扰
深圳【拾悦城楠园】售楼处电话:400-088-3336【营销中心】中介勿扰
深圳【拾悦城楠园】售楼处电话:400-088-3336【营销中心】中介勿扰
深圳【拾悦城楠园】售楼处电话:400-088-3336【营销中心】中介勿扰
深圳【拾悦城楠园】
开发商售楼处电话咨询/预约热线:400-088-3336【售楼中心】24小时热线
深圳【拾悦城楠园】售楼处电话:400-088-3336【营销中心】中介勿扰
深圳拾悦城楠园楼盘详情介绍,包含售楼处电话、地址、户型图、小区图片、区位优势、交通、周边商业配套等楼盘详细资料;更详细楼盘资料和最新折扣价格,请拨打售楼处电话,销售会为您详细介绍楼盘。
免责声明:
以上所发布的关于楼盘相关图文信息仅供您买房前参考,以上所有关于本楼盘的图文资料及说明请以最终以项目批文及双方在楼盘营销中心现场签署的买卖最终合同为准;本图文内容如无意中侵犯到某方权益,请联系我们将会及时处理!
声明:本文由入驻焦点开放平台的作者撰写,除焦点官方账号外,观点仅代表作者本人,不代表焦点立场。
