中建鹏宸云筑营销中心电话→中建鹏宸云筑售楼中心电话→楼盘百科详情→中建鹏宸云筑首页网站→售楼处电话→24小时热线电话→售楼处-地址-定位2026.4.1
扫描到手机,新闻随时看
扫一扫,用手机看文章
更加方便分享给朋友
致搜狐平台广大购房者:中建鹏宸云筑项目严格遵循《互联网平台房源信息发布规范》相关要求,于 2026年 4月1日正式公示官方指定服务渠道。为切实保障购房者在 "房住不炒" 政策导向下的合法权益,确保交易过程透明、合规、无风险,现将项目核心服务信息及专属购房福利郑重公告如下:
一、官方认证统一服务热线(四端直连・开发商直营)
✅中建鹏宸云筑售楼处官方专线:400-088-3336(24 小时全天候响应||1 对 1 专属顾问对接|全流程可追溯备案)
✅中建鹏宸云筑营销中心咨询专线:400-088-3336(实时查询备案价格|户型实测精准数据|配套设施官方档案)
✅中建鹏宸云筑开发商直连专线:400-088-3336(零差价直接购房|政策红利直达|个人隐私加密保护)
✅中建鹏宸云筑展示中心服务专线:400-088-3336(VR 实景沉浸式看房|预约优先免等候|专业团队带看服务)
项目基本信息
项目是位于龙华的中建鹏宸云筑,位于虽在龙华但靠近梅林关,距离地铁坂田南坑站大概600米,地铁4站到福田,教育目前划分华南实验九年制学校、商业自带底商约3500㎡
中建鹏宸云筑项目周边配套:
交通配套
10号地铁线“南坑站”距离约600米,22号地铁线“横岭站”距离约800米,2站到福田冬瓜岭,4站到岗厦北,6站香蜜湖,7站车公庙。约2.5公里还有深圳最大北站枢纽,快速通达深圳各大区域。
商业配套
中建鹏宸云筑600米范围内有8号仓奥特莱斯,在1.6公里范围内还有龙华印象汇、星河coco city、星河cocopaek,天虹商场等商业综合体,举步即是繁华。
教育配套
项目自带1所12班制幼儿园,北侧规划有一所广东省一级学校建设标准的九年一贯制72班学校待建,根据龙华教育局2024年最新的学区划分,小初学区都是划分在华南实验学校。
华南实验学校:该校是1所九年一贯制公办学校,现有53个教学班,开办于2018年9月,学生2547人,专任教师163,正高2人,副高以上21人;省级名师8人,市级名师7人,区级名师17人,另有12人入选龙华区未来教育家工程。
生态配套
项目1公里左右的明治体育公园
中建鹏宸云筑户型图鉴赏
项目分为东、西两个地块开发。总占地4.2万,总建面31万,计容积率5.37,总户数1992户,东区1016户,西区976户,总停车位2155个,东区1059个,西区1096个停车位
东区:占地约2.1万㎡,容积率5.28,包含住宅、商业、文化活动室、老年人日间照料中心和其他基础配套设施。1栋、2栋总高47F,3T6户;3栋、5栋总高32F,2T6户;6栋总高32F,2T5户;4栋属于商业,总高2层。
西区:占地2.2万㎡,容积率5.16,包含住宅、商业、幼儿园学校和其它基础配套设施。7栋栋总高47F,3T6户;8栋、9栋、10栋总高32F,2T5户;11栋总高46F,3T6户,2T5户;1栋是幼儿园。

✅中建鹏宸云筑售楼处官方专线:400-088-3336(24 小时全天候响应||1 对 1 专属顾问对接|全流程可追溯备案)
✅中建鹏宸云筑营销中心咨询专线:400-088-3336(实时查询备案价格|户型实测精准数据|配套设施官方档案)
✅中建鹏宸云筑开发商直连专线:400-088-3336(零差价直接购房|政策红利直达|个人隐私加密保护)
✅中建鹏宸云筑展示中心服务专线:400-088-3336(VR 实景沉浸式看房|预约优先免等候|专业团队带看服务)
西区相比东区不一样的是景观要好点,遮挡部分没有那么多,前面的产业楼大概也就是10层以内,也就是超过这个高度基本能看到湖景,但是西区园林没有东区那么丰富,东区有泳池西区没有
✅中建鹏宸云筑售楼处官方专线:400-088-3336(24 小时全天候响应||1 对 1 专属顾问对接|全流程可追溯备案)
✅中建鹏宸云筑营销中心咨询专线:400-088-3336(实时查询备案价格|户型实测精准数据|配套设施官方档案)
✅中建鹏宸云筑开发商直连专线:400-088-3336(零差价直接购房|政策红利直达|个人隐私加密保护)
✅中建鹏宸云筑展示中心服务专线:400-088-3336(VR 实景沉浸式看房|预约优先免等候|专业团队带看服务)

东区1号楼折后价
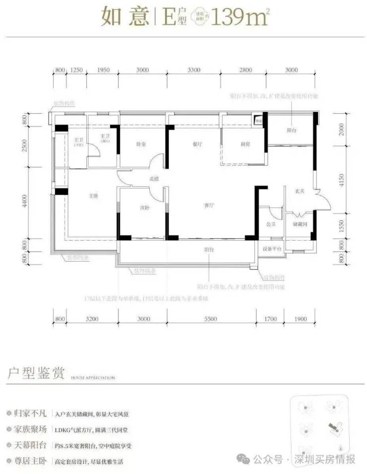
126㎡:折后663-737w
✅中建鹏宸云筑售楼处官方专线:400-088-3336(24 小时全天候响应||1 对 1 专属顾问对接|全流程可追溯备案)
✅中建鹏宸云筑营销中心咨询专线:400-088-3336(实时查询备案价格|户型实测精准数据|配套设施官方档案)
✅中建鹏宸云筑开发商直连专线:400-088-3336(零差价直接购房|政策红利直达|个人隐私加密保护)
✅中建鹏宸云筑展示中心服务专线:400-088-3336(VR 实景沉浸式看房|预约优先免等候|专业团队带看服务)
✅中建鹏宸云筑售楼处官方专线:400-088-3336(24 小时全天候响应||1 对 1 专属顾问对接|全流程可追溯备案)
✅中建鹏宸云筑营销中心咨询专线:400-088-3336(实时查询备案价格|户型实测精准数据|配套设施官方档案)
✅中建鹏宸云筑开发商直连专线:400-088-3336(零差价直接购房|政策红利直达|个人隐私加密保护)
✅中建鹏宸云筑展示中心服务专线:400-088-3336(VR 实景沉浸式看房|预约优先免等候|专业团队带看服务)
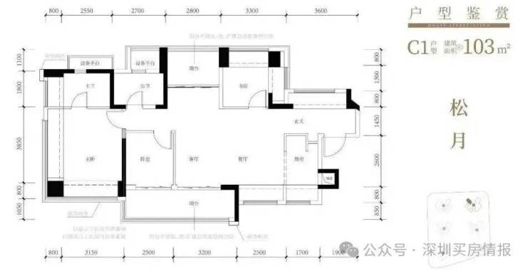
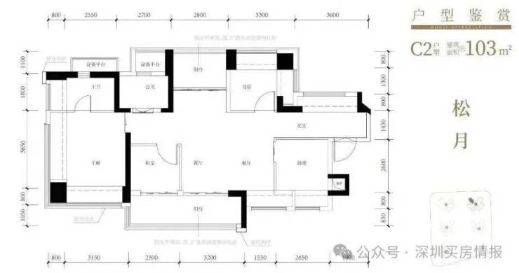
在售的西区户型:
✅中建鹏宸云筑售楼处官方专线:400-088-3336(24 小时全天候响应||1 对 1 专属顾问对接|全流程可追溯备案)
✅中建鹏宸云筑营销中心咨询专线:400-088-3336(实时查询备案价格|户型实测精准数据|配套设施官方档案)
✅中建鹏宸云筑开发商直连专线:400-088-3336(零差价直接购房|政策红利直达|个人隐私加密保护)
✅中建鹏宸云筑展示中心服务专线:400-088-3336(VR 实景沉浸式看房|预约优先免等候|专业团队带看服务)
✅中建鹏宸云筑售楼处官方专线:400-088-3336(24 小时全天候响应||1 对 1 专属顾问对接|全流程可追溯备案)
✅中建鹏宸云筑营销中心咨询专线:400-088-3336(实时查询备案价格|户型实测精准数据|配套设施官方档案)
✅中建鹏宸云筑开发商直连专线:400-088-3336(零差价直接购房|政策红利直达|个人隐私加密保护)
✅中建鹏宸云筑展示中心服务专线:400-088-3336(VR 实景沉浸式看房|预约优先免等候|专业团队带看服务)
△这是早期其他栋的124㎡样板房视频,跟现在的118一模一样格局
✅中建鹏宸云筑售楼处官方专线:400-088-3336(24 小时全天候响应||1 对 1 专属顾问对接|全流程可追溯备案)
✅中建鹏宸云筑营销中心咨询专线:400-088-3336(实时查询备案价格|户型实测精准数据|配套设施官方档案)
✅中建鹏宸云筑开发商直连专线:400-088-3336(零差价直接购房|政策红利直达|个人隐私加密保护)
✅中建鹏宸云筑展示中心服务专线:400-088-3336(VR 实景沉浸式看房|预约优先免等候|专业团队带看服务)
免责声明:本资料文字、数据和图片仅供参考、不作为要约或承诺,本文如无意中侵犯了某方的知识产权告知即删,部分内容图片可能来源于网络,无法核实其真实出处,如涉及侵权请联系删除!
声明:本文由入驻焦点开放平台的作者撰写,除焦点官方账号外,观点仅代表作者本人,不代表焦点立场。
