惠州德洲朗诗麓园[惠州德洲朗诗麓园首页网站]惠州德洲朗诗麓园楼盘详情/地址/户型/备案价
扫描到手机,新闻随时看
扫一扫,用手机看文章
更加方便分享给朋友
惠州【德洲朗诗麓园】
开发商售楼处电话咨询/预约热线:400-088-3336【售楼中心】24小时热线
惠州【德洲朗诗麓园】售楼处电话:400-088-3336【营销中心】中介勿扰
惠州德洲朗诗麓园楼盘详情介绍,包含售楼处电话、地址、户型图、小区图片、区位优势、交通、周边商业配套等楼盘详细资料;更详细楼盘资料和最新折扣价格,请拨打售楼处电话,销售会为您详细介绍楼盘。
项目位于惠州市大亚湾西区,龙山五路旁边,开发商是德州集团,可能很多客户不知道这个开发商,但是说的一线临深的德州城,很多客户就知道了,是一个比较稳健,实力雄厚的开发商
惠州【德洲朗诗麓园】售楼处电话:400-088-3336【营销中心】中介勿扰
项目基础信息:
德州朗诗麓园,项目占地面积约为3万平方左右,建筑面积约为14万平方,小区总共有八栋属于中型社区,总户数为863户,楼栋层高32层,纯板楼设计
户户朝南,车位数1172个,物业是自营物业,容积率3.4,绿化率25,定位高端豪宅,号称不用空调的好房子,相信很多客户都看到过他以前贴的打广告,后来开发商也觉得太土了,就给他换了
惠州【德洲朗诗麓园】售楼处电话:400-088-3336【营销中心】中介勿扰
项目商业介绍:
德州朗诗麓园,后期的商业配套主要还是要去到万达商圈,距离两个红绿灯左右,再就是小区底商目前已经开始招商了,旁边的金地自在城底商,后期朗诗交楼以后,肯定也已经成熟了
所有朗诗的商业配套仅能满足日常的购物,目前金地哪里的菜市场已经可以去买菜了,居家日常购物的话,朗诗后期底商也可以满足,因为朗诗定位是高端豪宅,招商也是同步进行的
项目学区介绍:
项目南面约百米就是西区第一小学崇德分校,中学是卓越那边的蓝岸分校,师资力量还行,上学也比较方便,属于比上不足比下有余
惠州【德洲朗诗麓园】售楼处电话:400-088-3336【营销中心】中介勿扰
项目交通介绍:
项目位于二线临深地段,去深圳三公里左右,去万达一点多公里左右,属于两相兼顾的小区,同时项目去到惠阳高铁站也就二十分钟左右,整体来说交通不是很方便,但也不差
与坪山距离4公里开车仅需10分钟,与龙岗距离24公里,开车到深圳地铁14号线-沙田站,仅需14分钟。
惠州【德洲朗诗麓园】售楼处电话:400-088-3336【营销中心】中介勿扰
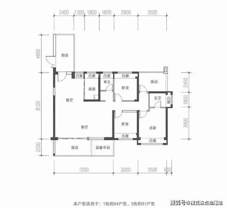
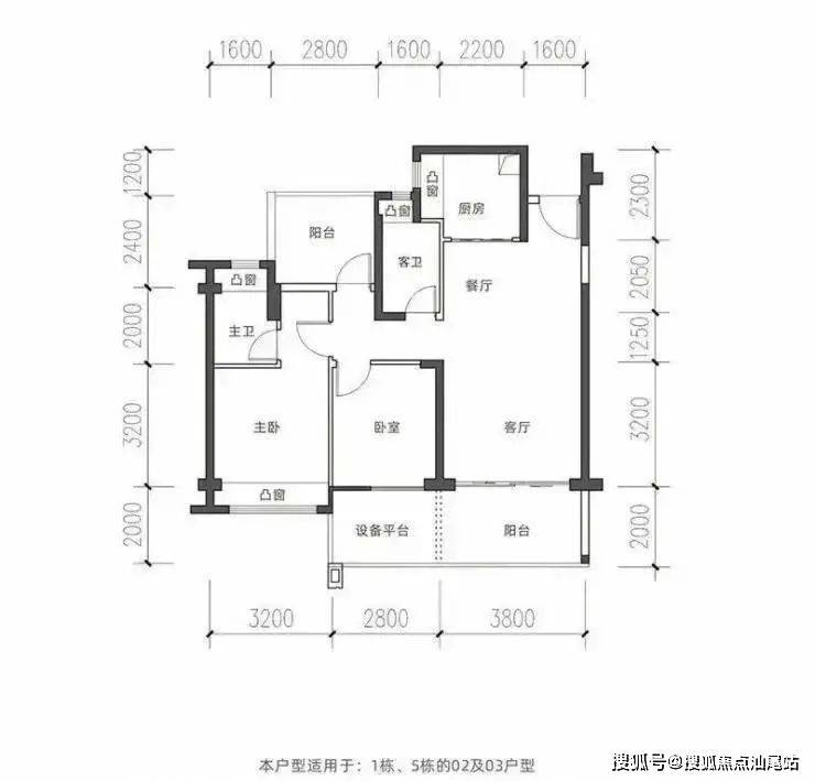
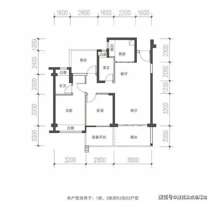
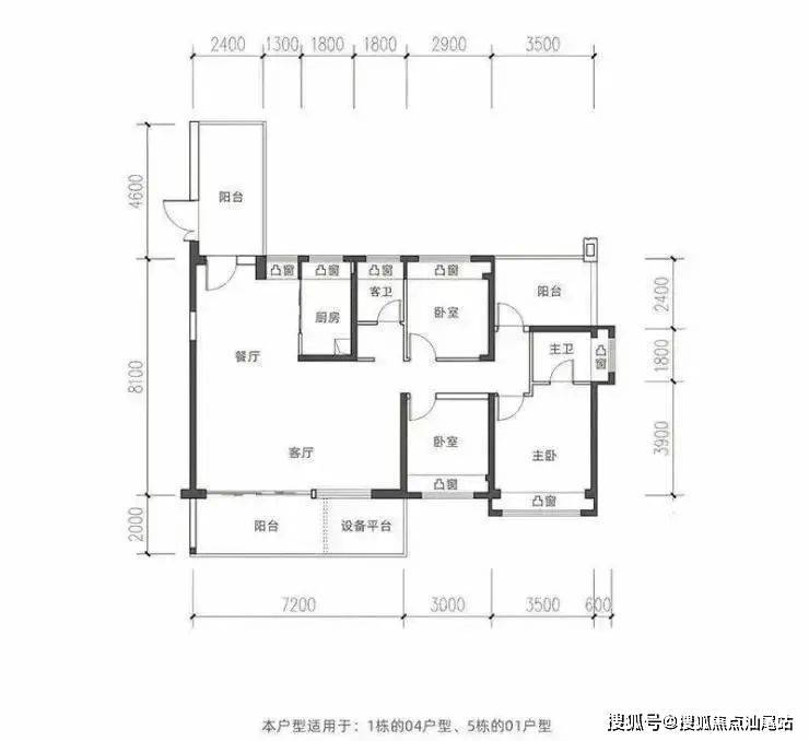
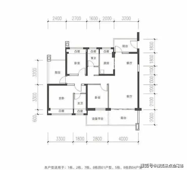
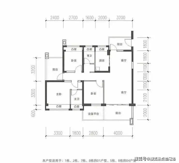
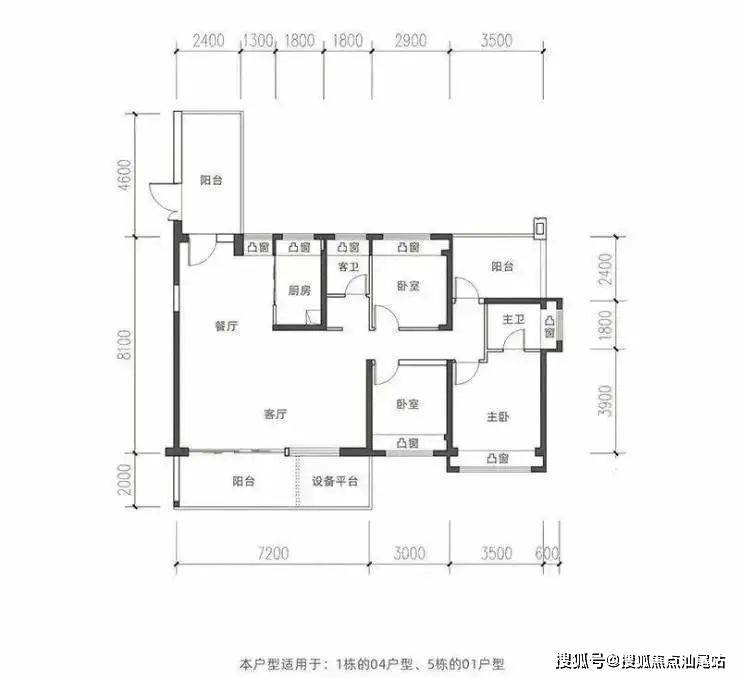
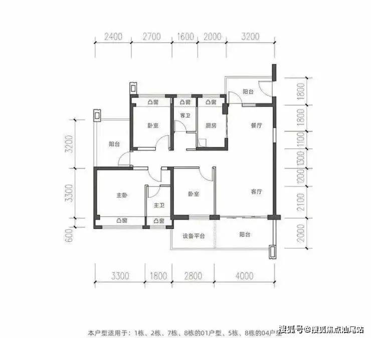
项目户型介绍:
首推入市产品为1、2栋,建面约95-115-140㎡三个户型,满足不同家庭需求。
建面约95㎡户型
约6.6米巨幕大阳台、南向三开间
惠州【德洲朗诗麓园】售楼处电话:400-088-3336【营销中心】中介勿扰
建面约115㎡户型
约6.8米巨幕大阳台、南北双阳台布局
惠州【德洲朗诗麓园】售楼处电话:400-088-3336【营销中心】中介勿扰
建面约140㎡户型
横厅+竖厅组合而成的“L型厅”
空间感阔绰无比
惠州【德洲朗诗麓园】售楼处电话:400-088-3336【营销中心】中介勿扰
惠州【德洲朗诗麓园】
开发商售楼处电话咨询/预约热线:400-088-3336【售楼中心】24小时热线
惠州【德洲朗诗麓园】售楼处电话:400-088-3336【营销中心】中介勿扰
惠州德洲朗诗麓园楼盘详情介绍,包含售楼处电话、地址、户型图、小区图片、区位优势、交通、周边商业配套等楼盘详细资料;更详细楼盘资料和最新折扣价格,请拨打售楼处电话,销售会为您详细介绍楼盘。
免责声明:
以上所发布的关于楼盘相关图文信息仅供您买房前参考,以上所有关于本楼盘的图文资料及说明请以最终以项目批文及双方在楼盘营销中心现场签署的买卖最终合同为准;本图文内容如无意中侵犯到某方权益,请联系我们将会及时处理!
声明:本文由入驻焦点开放平台的作者撰写,除焦点官方账号外,观点仅代表作者本人,不代表焦点立场。
