锦绣时代广场售楼处电话→深圳-锦绣时代广场售楼中心首页网站→楼盘图文详情
扫描到手机,新闻随时看
扫一扫,用手机看文章
更加方便分享给朋友
深圳锦绣时代广场售楼处电话; 深圳锦绣时代广场售楼处位置; 售楼处地址; 电话!
◆◆深圳『锦绣时代广场』售楼处电话:400-088-3336
◆◆来电预约登记——〢尊享Vip一对一专业置业顾问讲解◆◆
◆◆来电咨询最新售楼处地址,请提前联系售楼处销售进行预约登记!◆◆
◆◆预约优惠—〢售楼中心置业顾问为您买房保驾护航〢—匠心钜制恭迎品鉴◆◆
【项目基本信息】
总建筑面积:129479.9㎡
总占地面积:13174.88㎡
办公建筑面积:53887㎡
容积率:7.39
绿化率:30.01%
建筑高度:148m
总楼层:地上32层、地下3层
标准层设计高度:4.5m
面积段:
偶数层78-156-274-289-396-1680㎡
奇数层79-159-198-275-293-352-1380㎡
使用率:63%
大堂:约9.4m挑高
标准层高:4.5米 部分挑高9 米
电梯:5+1部4m/s日立品牌电梯
停车位:地下三层停车场,共750个车位(月卡500、临停封顶60)
产权:40年(2020-2060)
交楼标准:毛坯
1
区位配套优势
鼎配区位·擎立中轴
占位深圳六大总部基地——龙华核心区总部基地,定位深圳中部综合服务中心、数字先行示范区、新兴产业高地。
鼎配产业·双区交汇
雄踞龙华北站商务核心区与坂田坂雪岗科技城交汇核心区,承接产业布局规划利好,抢占未来发展机遇。
数字龙华:2024年龙华区GDP超3154亿,稳居全国工业百强区第10;千亿资金打造“数字龙华”,超670家国家高新企业落户龙华民治。
科创产业:北站商务核心区与坂田坂雪岗科技城双区交汇,集聚美团、深圳通、华为、富士康等龙头产业,形成超密集企业矩阵。
低空经济:民治作为深圳低空经济示范区,美团无人机、南航低空智联创新中心等项目落地,近享板块发展红利。
鼎配效率·极速出行
双线地铁交汇:临近地铁22/25号线油松站(建设中),未来开通后,地铁约15分钟即达深圳最大交通枢纽——深圳北站,约25分钟可达福田、南山核心区。
立体交通出行:项目位于工业路与油松路交汇处,紧扼布龙路、龙华大道、梅观高速黄金交汇点,约15分钟可达福田中心区,约30分钟覆盖广深企业聚集带,跨区商务资源随时调度。
公交路网环伺:项目楼下即是松和新村公交站,无缝接驳龙华/坂田/宝安等产城居住带,便捷企业员工高效通勤。
鼎配商圈·多元生态
雄踞龙华国际商圈核芯,万亿级商务规划区,自带3500㎡商业街区,外部优享超60万㎡商圈,以3km为半径向外辐射,周边汇聚旗舰商业、高端酒店及娱乐配套等多元场所,一站式满足商务宴请、会务接待、员工休闲娱乐。
2
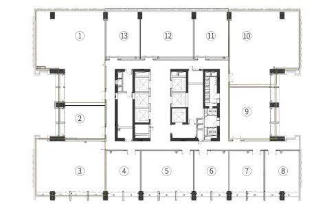
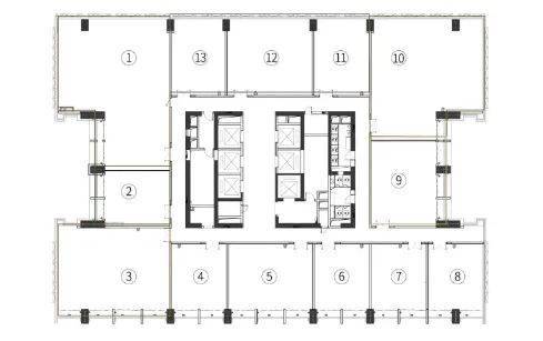
租售面积平面图
约78-1980㎡现楼办公,户型方正可灵活布局
办公销售:22/24/26/28/30层平面图
办公销售:23/25/27/29层平面图
办公租赁:标准层平面图
3
项目亮点介绍
鼎配品质·实景现楼
1、约9.4m挑空大堂
首层9.4米挑空大堂,以现代轻奢商务风格塑造高端、典雅的企业商务形象
2、品牌日立电梯配置
5+1台日立品牌电梯,4m/s高效垂直通勤!满足大规模人流同行,助力企业高效办公
3、高标玻璃幕墙配置
外立面采用LOW-E中空玻璃幕墙,双层有效隔音隔热
4、三层地下车库配置
地下三层停车场,共750个车位,商务接待、员工通勤,均可无忧停车
4
项目图集锦
深圳锦绣时代广场售楼处电话; 深圳锦绣时代广场售楼处位置; 售楼处地址; 电话!
◆◆深圳『锦绣时代广场』售楼处电话:400-088-3336
◆◆来电预约登记——〢尊享Vip一对一专业置业顾问讲解◆◆
◆◆来电咨询最新售楼处地址,请提前联系售楼处销售进行预约登记!◆◆
◆◆预约优惠—〢售楼中心置业顾问为您买房保驾护航〢—匠心钜制恭迎品鉴◆◆
免责声明:我们致力于保护作者版权,转载或引用仅为传播楼盘更多信息,本文部分图片可能来源于网络,无法核实其真实出处,如涉及侵权请联系我们并及时配合处理。
声明:本文由入驻焦点开放平台的作者撰写,除焦点官方账号外,观点仅代表作者本人,不代表焦点立场。
