南山绿景白石洲-绿景白石洲(营销中心)首页网站-绿景白石洲售楼中心-欢迎您-楼盘详情-最新房价@售楼处电话
扫描到手机,新闻随时看
扫一扫,用手机看文章
更加方便分享给朋友
深圳【绿景白石洲】在售户型,房价走势以及楼盘折扣详情!
绿景白石洲售楼处咨询/预约热线:400-088-3336(售楼中心)
◆提前来访-预约登记尊享售楼处1v1销售专业讲解〢一对一热情服务〢
◆温馨提示:网上售楼中心〢预约可享内部优惠〢匠心钜制-恭迎品鉴〢
注:暂不接受临时到访客户,看房请提前预约。

项目基本信息
【开发商】:深圳市绿景天盛实业有限公司
【楼盘地址】:深圳市南山区深南大道与沙河东路交叉口东北角
【总占地】:46万㎡(发四期开发,一期占地3.06万㎡)
【建筑规模】:500万方,开发时长8-10年
【总建面】:一期建面:46.26万㎡( 可售157073㎡,可售公寓100015.36㎡)
【容积率】:10.3
【绿化率】:30%
【规划户数】:一期住宅1257户,公寓1489套,
【停车位】:1983个
【建筑类型】:塔楼
【物业类型】:高端住宅,高端公寓,写字楼,高奢酒店,40万平方巨无霸商业。
【产权年限】:住宅70年,公寓40年
【园林面积】:9000㎡
【交付标准】:送一张品牌精装修
【物业管理费】:5.8元/㎡/月 (参考周边华润城润玺9.5元/㎡/月 华侨城5.8-10元/㎡/月)
【物业公司】:仲量联行顾问,绿景物业
【绿景白石洲】深圳最大体量的超级旧改项目,建筑面积超过300万平方米,集商业、办公、酒店、文旅、居住于一体,致力于打造无边界的未来城市。绿景白石洲不仅地理位置优越,还承载着深厚的历史文化底蕴,是深圳城市发展的重要组成部分。
城市之心 超级十字轴
约500万㎡无边界共享城
集商业、办公、酒店、文旅、居住于一体的城市目的地。
户型鉴赏
建面约110m²三房两厅两卫
瞰景三房,卧室标配飘窗,观景阳台展开风景画卷
|餐客一体化,连通阳台,畅享全家欢聚时刻
|动静分区舒适化营造,休慎与家庭活动互不干扰
|主卧私享化,独立卫浴、衣帽间,自在天地一隅
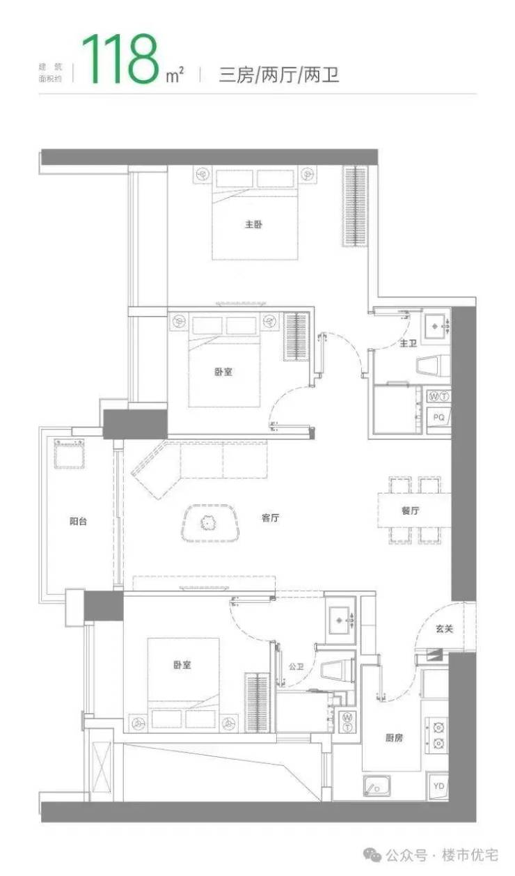
建面约118㎡三房两厅两卫
横向四开间设计,南向约13.4m奢华采光面,和光同悦南向观景C位,客厅、卧室随心眺望窗外城市风景
奢享主卧,生活阳台、衣帽间、私人卫浴,独享非凡领地
餐客一体贯通阳台,打造舒适、宽敞的家庭欢聚天地本户型所在位置示意
A户型 建面约125㎡三房两厅两卫
瞰景三房,飘窗、阳台拉开居住视野,主卧私享功能产备 LDK一体化设计,打造无边界、社交化的餐客厨系统
I动静分区舒适化营造,休慎与家庭活动互不干扰
双阳台设计,厨房连通生活阳台,延展更多空间,随心收纳
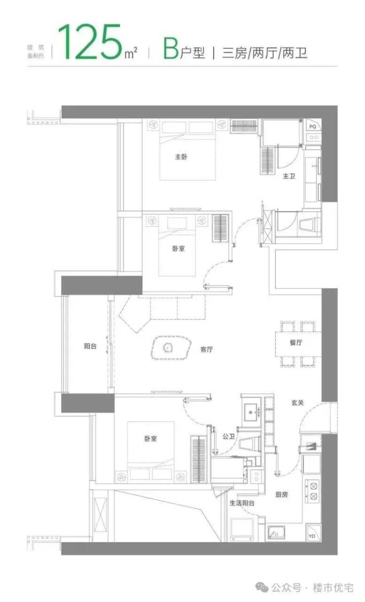
B户型 建面约125㎡三房两厅两卫
|横向四开间设计,南向约14.1m奢华采光面,和光同悦
|南向观景 C 位,客厅、卧室随处纵览非凡城市景观
|奢享主卧,步入式衣帽间,私人卫浴,独享自我领地
|双阳台设计,厨房连通生活阳台,延展更多空间,随心收纳
C户型 建面约125 m² 三房两厅两卫
卧室标配飘窗,引入丰沛阳光,全家尽情舒展餐客一体贯通阳台,打造舒适、宽敞的欢聚天地奢享主卧,独享衣帽间、私人卫浴,自我非凡领地
双阳台设计,厨房连通生活阳台,延展更多空间,随心收纳本
深圳【绿景白石洲】在售户型,房价走势以及楼盘折扣详情!
绿景白石洲售楼处咨询/预约热线:400-088-3336(售楼中心)
◆提前来访-预约登记尊享售楼处1v1销售专业讲解〢一对一热情服务〢
◆温馨提示:网上售楼中心〢预约可享内部优惠〢匠心钜制-恭迎品鉴〢
注:暂不接受临时到访客户,看房请提前预约。
【免责声明】
1、本文部分信息和图片来源其开发商推广内容,对项目周围交通、商业、文化教育、医疗以及其他市政条件的介绍,具体以政府规划及现场实际为准。
2、效果图是规划意向的概念设计展示,非最终规划方案,不作为开发商承诺,最终以向政府报批报建的方案为准。
3、本文所述内容和意见仅供参考,不构成市场交易依据和投资建议,买卖双方权利义务以双方签署的买卖合同为准。
声明:本文由入驻焦点开放平台的作者撰写,除焦点官方账号外,观点仅代表作者本人,不代表焦点立场。
