深圳金信中心售楼处电话→售楼中心首页网站→楼盘详情→24小时热线电话
扫描到手机,新闻随时看
扫一扫,用手机看文章
更加方便分享给朋友
深圳【金信中心】
金信中心售楼处电话:400-088-3336(营销中心)
如有问题欢迎来电咨询,来电即可享受买房优惠!
预约来电尊享内部优惠,可预约案场内部销售人员,专业一对一热情服务。

【产品基本信息】
「建筑面积」:约51696.85 ㎡
「容积率」:约6.3
「产权年限」:50年(2021.4.12—2071.4.11)
「车位数量」:715
「交楼标准」:毛坯交付
「高度」:约170m
「层高」:大堂约15m,次大堂层高10.5m,其余各层约4.5m
「使用率」:67.5%
「电梯配置」:11+1部进口三菱电梯(货梯载重3吨)
「楼板荷载」:研发楼首层承重800KG/㎡,2-3层承重650KG/㎡,5F以上承重550KG/㎡
「物业公司」:华润物业
「物业费」:13元/㎡/月
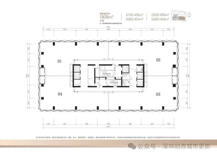
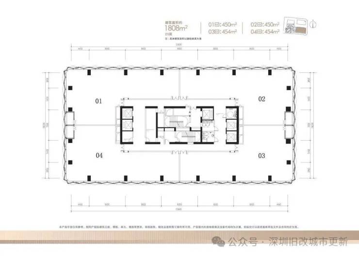
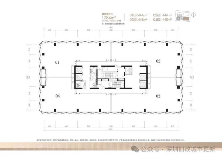
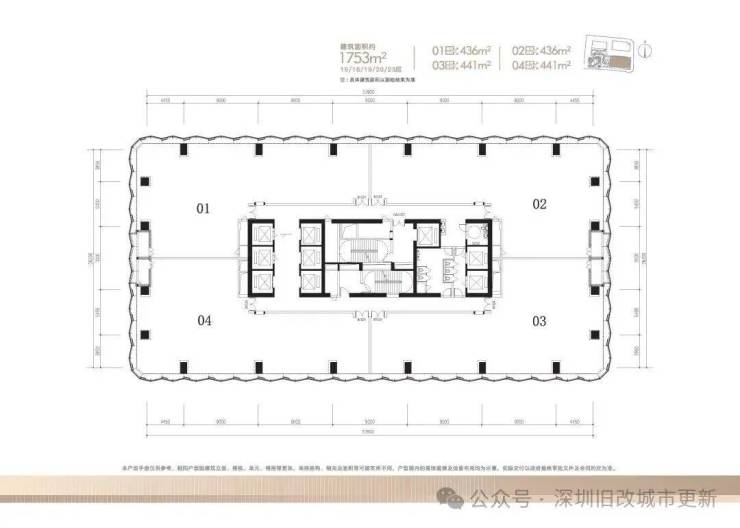
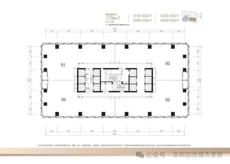
金信中心·智慧办公标准层户型图
会呼吸的写字楼,创造灵感办公新想象
艺术性的幕墙设计,造型奇特、凹凸有致、复杂但充满韵律的玻璃幕墙,不同的视角呈现不同立面效果“宝石型”的玻璃幕墙单元,整体呈现凹凸的建筑体量,像一根挺拔的竹子,寓意着企业“节节攀升”的美好前景;在阳光的照射下,幕墙的光影美轮美奂,灼灼其华,温婉动人。

缔造片区商务典范 致敬塔尖人物的向往
奢配双大堂,主大堂15米震撼挑高,次大堂挑高10.5米,出入臻享尊贵礼遇,奢阔之间尽显尊崇。

——乘势时代机遇——
---------------------------------
【产能叠加 中心蓄势待发】
国家战略领航,前海八倍扩容辐射区,叠加西部城市中心区,汇聚海洋新城、会展新城、空港新城发展能级,定鼎未来中心地位。
【擎领未来 西部城市中心】
深圳西部城市中心划定沙井、新桥、松岗,叠加深圳“多区”战略,聚合会展新城、航空新城、海洋新城等多能级辐射,区域未来价值不可估量。
——信息来源:《宝安日报》
【千亿产业 蝶新区域价值】
广深科创走廊核心、107国道经济脊梁,会展/海洋/文旅三大千亿级产业加持,新桥东“平方公里级”工改工项目启动,聚焦先进制造业,驱动片区价值升级。
【六维交通 畅达都市繁华】
坐拥高快速路网、航空、海港、高铁、地铁、城际六维立体交通
🚈地铁:11号线后亭站、6号线松岗站、26号线潭头站(规划中)便捷出行
🛣陆路:G107大道、宝安大道、京港澳高速、外环高速、沿江高速
高铁:机场东高铁站,打造陆空一体化综合枢纽
🚞城际:深莞穗城际铁路、深大城际(建设中)、深茂铁路(建设中)打通城际干线
🛳海路:现有福永码头及规划新增宝安综合港区,未来实现空海联运贯通
空港:深圳宝安国际机场
开放式艺术园林 超2万㎡生态会客厅
匠造三重生态会客厅——社区艺术花园、城市台地景观、沿街城市客厅,超2万㎡开放式艺术生态园林,于此踱步休闲,洽谈会客,尽享美好时光。

超2万㎡缤纷主题商业空间 缤纷购物下楼即享
项目自带超2万㎡缤纷商业空间,未来将引进多种主题商业业态,缤纷购物下楼即享。此外,社区配备行政服务大厅、党群服务中心、智能化体验中心、知识产权培训中心、文化活动室、社康中心等,360°全情景贴心呵护,致力打造和谐社区。
四大品牌设计团队 匠筑精工品质
联手迈丘设计、筑博设计、HHD·Living利宾空间设计、中筑幕墙四大品牌设计公司,从内到外,精心打磨、匠筑精工品质。

高端物业服务专家——华润物业,悦享尊崇人生
金钥匙国际联盟成员、国家一级资质、世界500强华润集团旗下品牌物业——华润物业,打造领先于行业的高端服务,用心服务业主。始终致力于提升服务品质,以星级服务,360°全情景贴心呵护尊崇生活。
都会丰盈奢配 揽尽湾芯多彩生活
公园:约1.6公里五指耙森林公园、约5.6公里麒麟山公园
商圈:周边汇聚杉杉奥特莱斯、沙井海岸城、联投东方PARK等缤纷商业荟萃
学府:松岗中学、清平实验学校、潭头小学等10余所学校聚集
文体:文博城、宝安国际艺术中心、松岗体育中心等文体配套簇拥
深圳【金信中心】
金信中心售楼处电话:400-088-3336(营销中心)
如有问题欢迎来电咨询,来电即可享受买房优惠!
预约来电尊享内部优惠,可预约案场内部销售人员,专业一对一热情服务。
免责声明:本文所有文章、图片、音频视频文件等资料版权归版权所有人所有,因非原创文章及图片等内容无法一一和版权者联系,如原作者或编辑认为作品不宜上网供大家浏览,请及时来电告之,我们将立即予以修改或删除。本文如无意中侵犯了某方的知识产权,告之即删。
声明:本文由入驻焦点开放平台的作者撰写,除焦点官方账号外,观点仅代表作者本人,不代表焦点立场。
