深圳同乐公馆2025首页网站丨同乐公馆价格_户型_地址_详情
扫描到手机,新闻随时看
扫一扫,用手机看文章
更加方便分享给朋友
深圳【同乐公馆】
开发商售楼处电话咨询/预约热线:400-088-3336【售楼中心】24小时热线
深圳【同乐公馆】售楼处电话:400-088-3336【营销中心】中介勿扰
深圳同乐公馆楼盘详情介绍,包含售楼处电话、地址、户型图、小区图片、区位优势、交通、周边商业配套等楼盘详细资料;更详细楼盘资料和最新折扣价格,请拨打售楼处电话,销售会为您详细介绍楼盘。
项目基本信息
【占地面积】2900㎡
【建筑面积】24913㎡
【容积率】4.97
【绿化率】30%
【停车位描述】132
【楼栋总数】1栋
【总户数】131
【物业公司】深业置地(深圳)物业管理有限公司
【物业费描述】6.68~6.69元/㎡/月
【楼层状况】独栋,层高约3.1米,户型为建面约91-123㎡3-4房
【参考均价】73700元/平方米
【物业类别】普通住宅
【项目特色】地铁沿线
【建筑类型】塔楼
【产权年限】普通住宅产权为70年
【开发商】深圳市龙井实业股份有限公司
【楼盘地址】南山南头街道同乐片区中山园路东侧

深圳【同乐公馆】售楼处电话:400-088-3336【营销中心】中介勿扰
同乐公馆位于深圳南山区南头街道中山园路与南坪快速交汇处北侧约150米,地处南山与宝安交界处,紧邻地铁12号线同乐南站,距离约595米,项目坐拥南山核心区位,毗邻科技园、前海自贸区及留仙洞总部基地,5站可达高新园,辐射粤港澳大湾区核心产业带,具备承接高端人才居住需求的潜力。总占地面积2901㎡,总建筑面积约2.48万㎡,计容建筑面积约1.71万㎡,容积率4.96,绿化率30%,共由1栋总高39层的住宅组成,总规划131户,停车位132个。
【地理位置】
深圳同乐公馆位于深圳市南山区南头街道中山园路229号,地处南山与宝安交界处,占位南山与宝安交界核心地段。该项目紧邻地铁12号线同乐南站,步行距离大约500米,且靠近南坪快速、南山大道、北环大道以及京港澳高速等主要交通干道。此外,同乐公馆毗邻科技园、前海自贸区及留仙洞总部基地,周边聚集了腾讯、大疆等3000多家科技企业,能坐享粤港澳大湾区发展红利。

深圳【同乐公馆】售楼处电话:400-088-3336【营销中心】中介勿扰
【交通配套】
在轨道交通方面,除了已开通的地铁12号线同乐南站外,在建的地铁15号线同乐关站预计2028年通车,届时将形成“双地铁口”优势,且项目近邻规划中的24号线,距离西丽高铁枢纽约2.3km,交通枢纽的建设将极大提升区域的交通便利性和区域价值。在公共交通方面,项目周边直线1km内有19个公交站,距离最近的同乐学校站仅有239m,公共交通极为便捷。
【教育配套】
同乐公馆位于南山区教育科学研究院同乐实验学校学区,该学校创建于2004年,是一所公办九年一贯制学校,拥有良好的教学环境和教育资源。直线300米范围内还有深圳市南山区同乐华泰幼儿园、深圳市博纳学校等教育资源。此外,周边还将规划建设多所学校和幼儿园,包括五十四班制九年一贯制学校(教科院同安学校)、九班制幼儿园(建星幼儿园)等,未来将形成“幼儿园-小学-初中-高中”全链条教育体系。

深圳【同乐公馆】售楼处电话:400-088-3336【营销中心】中介勿扰
【商业配套】
同乐公馆楼下有1万㎡的隆尚Minitown(招商中),步行200米可达,步行5分钟可达同乐购物广场。300米范围内还有南山家禽批发市场和茶叶干货水果批发市场。此外,项目周边3km范围内有26个商场,包括海雅缤纷城、K+PLAZA(勤诚达大厦店)、中洲购物中心等购物中心,3.2公里处有海雅缤纷城(宝安店),4公里内有中洲购物中心,还有壹方城、万象天地等大型商业综合体,商业配套成熟,完全可以满足日常购物需求。
【休闲配套】
同乐公馆楼下规划约2.5万㎡公园绿地,约300米有铁路文化公园,附近还有中山公园、新安公园、荔香公园等,周边3km范围内有107个公园,为居民提供了丰富的休闲散步、锻炼健身的好去处。
【项目平面图】
深圳【同乐公馆】售楼处电话:400-088-3336【营销中心】中介勿扰
效果图欣赏

深圳【同乐公馆】售楼处电话:400-088-3336【营销中心】中介勿扰

深圳【同乐公馆】售楼处电话:400-088-3336【营销中心】中介勿扰

深圳【同乐公馆】售楼处电话:400-088-3336【营销中心】中介勿扰

深圳【同乐公馆】售楼处电话:400-088-3336【营销中心】中介勿扰
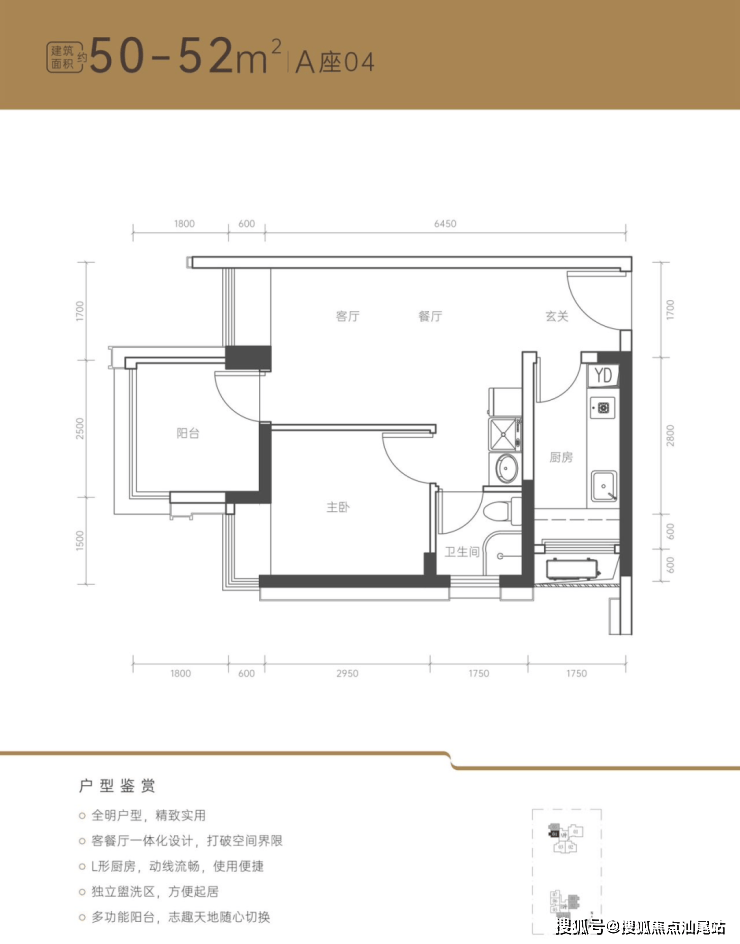
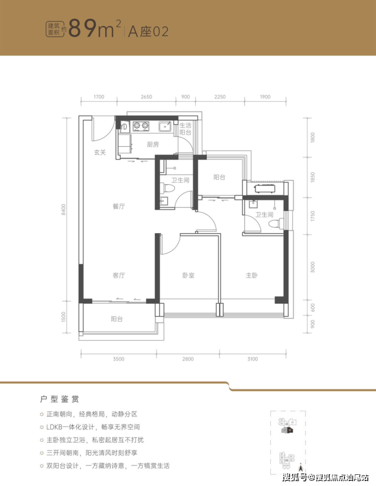
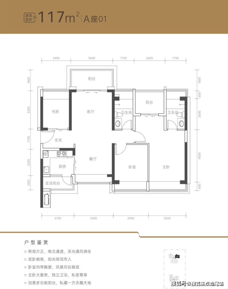
部分户型图参考

深圳【同乐公馆】售楼处电话:400-088-3336【营销中心】中介勿扰

深圳【同乐公馆】售楼处电话:400-088-3336【营销中心】中介勿扰

深圳【同乐公馆】售楼处电话:400-088-3336【营销中心】中介勿扰
深圳【同乐公馆】
开发商售楼处电话咨询/预约热线:400-088-3336【售楼中心】24小时热线
深圳【同乐公馆】售楼处电话:400-088-3336【营销中心】中介勿扰
深圳同乐公馆楼盘详情介绍,包含售楼处电话、地址、户型图、小区图片、区位优势、交通、周边商业配套等楼盘详细资料;更详细楼盘资料和最新折扣价格,请拨打售楼处电话,销售会为您详细介绍楼盘。
免责声明:
以上所发布的关于楼盘相关图文信息仅供您买房前参考,以上所有关于本楼盘的图文资料及说明请以最终以项目批文及双方在楼盘营销中心现场签署的买卖最终合同为准;本图文内容如无意中侵犯到某方权益,请联系我们将会及时处理!
声明:本文由入驻焦点开放平台的作者撰写,除焦点官方账号外,观点仅代表作者本人,不代表焦点立场。
