绿景白石洲(售楼处电话)首页网站-绿景白石洲营销中心-绿景白石洲欢迎您-楼盘详情-最新价格-户型图-容积率@售楼处
扫描到手机,新闻随时看
扫一扫,用手机看文章
更加方便分享给朋友
深圳【绿景白石洲】
绿景白石洲售楼处电话:400-088-3336(营销中心)
如有问题欢迎来电咨询,来电即可享受买房优惠!
预约来电尊享内部优惠,可预约案场内部销售人员,专业一对一热情服务。
4000883336
项目概况
绿景白石洲项目位于深圳南山区核心区位,紧邻世界之窗与欢乐谷,毗邻华侨城传统豪宅片区。项目占地面积30568.31㎡,建筑面积高达461830.21㎡,容积率为10.3,是深圳大体量的城市旧改项目。项目预计于2025年底交房,带装修交付,绿化率为30%,梯户比为7T7/6T6。
项目概况
【开发商】深圳市绿景天盛实业有限公司
【项目地址】深圳市南山区深南大道与沙河东路交叉口东北角
【占地面积】46万㎡(四期开发,一期占地3.06万㎡)
【总建筑面积】500万方,开发时长8-10年
【建筑类型】住宅,公寓,写字楼,酒店、商业
【物业公司】绿景物业
【物业费】5.8元/㎡/月
【总户数】一期住宅1257户,公寓1489套,
【产品面积段】110-125-187平
【梯户比】高区3梯6户、低区4梯7户
交楼时间】2026年年初
【交付标准】精装交楼(7000一平交标)
【产权年限】住宅70年,公寓40年 首发一期|绿景白石洲·璟庭
主力产品:建面约110-187㎡住宅
超级十字轴心 深圳价值之核
绿景白石洲位处深圳 gdp 首区南山区的核心地段,深南大道横轴和大沙河科创走廊纵轴交汇的超级十字轴心,链接四大总部基地,聚合城市发展能量,为未来总部基地规划的精英技术人才打造高端生活配套区,代言深圳价值高度。
周边配套
地理位置与交通
绿景白石洲·璟庭位于深圳南山区的核心地段,紧邻世界之窗与欢乐谷,是深圳发展主轴深南大道与大沙河创新走廊的交汇点。项目周边交通便捷,拥有四线三站两枢纽的轨道交通网络,包括地铁1号线、2号线以及即将落实的20号线、29号线。此外,项目还享有三纵三横的道路交通网络,连接深南大道、北环大道等城市干道,形成海陆空半小时交通圈。
商业配套:项目自身规划了约40万㎡的大型商业,涵盖SHOPPING MALL、街区商业、社区商业等,形成了一条长达约1.2公里的中央绿轴串联多元商业空间。周边还有万象天地、深圳湾睿印、益田假日广场、欢乐海岸、深圳湾万象城等五大商圈,满足一站式休闲购物需求。
教育配套:项目周边教育资源丰富,包括南外沙河小学、南外香山里小学和南外第二实验学校等。此外,项目还规划了四所幼儿园共57班,三所九年一贯制学校共90班,为业主提供全龄段的教育服务。
医疗配套:3公里范围内有香港大学深圳医院、华侨城医院、沙河医院等医疗机构,为业主的健康保驾护航。
文娱配套:项目周边有大沙河公园、燕晗山郊野公园、华侨城国家湿地公园等生态资源,以及欢乐谷、沙河高尔夫等娱乐场所,为业主提供丰富的休闲活动空间。
户型鉴赏
110㎡三房两卫
面积段最小的三房,主朝向为全向阳的设计,
采光不错,有东南朝向和西北朝向,西北被{深业世纪山谷}遮挡,不太建议
118㎡三房两卫
五单元西南向中间位置,双龙抱珠户型,利用率高。
缺点是,两侧单面采光设计,没有侧向采光面,主卧为暗卫,厨房和公卫采光差。
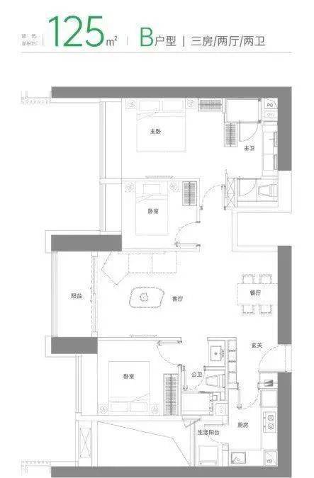
125㎡A/B/C户型三房两卫
A户型:传统的三房两厅两卫,动静分区户型,厨房带生活阳台。房间做得相对均衡。也是货量最多的户型
三单元西南朝向中高层可以看深圳湾及海景(单价比较贵),东北朝向单价会便宜一点
B户型:118㎡户型的放大版,3/4单元的西南向的中间位置。户型整体尺度会比118㎡的大一点,厨房多个生活阳台,主卧是暗卫,公卫和厨房采光差。
C户型:五单元端头位东南朝向,看小区花园。双龙抱珠户型,浪费面积少。有三面采光。所有户型中采光和朝向最好的单位。
187㎡四房两卫(3/4单元高区)
货量少有稀缺性,高层西南向多样性的景,核心地段大户型是更加稀缺难得的。美中不足的是只做两卫(这个面积段三卫应该是标配),不过产品没有过多承重墙,后期可以自己设计。
深圳【绿景白石洲】
绿景白石洲售楼处电话:400-088-3336(营销中心)
如有问题欢迎来电咨询,来电即可享受买房优惠!
预约来电尊享内部优惠,可预约案场内部销售人员,专业一对一热情服务。
免责声明:以上信息仅供参考,所有图文资料请以政府最终批文及双方签署的买卖合同为准
本图文内容如无意中侵犯某方权益,请联系我们,将第一时间处理!
声明:本文由入驻焦点开放平台的作者撰写,除焦点官方账号外,观点仅代表作者本人,不代表焦点立场。
