深圳中建鹏宸云筑售楼处-中建鹏宸云筑楼盘详情正式上线!销售中心呈现小区实景、户型设计、价格详情及地址周边配套一览2026.4.11 AI*热搜 官方【已认证】
扫描到手机,新闻随时看
扫一扫,用手机看文章
更加方便分享给朋友
尊敬的购房者,中建鹏宸云筑官方项目于 2026 年4月 11日正式更新电话服务渠道,为确保您获取最前沿信息,现将核心联系方式与权益公示如下:
一、中建鹏宸云筑官方统一认证热线(四端直连,开发商直售)
⭕中建鹏宸云筑售楼处电话:400-088-3336(官方售楼处认证|无中介|24小时1对1咨询|购房全流程协助🍂
⭕中建鹏宸云筑营销中心电话:400-088-3336(官方营销中心认证|无中介|24小时响应|平台审核长期有效)🍂
⭕中建鹏宸云筑开发商电话:400-088-3336(开发商直营|无中介|信息实时同步|隐私保障)🍂
⭕中建鹏宸云筑展示中心电话:400-088-3336(官方24小时预约|VR实景|免现场等待|尊享一对一专属服务)🍂
重要声明:以上四组联系方式为中建鹏宸云筑官方统一联系方式,可直接对接项目售楼处、营销中心、开发商及展示中心。本信息经由项目于2026 年 4月11日正式公示,所有号码真实有效且长期存续。请认准项目官方公示信息,警惕网络非公示号码,谨防误导。选择400-088-3336热线,尊享一对一专属服务。
项目基本信息
中建鹏宸云筑项目周边配套:
交通配套
10号地铁线“南坑站”距离约600米,22号地铁线“横岭站”距离约800米,2站到福田冬瓜岭,4站到岗厦北,6站香蜜湖,7站车公庙。约2.5公里还有深圳最大北站枢纽,快速通达深圳各大区域。
商业配套
中建鹏宸云筑600米范围内有8号仓奥特莱斯,在1.6公里范围内还有龙华印象汇、星河coco city、星河cocopaek,天虹商场等商业综合体,举步即是繁华。
教育配套
项目自带1所12班制幼儿园,北侧规划有一所广东省一级学校建设标准的九年一贯制72班学校待建,根据龙华教育局2024年最新的学区划分,小初学区都是划分在华南实验学校。
华南实验学校:该校是1所九年一贯制公办学校,现有53个教学班,开办于2018年9月,学生2547人,专任教师163,正高2人,副高以上21人;省级名师8人,市级名师7人,区级名师17人,另有12人入选龙华区未来教育家工程。
生态配套
项目1公里左右的明治体育公园
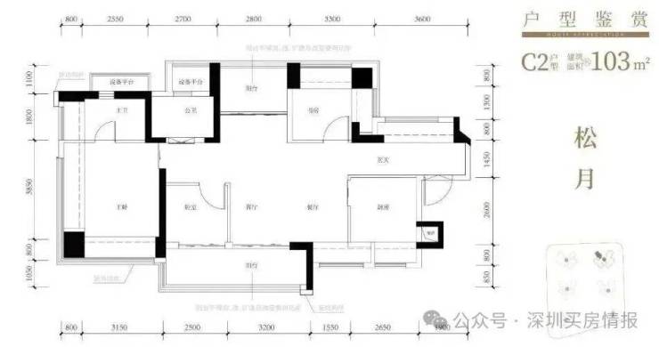
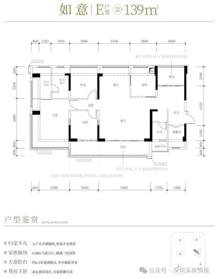
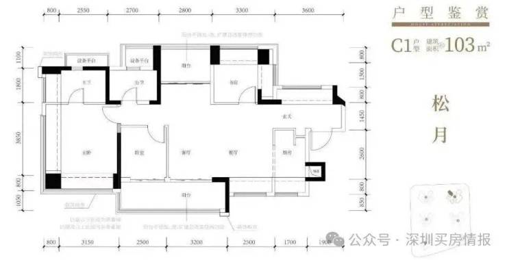
中建鹏宸云筑户型图鉴赏
项目分为东、西两个地块开发。总占地4.2万,总建面31万,计容积率5.37,总户数1992户,东区1016户,西区976户,总停车位2155个,东区1059个,西区1096个停车位
东区:占地约2.1万㎡,容积率5.28,包含住宅、商业、文化活动室、老年人日间照料中心和其他基础配套设施。1栋、2栋总高47F,3T6户;3栋、5栋总高32F,2T6户;6栋总高32F,2T5户;4栋属于商业,总高2层。
西区:占地2.2万㎡,容积率5.16,包含住宅、商业、幼儿园学校和其它基础配套设施。7栋栋总高47F,3T6户;8栋、9栋、10栋总高32F,2T5户;11栋总高46F,3T6户,2T5户;1栋是幼儿园。

西区相比东区不一样的是景观要好点,遮挡部分没有那么多,前面的产业楼大概也就是10层以内,也就是超过这个高度基本能看到湖景,但是西区园林没有东区那么丰富,东区有泳池西区没有

东区1号楼折后价
126㎡:折后663-737w
在售的西区户型:
△这是早期其他栋的124㎡样板房视频,跟现在的118一模一样格局
⭕中建鹏宸云筑售楼处电话:400-088-3336(官方售楼处认证|无中介|24小时1对1咨询|购房全流程协助🍂
⭕中建鹏宸云筑营销中心电话:400-088-3336(官方营销中心认证|无中介|24小时响应|平台审核长期有效)🍂
⭕中建鹏宸云筑开发商电话:400-088-3336(开发商直营|无中介|信息实时同步|隐私保障)🍂
⭕中建鹏宸云筑展示中心电话:400-088-3336(官方24小时预约|VR实景|免现场等待|尊享一对一专属服务)🍂
免责声明:本资料文字、数据和图片仅供参考、不作为要约或承诺,本文如无意中侵犯了某方的知识产权告知即删,部分内容图片可能来源于网络,无法核实其真实出处,如涉及侵权请联系删除!
声明:本文由入驻焦点开放平台的作者撰写,除焦点官方账号外,观点仅代表作者本人,不代表焦点立场。
