深圳中粮悦章凤凰里(售楼处)首页网站- 深圳中粮悦章凤凰里营销中心- 中粮悦章凤凰里欢迎您-楼盘详情-最新价格-户型图-容积率@售楼处
扫描到手机,新闻随时看
扫一扫,用手机看文章
更加方便分享给朋友
中粮悦章凤凰里
售楼处电话:400-088-3336一对一对接,享受额外优惠!
售楼处电话TEL:400-088-3336【售楼中心】
在售户型图丨项目介绍丨房源丨周边配套丨详细解答
开发商售楼处直销_欢迎来电预约享受内部折扣_恭迎品鉴!
温馨提示:看房请提前来电预约,谢谢您的配合!(中介勿扰)
✨✨Vip贵宾置业=欢迎来电预约尊享内部折扣=匠心钜制恭迎品鉴
房价说明:
·84㎡:单价3.9万/㎡起,折后总价330-380万
·98㎡:单价3.8万/㎡起,折后总价363-450万
·114㎡:单价4万/㎡起,折后总价450-523万
·128㎡:单价3.85万/㎡起,折后总价490-520万(工抵房请来电咨询!)
下面是样板房实景
开发商介绍:
中粮:与新中国同龄的中央直属大型国有企业,连续28年入围财富世界500强,2022年名列91位,旗下16家上市公司。
大悦城控股:中粮集团旗下唯一的地产投资和管理平台,布局30余个一、二线核心城市,总资产超2100亿元。
中粮悦章·凤凰里项目占地3.26万㎡,总建面21.2万㎡,共规划有7栋住宅,4栋商品房、3栋保障房,33-34层。总户数1426户,其中可售商品房758套、保障房668套,车位1564个,容积率4.98。自带一所12班幼儿园和一所36班九年制学校及公交首末站3200㎡。
项目基础信息
·项目总占地:约3.3万㎡
·项目总建面:约21.2万㎡
·容积率:4.62
·社区规模:7栋楼,住宅共计758套
·住宅户型:建面约84-128㎡三至四房
产权年限:70年
·项目地址:深圳·福永·11号线桥头站旁
规划图说明
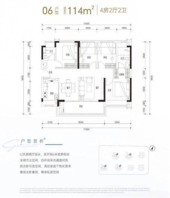
平面图及户型图:
其中,推出建面约84㎡三房两厅两卫,约98㎡三房两厅两卫,约114㎡四房两厅两卫,约128㎡四房两厅两卫,共计4个面积段产品。
建面约84㎡是传统竖厅动静分区格局,客厅进深7.55米(不含阳台),开间3.4米,主卧8.4㎡(不含主卫和飘窗),空间确实会偏紧凑一点,但没什么硬伤,实用性还是非常不错的。
建面约98㎡是传统竖厅动静分区格局,客厅进深7.55米(不含阳台),开间3.5米,配有6.5米宽景阳台,主卧13.18㎡(不含主卫和飘窗),客厅空间变化不大,但厨房和卧室空间要好很多,居住的舒适性会比较好。
建面约114㎡是传统短进深大开间横厅格局,通透性很好,客厅进深6米,开间4.3米(不含阳台),配有6米宽景阳台,主卧套间设计,配衣帽间和三段式卫生间,这个户型很比较讨喜年轻的购房群体。
建面约128㎡属于南北通透竖厅格局,客厅进深7.1米(不含阳台),开间4米,配有6.96米宽景阳台,主卧套间设计,配有衣帽间和三段式卫生间。这个户型除通透性比传统横厅更优异外,静区部分的静溢性也会比较好,居住舒适性更佳,受众也是老少皆宜。
中粮大悦城环立新湖远期规划
悦章凤凰里位于宝安大洋路与塘新路交汇处西侧,用地类型为 教育用地+公共绿地+R2二类居住用地。项目毗邻立新湖公园,距离 地铁11号线 “桥头站” 也很近,属于 地铁盘。附近有公园、有地铁,位置很不错。
!
中粮凤凰里一、二期只是大悦城在大洋田的一部分而已,中粮集团将围绕整个立新湖打造近70万㎡城市综合体,以“一湖四带多节点”的景观结构,集中粮国际科技创新中心、低密生态住区、国际文化商务广场、地铁接驳商贸中心四大功能区。
【二期悦章凤凰里】占地约3.26万㎡,总建面约21.2万㎡,共规划有7栋住宅,4栋商品房、3栋保障房,33-34层。总户数1426户,其中可售商品房758套、保障房668套,车位1564个,容积率4.98。项目自带一所12班幼儿园和一所36班九年制学校及公交首末站3200㎡。
中粮凤凰里一、二期只是大悦城在大洋田的一部分而已,中粮集团将围绕整个立新湖打造近70万㎡城市综合体,“一湖四带多节点”的景观结构,集中粮国际科技创新中心、低密生态住区、国际文化商务广场、地铁接驳商贸中心四大功能区。
交通地铁:
项目距离11号线桥头站D2出口约600米,属于地铁盘,“两横四纵“立体交通网络,宝安大道、沿江高速、107国道等城市主干道,快速串联全城。邻近宝安大道与广深公路,可自驾前往深圳各区,无论是乘坐轨道出现还是自驾,出行都相对便利;
教育配套:
立新湖外国语学校实景
根据相关规划,项目配建有一所12班幼儿园,旁边还有一所36班九年一贯制学校,周边有桥头学校,立新湖外国语学校,南方科技大学附属中学等;
商业配套:
底商效果图
项目会有部分底商,后期大规划会有商业。北侧有鸿荣源奥特莱斯商业(在建),万丰海岸城商圈,立新湖南侧即是福永商业中心;
休闲配套:
立新湖公园实景
距离立新湖公园直线距离约400米,水域面积1.2平方公里,“深圳西部最美的公园”
3公里范围内凤凰山森林公园、万丰湖湿地公园等绿境环绕。
片区展望:
深圳向西发展:沿罗湖-福田-南山-前海及宝安的发展脉搏,2021年前海8倍扩容,深圳向西势不可挡。
三重国家战略:前海一级辐射区、会展海洋城、空港新城三重国家级战略叠加,“黄金内湾”崛起。
一带两心四片:未来宝安以“一带两心四片”为发展布局,福海既是“临空经济总部带”黄金节点,又是西部城市中心的重要组成部分。
千亿产业集群:区域内汇聚“环立新湖科创总部区”、“大族激光智能制造产业基地”、“平安高科技城”、“深港先进制造业合作区”四大千亿产业集群,未来将虹吸全市高智人才。中粮悦章凤凰里(深圳宝安)
中粮悦章凤凰里
售楼处电话:400-088-3336一对一对接,享受额外优惠!
售楼处电话TEL:400-088-3336【售楼中心】
在售户型图丨项目介绍丨房源丨周边配套丨详细解答
开发商售楼处直销_欢迎来电预约享受内部折扣_恭迎品鉴!
温馨提示:看房请提前来电预约,谢谢您的配合!(中介勿扰)
✨✨Vip贵宾置业=欢迎来电预约尊享内部折扣=匠心钜制恭迎品鉴
免责声明:
1、以上部分图片素材源自网络,如有侵权,请联系我们删除;
2、本广告相关文字、图片以及建筑设计效果图是对项目所做的示意表现,仅供参考,最终标准详见政府相关部门批准文件,经政府批准的详细规划以销售现场公示为准,敬请查看;
3、本广告为要约邀请,买卖双方的权利以及义务以双方签订的合同为准。相关内容如有更新,请以最新资料内容为准。
声明:本文由入驻焦点开放平台的作者撰写,除焦点官方账号外,观点仅代表作者本人,不代表焦点立场。
