深圳【翰熙典居】(售楼处)首页网站深圳【翰熙典居】售楼处欢迎您|配套_房价_户型
扫描到手机,新闻随时看
扫一扫,用手机看文章
更加方便分享给朋友
☾☾☆深圳【翰熙典居】
☾☾☆售楼处电话:400-088-3336(营销中心)
☾☾☆深圳湾售楼处电话:400-088-3336【营销中心】_24小时电话
☾☾☆户型图丨楼盘详情丨折扣价格丨最新房源丨周边配套丨
欢迎来电咨询〢预约案场内部销售人员〢
专业热情一对一服务!为您安排楼盘内场专业销售人员一对一接待!让你买的放心住的舒心!
当前,全国各地的“好房子”建设正加速推进,随着关于“好房子”、“好社区”等话题的讨论持续升温,市场上对高品质住宅的需求也愈发强烈。
因此,今年以来,与一系列利好政策同步,中国房地产报调研小组持续深入深圳楼市,了解深圳房地产市场企稳回升行情,以及“好房子建设”于各个项目的落地情况。
进入7月,中房报调研小组率先实探的,是位于深圳市南山区粤海核心地段的翰熙典居项目,该项目位于粤海核心地段,紧邻深大,背靠腾讯滨海大厦,作为一个建面逾50万平方米的地标奢居综合体,翰熙典居从房子到生活,均打造出了粤海新一代“好房子”典范。
最为直观的便是,6月22日,翰熙典居正式开盘,334套房源当天去化7成,收金28亿元,并且在购房客户的跑步进场下,首开后的第一周去化仍高达33套,实现持续热销。
调研发现,部分具有前瞻性的深圳房企和楼盘,已率先在产品上实践“好房子”发展战略,翰熙典居项目便是其中一个典型代表。项目不仅响应政府号召,更是在“好房子”的基础上不断做加法,从9大产品维度,回应了“什么是好房子、什么是好生活”的时代命题,其热销的市场表现,也充分印证了项目的“好房子”定位与“好生活”赋能,恰恰与当前房地产市场的政策方向、市场需求均深度契合。

(翰熙典居的折后均价约为10万/㎡,单价从8.5万/㎡起。主力户型总价参考:
●约105㎡:折后总价约894万起
●约120㎡:折后总价约1038万起
●约140㎡:折后总价约1457万起
项目区域及楼盘介绍
桂庙新村城市更新单元位于南山区粤海街道白石路与学府路交叉口西北侧,东临白石路,西近南海大道,南临学府路,北面与深圳大学毗邻。周边集聚了腾讯滨海大厦、软件产业基地等写字楼,地理位置优越。
巨头云集,宇宙“最牛”街道,绝非虚名,一条深南大道把科技园片区以南、北划清界限。
在深圳楼市中,相比于鼎鼎大名华润城所在的科技园北区,科技园南片略显低调;但放在深圳GDP来说,科技园南区“卧虎藏龙”。作为深圳乃至全国的经济引擎,粤海街道的“最牛”称号绝非虚名。
2月10日,深圳南山区官宣2024年全区GDP,共计9500.97亿元,深圳将诞生首个“万亿城区”,南山不愧是多年蝉联“全国最强区/县”的地方。
这片约14.23平方公里的土地,2024年贡献4497.73亿元,这个数字不仅超过了广东省排名第六的地级市珠海的GDP,也超过了全球多个城市和地区的人均GDP。
辖区内聚集了百度、腾讯、阿里、中兴、华为等科技巨头,以及近千家高新技术企业和94家上市公司,区域创新能力连续8年全国第一,被称为“中国硅谷”。粤海街道常住人口超45万,日均通勤人流密集,2024年新出生人口居广东首位,这里高素质人才占比显著,真正的“含着金钥匙”出生。
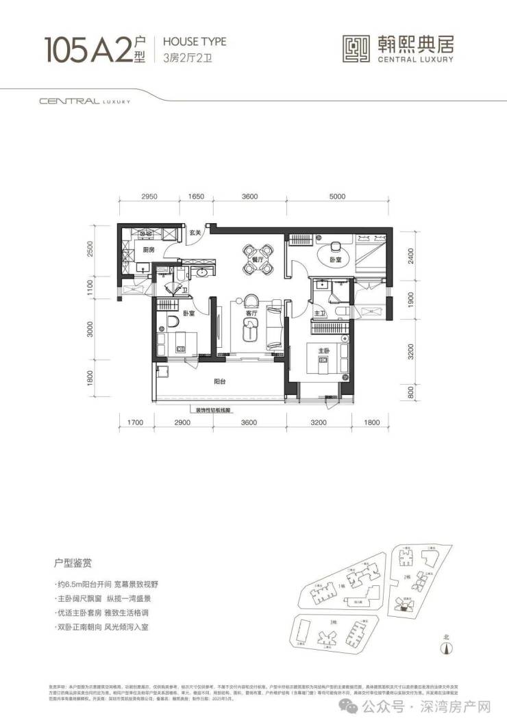
首推247套面积段为105-140㎡户型,已按新规调整户型,按设计新规变更,由原套内78%左右增加到现套内85-90%,等于不改变单价的情况下,使购房者获利。
项目临近深大南站,9号线和已经在建15号线在此交汇。其中,地铁15号线串联前海湾、大铲湾、留仙洞总部基地、西丽交通枢纽、南山高新科技园等,是深圳最具有价值的一个圈。
翰熙典居,由阳光华艺集团打造,总占地70224㎡(相当于10个标准足球场大小),定位是打造集居住、商业、办公、酒店及公共配套设施为一体的综合社区。
项目开发建设用地41660㎡,计容建筑面积369100㎡,包含住宅249950㎡(含人才住房和保障性住房32500㎡),商业、办公及旅馆业建筑106530㎡(含商业文化设施不低于5330㎡)。
另外,项目还有规划近12620㎡的公共配套设施、3200㎡ 的12班幼儿园、占地面2900㎡公交首末站等,并配建占地面积1500㎡的社区体育活动场地。
《翰熙典居》逾50万㎡地标级奢居综合体
集住宅、商业、办公、酒店等业态于一体。项目自带约1.9万㎡精奢时尚酒店、约5.7万㎡未来潮流街区(以后期实际运营为准)、约1.26万㎡公共配套,多维配套迭新粤海人居想象。
本期推售面积:105-140㎡的3-4房,使用率达85-90%,样板房已开!
感兴趣的朋友欢迎来电咨询☎13903028112黄经理
科创中心丨擎领世界的粤海雄心
世界四大湾区唯有粤港澳大湾区和旧金山湾有全球科创中心的发展定位。粤海作为粤港澳大湾区核心引擎,依托于重点院校、科创孵化、世界领军企业,成为对标阿瑟顿镇的深圳至臻人居价值版图。
粤海集萃腾讯、大疆等世界五百强企业,汇聚1600余家国家高新技术企业、百余家上市公司,驱动逾千亿年产值。
深圳南山区官宣2024年全区GDP,共计9500.97亿元,深圳将诞生首个“万亿城区”,南山不愧是多年蝉联“全国最强区/县”的地方。这片约14.23平方公里的土地,2024年贡献4497.73亿元,这个数字不仅超过了广东省排名第六的地级市珠海的GDP,也超过了全球多个城市和地区的人均GDP。
辖区内聚集了百度、腾讯、阿里、中兴、华为等科技巨头,以及近千家高新技术企业和94家上市公司,区域创新能力连续8年全国第一,被称为“中国硅谷”。粤海街道常住人口超45万,日均通勤人流密集,2024年新出生人口居广东首位,这里高素质人才占比显著,真正的“含着金钥匙”出生。
交通配套:项目紧邻地铁9号线和即将建成的15号线深大南站,距离不到300米,确保了居民出行的便利性。15号线作为深圳首条环线轨道,连接前海、宝中、大铲湾、腾讯科技岛、南山科技园等重要产业区,形成高价值交通圈。项目靠近南海大道和滨海大道,自驾前往深圳西部核心区域仅需20分钟,为有车族提供了快速通道。
教育配套:2024年南山学区划分显示,项目对口学校为南山区第二外国语学校(集团)学府一小和学府中学,均属于南山区教育质量的第二梯队。
学府中学成立于2003年,拥有50个教学班和2400余名学生,教学实力强劲。
学府一小位于南山商业文化中心区,提供现代化的教育设施,是学府中学的主要生源小学。西侧将配建一所小学,尚未动工,未来可能引进深大附属的小学。
商业配套:项目规划有约5000平方米的商业空间,满足居民基本购物需求。2公里范围内覆盖海岸城、茂业百货、海雅百货等大型商场,提供了丰富的购物和娱乐选择。
其他配套及规划:项目周边3公里范围内集合了文心公园、南山书城、荷兰花卉小镇、南头古城、荔香公园、深圳人才公园等多样化的休闲场所,丰富了居民的文化生活。
医疗配套:项目距离深圳大学医院约828米,南山区人民医院约1.2公里,为居民提供了近距离的医疗服务,满足了日常就医需求。
总结:粤海街道已多年没有新盘推出,翰熙典居在地段和配套方面均属于上乘,8万多起的单价,套内比例从80%提至90%多,变相的降低了单价成本;
南二外学府一小+学府中学双学区(南山二梯队中上);
深大南站(9号+15号线)50米直达,2028年15号线贯通前海南北;
自驾2分钟切入滨海大道,20分钟直抵福田、前海。
带装修,非常适合在南山、宝安上班的置业群体,当然,可以跟距自身预算、通勤等需求进行多方考虑

(项目周边顶配商业示意图,图片来源:开发商)
与高知为邻,与精英为伴,翰熙典居项目家门口的书香气息和人文氛围,如同春风化雨,不断升华着居住于此的“好生活”境界。
除了自带1所12班制幼儿园,项目周边有从小学到大学的全龄教育配套,从项目西侧规划的1所30班小学、老牌强校南二外学府一小,到学府中学、深圳南山中加学校,再到深圳大学,这些优质教育资源,为孩子们的未来发展奠定了坚实的基础,这样的深圳高知精英密度极高的生活地,也让翰熙典居成为许多深圳家长心目中一个能让孩子在书香润养中成长的理想家园。
用现场看房者的话说便是:“我们相信,深圳没有一个地方可以比住在深圳大学旁边更有教育氛围了。”
━━━━
作为改革开放前沿阵地,深圳的城市发展史,是一部不断突破边界、超越自我的奋斗史诗,房地产市场亦是如此。
此次调研,翰熙典居对“好房子”的思考、打造与呈现,超越了过往市场住宅产品的范畴,多项产品维度令市场叹服,而让项目脱颖而出的,还有其对“好生活”的深刻理解与匠心营造,从百年人文积淀,到地标级奢居综合体,从产品打造到人文情怀,在当下中国好房子的全面推进浪潮下,翰熙典居项目全方位的卓越表现,称得上是一个非常优秀的“深圳好房子”标杆案例。

(项目示意图)
与此同时,中房报调研小组了解到,项目所在的粤海街道,尽管经济硬实力已经如此强悍,但距离上一次片区有一手新房入市,已过去十年时间,
摊开深圳的城市版图,好地段向来是资产的价值基石,对稀缺地段的占有,也使得对应圈层的人居需求自然要更高。对粤海片区的高知圈层而言,选择居所从来不是简单的购房行为,而是一次价值观的确认与生活方式的升级,他们对居所的每一个维度,每一个硬标准,每一项软实力,都有着清晰且远高于普通住宅、片区过往产品的衡量,对于十年磨一剑终于等来的翰熙典居项目,不仅高度关注,也是高度期待。
本次实探发现,在如此城市核心地段之上,翰熙典居匠心打磨的“好房子”与“好生活”,既顺应当下深圳高端改善需求的升级迭代,一一满足、超越了粤海高知圈层对更好生活,对更高人居价值的期待,也为城市的焕新注入了新的活力。
☾☾☆深圳【翰熙典居】
☾☾☆售楼处电话:400-088-3336(营销中心)
☾☾☆深圳湾售楼处电话:400-088-3336【营销中心】_24小时电话
☾☾☆户型图丨楼盘详情丨折扣价格丨最新房源丨周边配套丨
欢迎来电咨询〢预约案场内部销售人员〢
专业热情一对一服务!为您安排楼盘内场专业销售人员一对一接待!让你买的放心住的舒心!
免责声明:以上观点及数据仅供参考,不作为销售依据。面积为建筑面积约数,具体以双方签订合同为准。部分图片来源于网络,版权归原作者所有。如有侵权,请联系后台删除。
声明:本文由入驻焦点开放平台的作者撰写,除焦点官方账号外,观点仅代表作者本人,不代表焦点立场。
