翰熙典居售楼处【首页网站】翰熙典居售楼中心_房价_户型_详情
扫描到手机,新闻随时看
扫一扫,用手机看文章
更加方便分享给朋友
【翰熙典居】咨询热线☎:400-088-3336【销售中心】
★★售楼中心——欢迎来电咨询〢——匠心钜制恭迎品鉴!
温馨提示:网上售楼中心〢欢迎来电咨询〢安全通话隐藏真实号码〢
4000883336
粤海之上 逾50万㎡地标级奢居综合体
总建设用地面积:约41659㎡
总建筑面积:约516339㎡
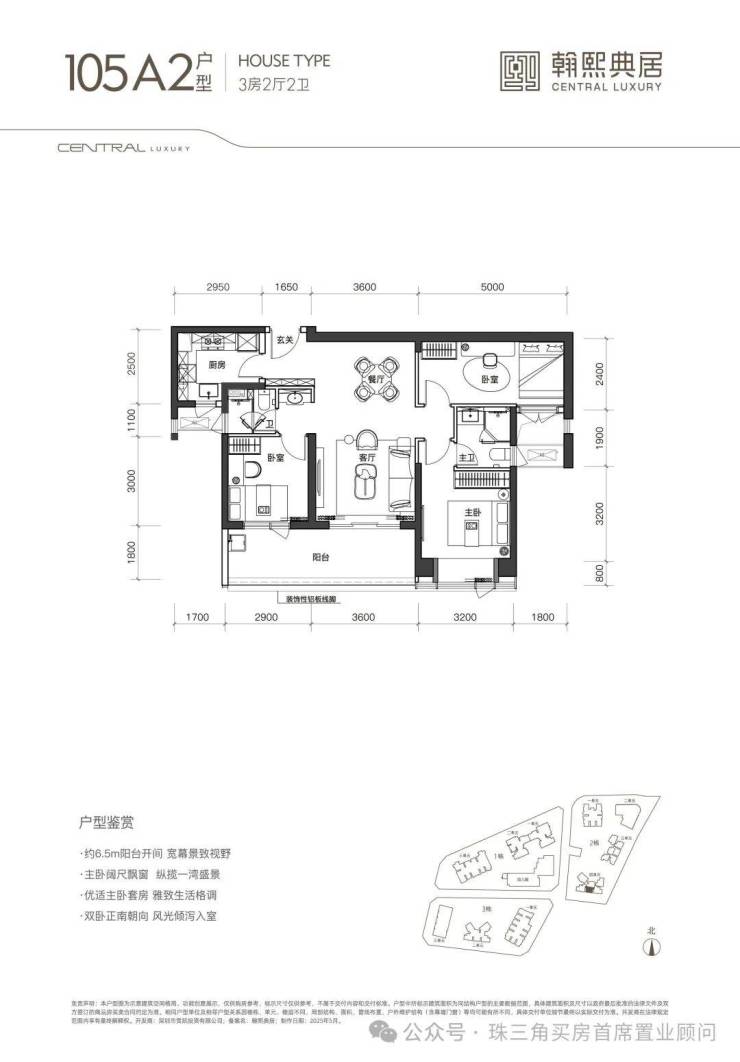
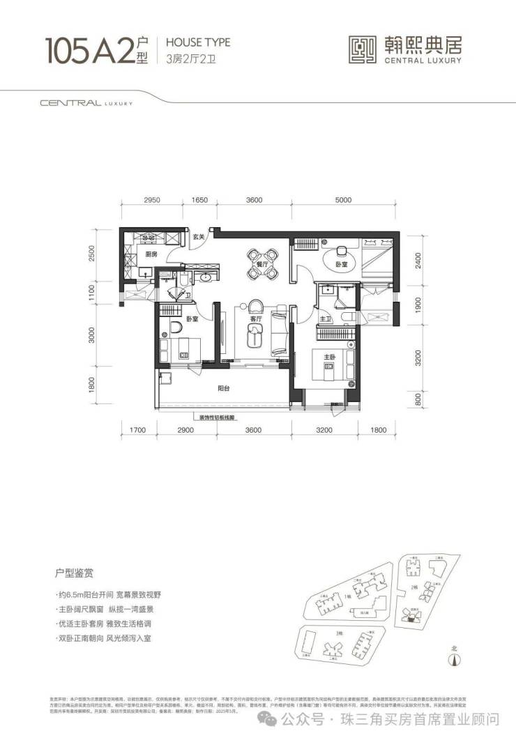
首推主力户型:新规后建面约105-140㎡奢雅空间
科创中心丨擎领世界的粤海雄心世界四大湾区唯有粤港澳大湾区和旧金山湾有全球科创中心的发展定位。粤海作为粤港澳大湾区核心引擎,依托于重点院校、科创孵化、世界领军企业,成为对标阿瑟顿镇的深圳至臻人居价值版图。

粤海集萃腾讯、大疆等世界五百强企业,汇聚1600余家国家高新技术企业、百余家上市公司,驱动逾千亿年产值,2024年GDP约4500亿元。
矜贵恒产丨问鼎全球的人居高地粤港澳大湾区——粤海街道,以科技南及后海、深圳湾片区为代表,代言湾区时代地标封面,问鼎深圳至臻人居价值版图深圳湾1号(二手房价约20-32万/㎡)
华润深圳湾悦府(约19-20万/㎡)
华润城润玺二期(约16-18万/㎡)
深湾CBD丨时代粤海的蝶变新章深湾CBD立足南山区“双核”战略核心,串联科技园、后海、深超总、深圳中央公园,聚合金融、科技、人文生态超级闭环,以多维战略产业叠加,重塑粤海价值天际线。翰熙典居,是继华润城之后深湾CBD又一人居地标之作,以时代中心之上的奢居基因,铸就跨越周期的矜贵人居恒产。
贵脉源点丨全维中心的奢居地标 翰熙典居占位深圳经济命脉滨海大道与南北科创主轴南海大道交汇处十字轴心。集萃城市区位、科创、人文、TOD四大中心源点。依托两大科技园、四大总部基地,集总部经济+全球科创中心价值,坐享区域发展利好。
人文中心丨百年人文印记 桂脉传承不息 桂庙新村,传承百年城市人文底蕴,是粤海科创产业的时代摇篮、深大学子的后花园,也是深圳奇迹的源点。从桂庙新村到翰熙典居,一脉城市向上的繁心,为於此奋进的各界时代精英,谨献伫立于中心之上的人文奢宅,为粤海匠造一座屹立于时代之巅的地标之作。
枢纽中心丨
双地铁上盖TOD无缝接驳地铁9号线、15号线(在建中)交汇深大南站。核心区罕有TOD项目。
四横:滨海大道、深南大道、北环大道、学府路
三纵:南海大道、后海大道、白石路 (以上所有交通规划最终通车时间以政府最新工程进度落实为准)
5重生态丨山/湖/园/海/湾 聚揽城市一湾风华
1山1湖:深圳大学杜鹃山、文山湖
4公园:荔香公园、文心公园、科技公园、深圳人才公园
1深大后花园1海湾:约15公里深圳湾滨海长廊 (项目规划连廊直通深大,中国十大最美校园之一。该天桥为方便深大师生进出而设置,后期具体人员进出管理以深圳大学有关规定为准)

百万商业丨湾区繁华潮向 臻藏生活万象 咫尺海岸城商圈,近距离可达深圳湾万象城、万象天地、鹏润达广场、后海汇、来福士广场
9大文体丨城市峯层配套 擘画都心生活闲情逸趣保利剧院、南山书城、南头古城、南山图书馆、南山文体中心、南山博物馆、深圳湾体育中心、深圳湾文化广场(在建中)、粤海文体中心(在建中)
优教护航丨全龄教育环伺 赋写下一代美好未来
幼儿园:项目自带1所12班制幼儿园
小学:西侧规划有1所30班小学(地块红线外)、南二外学府一小
中学:南二外学府中学、深圳南山中加学校大学:深圳大学,全国十大最美校园(周边教育设施如有变动,以南山区教育局最新颁布政策为准)
翰熙典居丨逾50万㎡地标级奢居综合体 集住宅、商业、办公、酒店等业态于一体。项目自带约1.9万㎡精奢时尚酒店、约5.7万㎡未来潮流街区(以后期实际运营为准)、约1.26万㎡公共配套,多维配套迭新粤海人居想象。
质匠高定丨集聚一流大师 匠造雅质奢宅 翰熙典居联袂华汇设计、迈丘设计、CCD(香港郑中设计事务所)等国际国内大师,匠制三重归家礼序,打造美学园林及品质公区,成就卓尔不凡的超感生活。

流线之幕 | 幕墙集成系统静雅奢华风格延续奢宅风貌,历久弥新的品质凝练

盛世翰韵 | 新东方都市风格园林 度假式无边际泳池,樱花大道、无界人文街区

逐光之旅 | 大师高定艺术公区以超脱酒店的艺术手法,构筑雅静空间,大堂墙面高端用材,精心雕琢尊崇归家仪式感

奢阔空间丨中心极境 礼献粤海 翰熙典居,粤海十年之后再上新,全新奢居综合体礼献峯层。可售主力户型新规后建面约105-140㎡奢雅空间,全明方正户型将空间奢阔感与生活舒适度完美契合。明星户型超6米阳台开间,全维度巨幕景观视野,尽揽湾心万千风景。

(免责说明:本项目户型使用率为基于包括阳台和飘窗在内的总面积计算得出。所提供的使用率仅供参考,实际使用面积可能会因测量方法、建筑规范等因素而有所不同。最终解释权归开发商所有。)
枫叶集团丨深耕核心区 专注城市更新与运营枫叶集团,聚焦地产开发、资产运营、物业服务三大核心业务。秉承“以心筑新,至臻至善”发展理念,以深圳南山、宝安等核心区为原点,致力于深圳核心的城市更新与运营。已开发地产物业逾百万方,待开发土地储备逾百万方。
翰熙典居,逾50万㎡地标级奢居综合体,2025年深圳市重大建设项目之一。项目三个地块一次性整体开发,彰显枫叶集团雄厚实力,及打造中心人文奢宅、城市地标之作的恢弘之志。
【翰熙典居】咨询热线☎:400-088-3336【销售中心】
★★售楼中心——欢迎来电咨询〢——匠心钜制恭迎品鉴!
温馨提示:网上售楼中心〢欢迎来电咨询〢安全通话隐藏真实号码〢
免责声明:以上信息仅供参考,所有图文资料请以政府最终批文及双方签署的买卖合同为准
本图文内容如无意中侵犯某方权益,请联系我们,将第一时间处理!
声明:本文由入驻焦点开放平台的作者撰写,除焦点官方账号外,观点仅代表作者本人,不代表焦点立场。
