万丰海岸城玺园(售楼处电话)首页网站|万丰海岸城玺园售楼中心欢迎您|地址_备案价_户型图
扫描到手机,新闻随时看
扫一扫,用手机看文章
更加方便分享给朋友
深圳万丰海岸城玺园楼盘售楼处电话-24小时电话-欢迎您-售楼处地址-楼盘详情
万丰海岸城玺园简介丨
万丰海岸城玺园营销中心
万丰海岸城玺园售楼处电话:400-088-3336【售楼中心】
01
优劣势分析
优势:
占据万丰海岸城核心位置,海岸城商业、海岸公园、学校、公共配 套等优质配套环伺
交通便利,临近地铁11号线、宝安大道和广深公路
劣势:
临近的两条公路会常年面临堵车问题
拥有完整且优质的配套,会面临价格问题
总结:
沙井海岸城项目作为一个“城”级别大盘,自带商业综合体,配套齐全,在深外宝安学区范围内很吸引人,建设完成后环境会有大幅度提升,虽说分布有小产权房,但是城市界面较好,且本次推出的是现楼,不用等待,确定性高,自住很不错,节省了资金成本。
项目本身教育资源丰富且优质,自带有幼儿园、九年一贯制学校和商业体,周边的商业资源也比较丰富,总的来看比较适合居住。

02
项目简介
基础信息:
总规划超500万㎡ 西部中心旗舰综合体
万丰区域城市更新项目总更新范围约2平方公里,由世界上最大的建筑设计公司之一的美国CRTKL公司本部进行设计,规划建筑面积预计超500万㎡,是集商业、住宅、产业、甲级写字楼、高端酒店、学校教育、文化休闲、交通枢纽、生态公园于一体的超大型城市综合体项目。打造深圳西部中心全业态、全功能的国际一流宜产、宜居、宜商核心区。

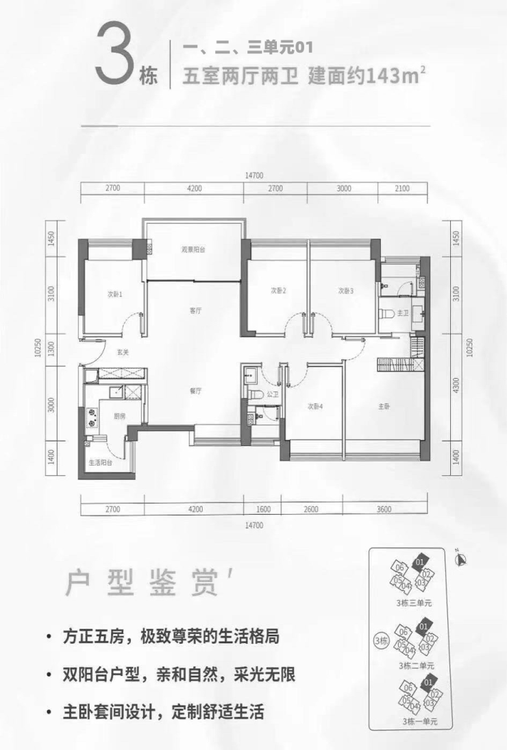
户型图:




03
项目配套
交通配套
轨道交通方面,玺园距离11号线马安山站直线距离约1公里左右,深圳地铁11号线是深圳地铁第6条建成运营的线路,于2016年6月开通运营,该线起于福田站,途经福田区、南山区和宝安区,贯穿大空港地区、城市商务区,止于碧头站。目前11号线可与深圳地铁1号、2号、3号、5号、6号、7号、9号、12号这8条线路直接换乘。

商业配套
万丰项目A、B区规划商业总建面超约66万㎡,未来将成为西部最具代表性的商业中心。
A区海岸城购物中心总体量约20万㎡,是南山海岸城升级作品,涵盖高端影院、高端购物、时尚娱乐、精品超市等业态规划;
B区特色商业集群,有西部首个山姆会员店(已动工);高端主题餐饮商业区(已动工),规划业态以高端料理、精品私房菜、西餐、酒吧街等商务餐饮为主;开放式街区商业(规划总建面超35万㎡);
未来将形成西部中心核心商圈,提升城市公共配套,服务大湾区人居生活、商务、休闲。



教育配套
深圳外国语学校宝安学校,拥有102个班级,4740个学位,是目前深圳规模最大的九年一贯制学校。盘踞在海岸城楼盘中心位置,实现目送式上学,解决孩子通行安全、家长拥堵焦虑。

生活休闲
二层连廊设计 安全、高效链接城市空间
极具前瞻性的规划设计、高成本投入建设了海岸立体交通体系,以“超级十字、超级交互、超级链接”为理念,打造二层三公里连廊体系,形成一个人车分流、开放包容、高效便捷的城市平台,立体链接生态宜居、商业服务、活力产业三大功能板块,提供缤纷、时尚的文化“慢生活”体验。

三重立体园林体系
项目生态园林、公共活动空间非常丰富,由商业广场、二层连廊、架空层园林、石岩渠公园、大钟山公园、万丰公园等组成,形成立体生态体系,为公众创造出一个社区休闲、活力空间,形成海岸特色的都市文化领域。

大城已呈 繁华可见
万丰区域更新项目,A区万丰海岸城五大园超3000户已入伙,深外宝学校、海岸公园、科创中心已投入使用,约20万㎡购物中心已建成,预计2024年开业。超级大城首发区繁华可见,高规格品质保障所有业主宜居宜业。
仅137席稀缺现楼 不等待 即入。
现楼有保障,稀缺现楼产品
即买即住即收益,所见即所得,安全置业首选。

豪宅品质,高标准外立面设计、用材
立面主要采用为石材、大铝板与玻璃、真石漆,这种组合搭配常见于南山、福田豪宅项目使用,历久弥新。园林设计师是日本户田芳树,布置有罗汉松、小叶紫檀等名贵树种。


高标准公区打造 多功能休憩空间
双大堂设计,高端大气、宽敞舒适,采光充足通透。架空层大堂设置有泛会所,涵盖会客室、儿童活动中心等。

(一层入户大厅)

(架空入户大堂)儿童活动中心

一线精装,稀缺高品质交付标准
约98-121-143平3-5房,户内层高3米,采用一线高端品牌精装交付,即买即入住;3梯6户高效出行,高品质生活保障。
深圳万丰海岸城玺园楼盘售楼处电话-24小时电话-欢迎您-售楼处地址-楼盘详情
万丰海岸城玺园简介丨
万丰海岸城玺园营销中心
万丰海岸城玺园售楼处电话:400-088-3336【售楼中心】
免责声明:本文所有文章、图片、音频视频文件等资料版权归版权所有人所有,因非原创文章及图片等内容无法一一和版权者联系,如原作者或编辑认为作品不宜上网供大家浏览,请及时来电告之,我们将立即予以修改或删除。本文如无意中侵犯了某方的知识产权,告之即删。
声明:本文由入驻焦点开放平台的作者撰写,除焦点官方账号外,观点仅代表作者本人,不代表焦点立场。
