深圳中海云启源境(深圳中海云启源境)丨售楼电话丨深圳中海云启源境优缺点
扫描到手机,新闻随时看
扫一扫,用手机看文章
更加方便分享给朋友
深圳【中海云启源境】
开发商售楼处电话咨询/预约热线:400-088-3336【售楼中心】24小时热线
深圳【中海云启源境】售楼处电话:400-088-3336【营销中心】中介勿扰
◆提前来访-预约登记尊享售楼处1v1销售专业讲解〢一对一热情服务〢
◆温馨提示:网上售楼中心〢预约可享内部优惠〢匠心钜制-恭迎品鉴〢
深圳中海云启源境楼盘详情介绍,包含售楼处电话、地址、户型图、小区图片、区位优势、交通、周边商业配套等楼盘详细资料;更详细楼盘资料和最新折扣价格,请拨打售楼处电话,销售会为您详细介绍楼盘。
深圳【中海云启源境】售楼处电话:400-088-3336【营销中心】中介勿扰
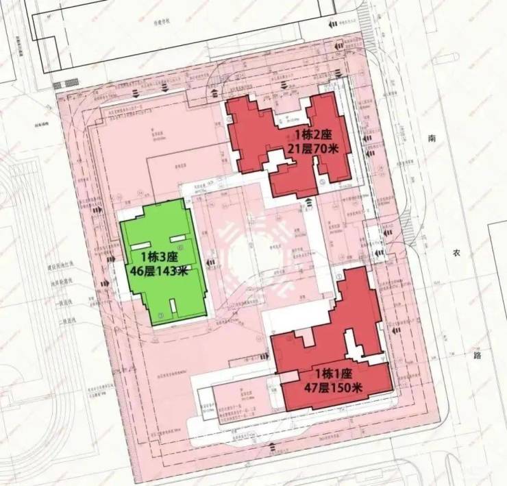
项目规划与硬核实力
1️⃣ 地块背景:
前身为润亚奕拓厂房旧改,非限价地块,定价自由度较高,但需承担旧改历史成本。
毒舌点评
:旧改进度磨叽?中海2023年拿地,2025年火速入市,旧改效率吊打民企!
深圳【中海云启源境】售楼处电话:400-088-3336【营销中心】中介勿扰
2️⃣ 开发商底牌:
中海地产
(央企)操刀,深圳标杆项目包括深圳湾壹号、中海天钻,交付品质稳定超预期。
避坑指南
:央企债务稳健,烂尾风险≈0,但需警惕“保障房混居”社区氛围。
深圳【中海云启源境】售楼处电话:400-088-3336【营销中心】中介勿扰
3️⃣ 品质真功夫:
外立面用三层中空夹胶LOW-E玻璃+铝板,对标深圳湾香格里拉酒店;
园林复刻南洋度假风,6大会客厅+星光跑道,刚改盘玩出豪宅范儿;
施工方
:中海自建团队,YKK AP系统窗+隔音降噪设计,实测噪音≤35分贝(低楼层除外)。
深圳【中海云启源境】售楼处电话:400-088-3336【营销中心】中介勿扰
4️⃣ 户型逆天操作:
新规赠送开挂
!105㎡≈旧规134㎡,143㎡吊打183㎡,飘窗、双阳台全送面积;
硬伤预警
:90㎡东北朝向采光受限,143㎡总价千万级,刚需够不着,土豪看不上。
深圳【中海云启源境】售楼处电话:400-088-3336【营销中心】中介勿扰
深圳【中海云启源境】售楼处电话:400-088-3336【营销中心】中介勿扰
深圳【中海云启源境】售楼处电话:400-088-3336【营销中心】中介勿扰
深圳【中海云启源境】
开发商售楼处电话咨询/预约热线:400-088-3336【售楼中心】24小时热线
深圳【中海云启源境】售楼处电话:400-088-3336【营销中心】中介勿扰
◆提前来访-预约登记尊享售楼处1v1销售专业讲解〢一对一热情服务〢
◆温馨提示:网上售楼中心〢预约可享内部优惠〢匠心钜制-恭迎品鉴〢
深圳中海云启源境楼盘详情介绍,包含售楼处电话、地址、户型图、小区图片、区位优势、交通、周边商业配套等楼盘详细资料;更详细楼盘资料和最新折扣价格,请拨打售楼处电话,销售会为您详细介绍楼盘。
免责声明:
1、文章部分文字、图片、视频来源于网络。
2、我们所转载的文章、图片、音频视频文件等资料版权归版权所有人所有,因非原创文章及图片等内容无法和版权者联系
3.本网页如无意中侵犯了媒体或个人的知识产权,请留言或来电告知我们删除。
声明:本文由入驻焦点开放平台的作者撰写,除焦点官方账号外,观点仅代表作者本人,不代表焦点立场。
