合正观澜汇(售楼处)首页网站-合正观澜汇营销中心-合正观澜汇欢迎您-楼盘详情-最新价格-户型图-容积率@最新售楼处
扫描到手机,新闻随时看
扫一扫,用手机看文章
更加方便分享给朋友
✨✨合正观澜汇✨✨
✨✨合正观澜汇售楼处电话:400-088-3336【已认证】✨✨
✨✨合正观澜汇营销中心电话:400-088-3336【已认证】✨✨
✨✨合正观澜汇销售中心电话:400-088-3336【已认证】✨✨
✨✨合正观澜汇售楼中心电话:400-088-3336【已认证】✨✨
在售户型图丨项目介绍丨最新房源丨周边配套丨详细解答〢
✨✨◆开发商营销中心诚挚邀请,一键预约,尊享内部折扣!匠心独运的精品项目,恭候您的品鉴与选择。✨✨
✅ 过来参观样板房烦请记得提前来电预约!
✅ 为您安排楼盘现场销售全程接待并讲解,给您更贴心的看房体验!
网红楼盘-合正观澜汇
推售建面96-126平的3-4房
好奇心是人们的天性,因为人们总是对未知的东西比较感兴趣,比如:即将推售的产品、尚未开放的样板间!
昨天地产君开车来到合正观澜汇,在路对面,就看到了正在施工的二期,还有一期。
远远就可看到「营销展示中心」六个大字,走近一看还可看到「9月5日样板盛放」等字眼。二期体验馆设置在福城天虹一楼,样板间和沙盘设置在二楼。
合正观澜汇分多期开发,是集住宅、商务公寓、商业、办公、学校等多种业态为一体的城市综合体项目,总建面约100万平。
一期建面约15.7万平,2016年1月开盘即售罄,目前已经入伙。其中的福城天虹是合正观澜汇百万体量综合体项目中已经兑现的商业配套,总体量约6.7万平,目前已成为该片区内重要的商场。
二期有住宅、公寓两个地块,其中的住宅就是接下来要入市的产品,占地约2.6万平,建面约11.5万平,容积率约4.35,总共有1015套,停车位930个。
据现场销售小姐姐介绍,二期住宅是现代简洁都市建筑风格,采用围合式设计,由6栋29-32层约93-99米高的塔楼围合而成。这样的设计既可让社区园林空间和景观以及楼间距达更大,打造宽阔的园林视野,还能保证业主居住的私密性,提供舒适的居住环境。同时,二期住宅也是合正集团打造的首个健康舒适社区。
整体户型以东南和西南朝向为主,其中1、3、5、6栋是3梯6户,每个标准层都有6套建面约96平的3房;2、4栋是3梯5户,每个标准层是3套建面约96平的3房和2套建面约126平的4房。
据小姐姐介绍,合正观澜汇二期无论是产品设计还是整体的用材用料,都在一期的基础上进行迭代升级,整体品质有较大的提升。地产君现场看完之后,惊呆了!不仅户型设计亮点颇多,装修品质也是杠杠的!
02
样板间抢先看
超级大阳台+飘窗+U型厨房……
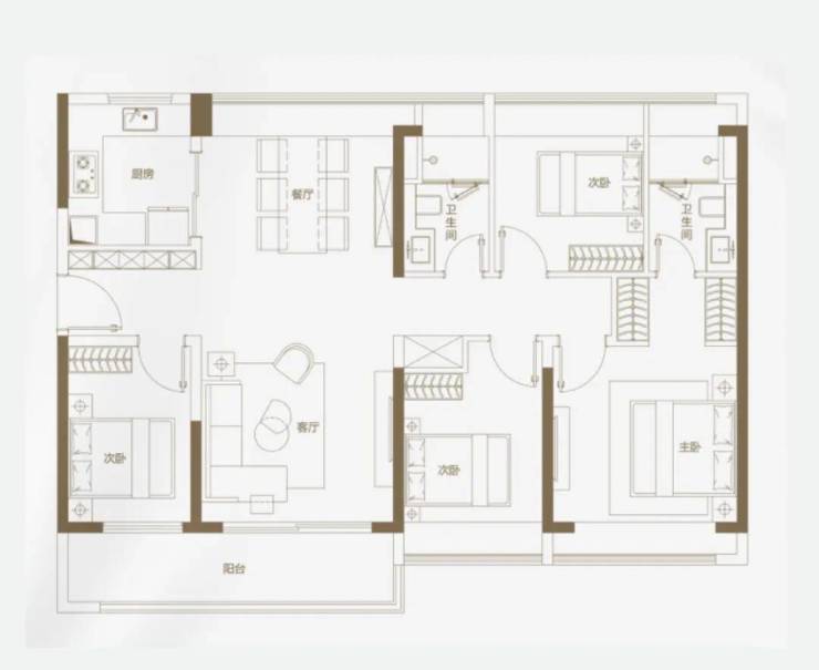
此次即将推出2个面积段的户型,分别是建面约96平的3房和建面约126平的4房。其中,被称为网友称为「神秘户型」的就是建面约126平的4房:
C户型:建面约126平的4房
C户型建面约126平,四房两厅两卫,属于非常方正的南北通透户型。该户型采用竖厅设计,各个功能分区有明显的界限,且能够做到更好的动静分区。同时房间与客厅有走廊相连,可以保证互不干扰。再加上客餐厅开间约3.8米、南北通透,可保证充分的采光与通风。
该户型最大的亮点在于有一个长约6.3米的大阳台,拥有270度超级景观,“横跨“次卧与客厅。空间空间之大,可能只有到现场才能感受到。也正是因为这个阳台,所以这个户型被称为「神秘户型」。
厨房采用U型设计,不仅有更大的储物空间,且从设计上也可实现可用空间更大,更重要的是,U型的厨房设计的动线更合理,可以让你在整个做饭的流程都感觉十分流畅。在这样的厨房里做饭,简直就是一种享受。
从套内设计来看,126平的户型3个房间带大飘窗,不仅空间感更大,整体居住舒适度更高!你可以稍作设计,既可摆上小茶桌,也可当作日常休憩场所。
主卧带有衣帽间,如果说大飘窗是生活里的阳光与诗,那么衣帽间就是远方那田野的起点。每天最幸福的大约是倚着飘窗看窗外四季长青,感受午后暖阳,或是在排排华服的衣帽间徜徉,感受雅致的生活。
B1户型:建面约96平的3房B1户型
B1户型建面约96平,三房两厅两卫,三开间朝南,无暗间;采光、通风都不错,还带入户玄关,U型厨房。主卧和其中一个次卧带了大飘窗,空间使用率更高,完全可以满足一家3-5口的居住需求。从户型动线设计看,动静分区合理,家庭的日常活动不会影响到休息,居住舒适度也较高!
B2户型:建面约96平的3房
✨✨合正观澜汇✨✨
✨✨合正观澜汇售楼处电话:400-088-3336【已认证】✨✨
✨✨合正观澜汇营销中心电话:400-088-3336【已认证】✨✨
✨✨合正观澜汇销售中心电话:400-088-3336【已认证】✨✨
✨✨合正观澜汇售楼中心电话:400-088-3336【已认证】✨✨
在售户型图丨项目介绍丨最新房源丨周边配套丨详细解答〢
✨✨◆开发商营销中心诚挚邀请,一键预约,尊享内部折扣!匠心独运的精品项目,恭候您的品鉴与选择。✨✨
✅ 过来参观样板房烦请记得提前来电预约!
免责声明:
1、文章部分文字、图片、视频来源于网络。
2、我们所转载的文章、图片、音频视频文件等资料版权归版权所有人所有,因非原创文章及图片等内容无法和版权者联系
声明:本文由入驻焦点开放平台的作者撰写,除焦点官方账号外,观点仅代表作者本人,不代表焦点立场。
