金光华凤凰九里(售楼处电话)首页网站深圳金光华凤凰九里售楼处欢迎您|配套_房价_户型
扫描到手机,新闻随时看
扫一扫,用手机看文章
更加方便分享给朋友
深圳【金光华凤凰九里】在售户型,房价走势以及楼盘折扣详情!
金光华凤凰九里售楼处咨询/预约热线:400-088-3336(售楼中心)
◆提前来访-预约登记尊享售楼处1v1销售专业讲解〢一对一热情服务〢
◆温馨提示:网上售楼中心〢预约可享内部优惠〢匠心钜制-恭迎品鉴〢
注:暂不接受临时到访客户,看房请提前预约。
金光华凤凰九里位于龙岗区平湖街道,由深圳大承企业管理有限公司开发建设,为平湖凤凰工业园旧改其中两地块,两个地块加起来将提供1992套房源,其中保障性住房400户,可售商品住宅1592户。户型套内建筑面积<90㎡,占比达100%。
金光华凤凰九里开盘时间为2023年11月,推出1栋1/3单元,共430套房源,面积68-106㎡,2-4房,备案价单价3.72万-4.9万/㎡,开盘折扣为:备案价*88折,折后价格3.2万/㎡起。金光华凤凰九里得房率达到79%,加上赠送面积约88%,使用率对比现在新规建设后的对比还是比较一般。
预计交房时间为:2025年12月底精装交付。更令人惊喜的是,在低总价+高使用率的同时,项目还配备了高标准品质精装!
交房标准:使用品牌水龙头、马桶、花洒、洗手盆等,并配备西门子、飞利浦、方太等一线品牌家电,标准堪比高端豪宅!
凤凰九里-平面图
|PLAN
【建筑面积67㎡2房1卫】
竖厅格局,S墙设计预留冰箱位,U型厨房,卫生间三段式分离设计,东南朝向。
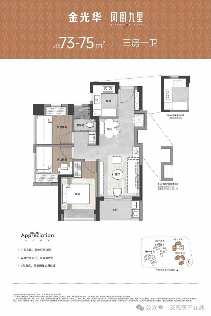
【建筑面积73㎡3房1卫】
竖厅格局,S墙设计预留冰箱位,双次卧双面采光,U型厨房,卫生间三段式分离设计,有西南朝向及东南朝向。
【建筑面积83㎡3房2卫】
竖厅格局,S墙设计预留冰箱位,四开间朝南,主卧双窗户南北对流,U型厨房,有西南朝向及东南朝向。
【建筑面积85㎡3房2卫】
竖厅南北通透格局,主卧双飘窗设计,U型厨房,客厅阳台主朝西北、东北向。
【建筑面积106㎡4房2卫】
竖厅格局,S墙设计预留冰箱位,四开间朝南,U型厨房,客卫三段式分离设计,西南朝向。
区域介绍:
作为深圳“十四五”规划的12个城市功能中心之一平湖,被赋予了协同周边区域打造万亿级ICT产业集群承载区、千亿级跨境电商产业集聚区的重大使命,成为深圳产业发展的重要一环。
在ICT产业方面,平湖已经初具规模,聚集了鹏芯微、新凯来、鹏进高科、宏电、豪鹏科技等半导体、ICT产业链龙头企业,再加上南科大半导体学院(已升级成国家卓越工程师学院)的落地,将推动了平湖乃至整个深圳的科技创新和产业升级。
目前,平湖的“四上”企业超1200家,位列龙岗第一;国家高新技术企业达430家、专精特新企业数量达188家,位列龙岗第三。(数据来源:平湖历年政府工作报告)
而在跨境电商领域,平湖同样表现出色。傲基、赛维时代、通拓、有棵树等华南城“四大天王”的崛起,让平湖的跨境电商年交易额超过300亿元,成为深圳市跨境电商产业的一张“特色名片”。这一产业的蓬勃发展,不仅提升了平湖的国际影响力,也为深圳的对外贸易注入了新的活力。(数据来源:深圳龙岗发布公众号)
交通配套:
平湖强势打造“2枢纽3城际4地铁5高速”多维交通体系,以高效的中心枢纽优势,快速连接罗湖区、福田区、南山区等生活圈。
5高速:丹平快速(二期与项目无缝衔接)、机荷高速、沈海高速、水官高速、清平高速
2枢纽:平湖枢纽、白坭坑枢纽(在建中)
3城际:广深城际,深惠城际、深大城际(在建中)
目前距离地铁10号线双拥街站约3公里,规划中的地铁17号线鹅公岭站(距项目约1公里)预计2028年通车。
商业配套:
项目内规划约1.8万㎡开放式商业街区,30万方的万达广场距离项目约1.5公里,还有平湖天虹+华盛奥特莱斯,形成约55万㎡城市级消费圈。
教育配套:
项目内配建 2所幼儿园,西侧规划建设龙城高级中学平湖学校,覆盖 81班(含小学、初中)。
项目周边还有平湖实验学校、龙岗区实验高级中学,优享近距离的一站式高质量教育。
公园人文:
项目周边环绕约88万㎡凤凰山国家矿山公园、约300万㎡平湖生态园、凤凰山高尔夫球场、雁湖公园、雁田水库等自然生态,亦有鹅公岭社区公园近在咫尺,给予便捷的盎然绿意生活体验。相当于2.6个莲花山公园,拥有约133万㎡生态林,包括秋月广场、芦花湿地、万里碧道等景点。
项目还近邻平湖北部新城文化中心(规划中),总建面约3万㎡,含图书馆、文化馆、体验中心。
项目优势:
1、楼盘所在位置是深圳发展的中轴,有万亿级ICT产业集群和千亿级跨境电商等产业提供就业机会;
2、楼盘自带幼儿园到九年一贯制学校,涵盖了全龄段的教育配套;
3、自带1.8万方的商业街区,临近30万方万达广场及奥特莱斯大型商业综合体;
4、附近还有88万方的凤凰山国家矿产公园,300万平的平湖生态园和雁田水库,自然生态环境优越;
5、楼盘推出67~106平的刚需两到四房,加赠送面积,得房率将近90%,赠送全家私电器,实现拎包入住。
深圳【金光华凤凰九里】在售户型,房价走势以及楼盘折扣详情!
金光华凤凰九里售楼处咨询/预约热线:400-088-3336(售楼中心)
◆提前来访-预约登记尊享售楼处1v1销售专业讲解〢一对一热情服务〢
◆温馨提示:网上售楼中心〢预约可享内部优惠〢匠心钜制-恭迎品鉴〢
注:暂不接受临时到访客户,看房请提前预约。
免责声明:我们致力于保护作者版权,转载或引用仅为传播楼盘更多信息,本文部分图片可能来源于网络,无法核实其真实出处,如涉及侵权请联系我们并及时配合处理。
声明:本文由入驻焦点开放平台的作者撰写,除焦点官方账号外,观点仅代表作者本人,不代表焦点立场。
